Blower motor works intermittently

1999 JEEP CHEROKEE
265,650 MILES • 4.0L • 6 CYL • 4WD • AUTOMATIC
Avatar
WAYNEPAW
  • MEMBER
  • 49 POSTS
I have the vehicle listed above (xj). I’ve replaced the blower resistor and control panel. Still not working. Any ideas? Thanks!
Nov 27, 2019 at 12:18 PM
Advertisement
Avatar
CARADIODOC
  • CERTIFIED EXPERT
  • 34,306 POSTS
First we need to know when the problem occurs. If it is always when you first start the engine, and it never quits after running a while as you're driving, by far the most likely suspect is the fan motor itself. The intermittent operation is caused by worn brushes inside the motor. Once the motor starts running, normal vibration keeps the brushes working. The problem will get progressively worse over weeks and months. A potential clue is the motor will often start running when you bang on the heater box.

If the fan usually starts up right away, then quits after a few minutes, the cause is more likely to be overheated and burned connector terminals, usually on the control panel or speed switch. Replacing just the control panel for that will not totally solve the problem. The mating connector terminals must also be cut out and replaced individually, otherwise the resistance they cause will generator more heat, and that heat will migrate into the new controller and overheat its terminals. That will result in a repeat failure.

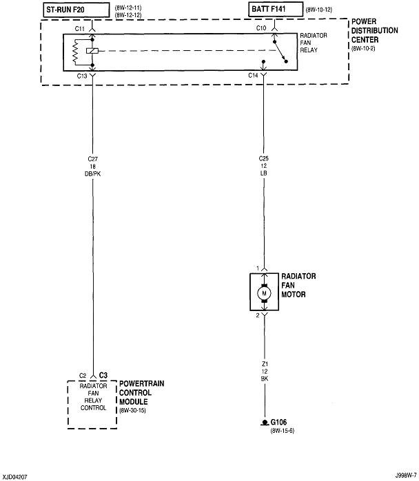
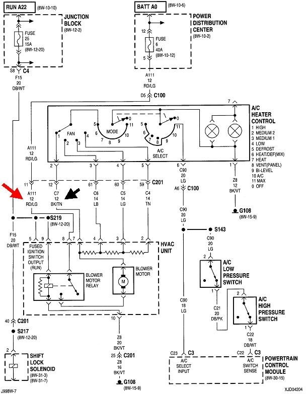
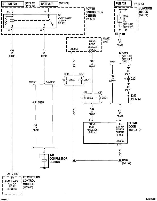
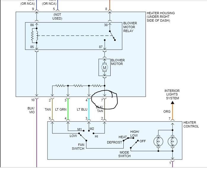
The diagrams below are for a heater system with air conditioning. If you do not have AC, I'll post a different diagram.

According to how the first diagram is drawn, it looks like you can't get directly on the two wires for the fan motor. If that is incorrect, and you can see the plug for the motor, it's those two wires where you need to take voltage readings. The goal now is to catch it when the problem is acting up, then try to not bump anything and cause the motor to start running. Also, these voltage readings are only valid when the connector is plugged in. You'll need to back-probe through the back of the connector, next to the wires.

If you can't get right on the motor's connector, look for the red / light green and the black / tan wires going to the heater box. Those readings will tell us where to go next.

Nov 27, 2019 at 4:21 PM
Avatar
WAYNEPAW
  • MEMBER
  • 49 POSTS
The blower will turn on and off at random at any time. I'm thinking short or loose connection somewhere.Just gotta find it I guess.
Nov 29, 2019 at 5:33 AM
Advertisement
Avatar
CARADIODOC
  • CERTIFIED EXPERT
  • 34,306 POSTS
That rules out the fan motor itself. Once it starts up, if the brushes are worn, it will keep on running for that drive cycle. When the motor quits while driving, there's usually going to be a burned connector terminal. The only proper repair for that is to replace the part with the overheated terminals, and to cut the mating terminals out of the connector, along with four inches of wire, then splice in four inches of new wire of the same gauge, and install a pair of crimp-on-style universal terminals. Solder those terminals too for the best connection, then plug them in individually into the new assembly.

The overheated terminal is not going to be at the resistor assembly because it is not in the circuit for the highest speed. The high speed would still work. One good possibility is the black/white ground wire for the control assembly. A clue for that is the illumination lights would also not work at the same time the fan was dead because both circuits share the same ground.

Take the voltage readings at the points I indicated, and at the wires on the back of the control assembly, but remember, they only have diagnostic value if they're taken when the fan is turned on but it's failing to run. Those readings will help us know where to go next.
Nov 29, 2019 at 7:39 PM
Avatar
WAYNEPAW
  • MEMBER
  • 49 POSTS
Thanks. So, are the only two terminals at the fan motor and in control panel in dashboard? Also, the control panel for the blower is new. That would then leave the blower motor connection?
Nov 30, 2019 at 5:30 AM
Avatar
CARADIODOC
  • CERTIFIED EXPERT
  • 34,306 POSTS
I didn't mention the motor connector terminals because those are usually heavy enough and rarely overheat. The best suspect is the terminals on the back of the control assembly for the speed switch, especially if the fan is used on one of the higher speeds often. Look at those terminals on the old assembly you took out. Typically two will be dark or black, and the plastic around them will be melted. If you find that, I'll describe in more detail how I replace the mating terminals in the connector. This problem requires a two-step repair. If only one step is performed, the problem will recur in the near future.

The next suspect is the fan motor relay. Those contacts can be arced too and cause intermittent operation. The fastest thing to do is swap it with one of the other relays like it and see if the problem keeps on occurring.
Nov 30, 2019 at 11:58 AM
Avatar
WAYNEPAW
  • MEMBER
  • 49 POSTS
I have the original panel in hand. No bad terminals for speed switch. None that are black or discolored.
Nov 30, 2019 at 12:54 PM
Avatar
WAYNEPAW
  • MEMBER
  • 49 POSTS
Also there are no melted areas.
Nov 30, 2019 at 1:04 PM
Avatar
CARADIODOC
  • CERTIFIED EXPERT
  • 34,306 POSTS
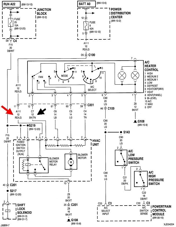
Then we're going to have to rely on voltage readings to figure out where the break is in the circuit. Find the black / tan wire on the back of the control assembly, (black arrow in the first diagram I posted). That point kind of splits the circuit in half. Remember that all connectors have to be plugged in, the ignition switch must be on, the heater control must be on and we want to know what the voltages are when the fan fails to run. If you find 12 volts on that wire, the break has to be after that point, meaning the switches or the ground wire.

Take the readings in as many places as you can get to in that circuit, then post them in your next reply for my wondrous analysis.
Nov 30, 2019 at 5:49 PM
Avatar
WAYNEPAW
  • MEMBER
  • 49 POSTS
There is very little wire to pull that panel out. Do the vacuum lines and the other terminal have to be plugged in?
Nov 30, 2019 at 6:26 PM
Avatar
CARADIODOC
  • CERTIFIED EXPERT
  • 34,306 POSTS
Vacuum lines do not have to be plugged in. For a preliminary test, I'll let you unplug the control panel, then you can get to the terminal in the connector, but use a test light, not a digital voltmeter.

Where the problem comes in, . . . imagine standing on a garden hose and blocking 99 percent of it. With the faucet turned on and the nozzle closed, if you start with 50 pounds of pressure at the faucet, you'll have 50 pounds at the nozzle and at both sides of your foot. That would falsely imply lots of water will flow when you open the nozzle, but when you do, that blockage is going to result in the tiniest trickle of water.

Likewise, when there is a major, but not total blockage in an electrical circuit, as long as it's turned off further down the line, as happens when you unplug something, you'll find 12 volts all over the place. That is the voltage that falsely implies current will flow, and the fan will run, when you turn the switches on. Unplugging anything is the same as closing the nozzle on the end of the hose.

You need to open the nozzle and try to get water to flow, then you'll find 50 psi before your foot, and 0 psi after your foot. It's those pressure readings that show where the blockage is located. You need to try to get current to flow, then you'll find 12 volts everywhere up to the break / bad connection, and you'll find 0 or very low volts after that bad connection. The key point is water has to be trying to flow, and current has to be trying to flow, and that can only happen when there is no other break in the circuit, meaning everything is plugged in.

The reason I specified using a test light is when you unplug something, then use a test light, those require current flow to make the bulb light up. To say that a different way, the bulb "completes" the circuit and gives current a place to go. Voltmeters, for all practical purposes, do not complete the circuit, and current flow doesn't have to flow through the meter to let it give its reading. Think of a pressure gauge on a compressed air line. No air flows through the gauge for it to do its thing. Same with voltmeters. No current flows through them. They just measure electrical pressure, (voltage). Current does flow through a test light, so for this type of problem, test lights are more accurate.
Nov 30, 2019 at 7:13 PM
Avatar
WAYNEPAW
  • MEMBER
  • 49 POSTS
You’re telling me I can unplug the panel completely? I have a multimeter but what type of test light should I use? The only thing that I have at hand is a tester for electrical outlets.
Nov 30, 2019 at 10:20 PM
Avatar
WAYNEPAW
  • MEMBER
  • 49 POSTS
I understand you are busy. Though it seems you’ve lost interest in helping me I’m a carpenter, though I do know some auto problems. Thanks for your help. I’ll look for reviews on your website.
Dec 2, 2019 at 7:50 AM
Avatar
WAYNEPAW
  • MEMBER
  • 49 POSTS
The only thing we ask is for is you to continue with the thread until a conclusion is reached.

I can't seem to get an answer from Caradiodoc about my original question on a 99 Jeep XJ heater.

The first statement is on their website "About' page. While I understand they may be busy, a response to my last post would be a polite thing.
Dec 2, 2019 at 3:59 PM (Merged)
Avatar
ASEMASTER6371
  • CERTIFIED EXPERT
  • 52,796 POSTS
Good evening,

Sorry, but we all work part-time at this as most of us have full-time jobs and it takes us away for a while at times.

Can you copy and paste the last response so I can help?

Roy
Dec 2, 2019 at 3:59 PM (Merged)
Avatar
WAYNEPAW
  • MEMBER
  • 49 POSTS
I will try though I’m not really good at this. Or let me ask, can you look at my questions?
Dec 2, 2019 at 3:59 PM (Merged)
Avatar
WAYNEPAW
  • MEMBER
  • 49 POSTS
It’s a rather lengthy conversation.
Dec 2, 2019 at 3:59 PM (Merged)
Avatar
ASEMASTER6371
  • CERTIFIED EXPERT
  • 52,796 POSTS
Let me check.

Roy
Dec 2, 2019 at 3:59 PM (Merged)
Avatar
WAYNEPAW
  • MEMBER
  • 49 POSTS
Thank you Roy.
Dec 2, 2019 at 4:06 PM
Avatar
ASEMASTER6371
  • CERTIFIED EXPERT
  • 52,796 POSTS
Trying to get the questions combined.

Roy
Dec 2, 2019 at 4:07 PM
Avatar
WAYNEPAW
  • MEMBER
  • 49 POSTS
Very well.
Dec 2, 2019 at 4:08 PM
Avatar
ASEMASTER6371
  • CERTIFIED EXPERT
  • 52,796 POSTS
Okay, did you check for voltage at the blower motor with the key on and the blower commanded on?

Roy
Dec 2, 2019 at 4:12 PM
Avatar
WAYNEPAW
  • MEMBER
  • 49 POSTS
No sir. There is no space to gets meter in there. I would have to pull the motor.
Dec 2, 2019 at 4:17 PM
Avatar
WAYNEPAW
  • MEMBER
  • 49 POSTS
I tried to pull the terminal but I couldn’t get it to come off motor. Seems like there is no room to pull it.
Dec 2, 2019 at 4:19 PM
Avatar
WAYNEPAW
  • MEMBER
  • 49 POSTS
I know there is power there as sometimes the blower comes on. I noticed though that only the 3rd and 4th positions work when it does come on. Though it seems not at full power.
Dec 2, 2019 at 4:29 PM
Avatar
ASEMASTER6371
  • CERTIFIED EXPERT
  • 52,796 POSTS
That would tell me the blower resistor is the issue as that controls the speeds.

I will get a picture for you.

Roy
Dec 2, 2019 at 4:40 PM
Avatar
WAYNEPAW
  • MEMBER
  • 49 POSTS
I replaced the resistor.
Dec 2, 2019 at 4:45 PM
Avatar
ASEMASTER6371
  • CERTIFIED EXPERT
  • 52,796 POSTS
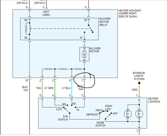
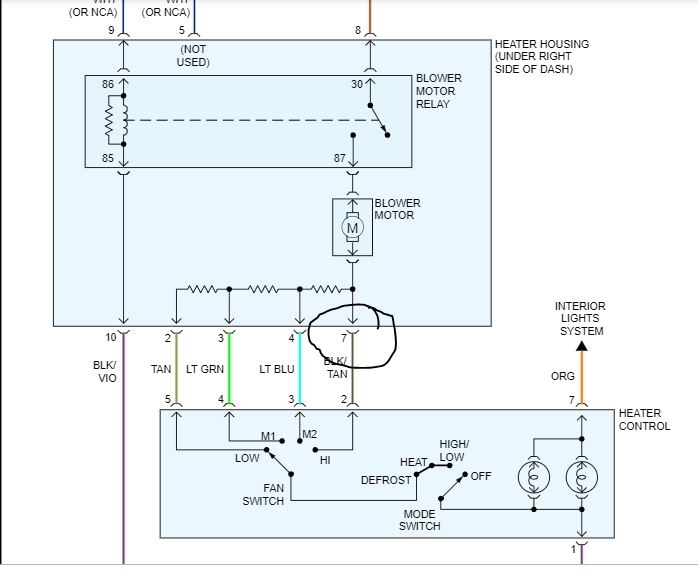
I sent you another diagram. Check the wire I circled for power when the blower motor will not work. It may be the blower motor itself.

How old is the resistor? Was the connector clean and tight?

Roy
Dec 2, 2019 at 5:15 PM
Avatar
WAYNEPAW
  • MEMBER
  • 49 POSTS
The resistor is brand new. I put wire connectors on terminal ends and soldered spliced together.
Dec 2, 2019 at 5:34 PM
Avatar
ASEMASTER6371
  • CERTIFIED EXPERT
  • 52,796 POSTS
Okay, you need to check the voltage at the blower motor when it does not work.

Roy
Dec 2, 2019 at 5:40 PM
Avatar
WAYNEPAW
  • MEMBER
  • 49 POSTS
Can I pull the motor out some to get to connector? Or Should I just pull the thing and replace it? I have a new one.
Dec 2, 2019 at 5:48 PM
Avatar
WAYNEPAW
  • MEMBER
  • 49 POSTS
So there would be just 2 wires at the motor is that correct? Also I can pick up a test light to check at blower switch(?) in dash?
Dec 2, 2019 at 5:53 PM
Avatar
ASEMASTER6371
  • CERTIFIED EXPERT
  • 52,796 POSTS
If you are going to pull it out and you have the replacement it makes sense to just replace it.

Roy
Dec 2, 2019 at 5:54 PM
Avatar
CARADIODOC
  • CERTIFIED EXPERT
  • 34,306 POSTS
Sorry to leave you sitting. Due to a major house fire, I don't have internet service at home. I have to drive 21 miles every day to hook up to the library's wireless service, then I sit in my van, freezing, for a few hours. I got snowed in the last two days and just got plowed out a few hours ago, so I'm back, at least until the next storm.

From reading all of your replies, it still sounds like there's a burned connection someplace. The resistor assembly is totally out of the circuit for the highest speed. Those will have a thermal fuse inside, but then only the "low", "medium 1", and "medium 2" would be dead. Those thermal fuses burn open when the fan motor has tight bearings, so if you ever find a defective resistor assembly, replace the motor too at the same time.

If the fan intermittently runs too slowly, the motor is not the cause of it being totally dead at times unless there's two different problems. The motor itself is okay, but to run too slow indicates there's excessive resistance in the circuit, and that is caused by burned or arced switch contacts, or connector terminals, or less-likely, arced relay contacts. Have you tried a different relay yet as I suggested?

As for having trouble taking voltage readings, welcome to our world. We fight with this quite often. One trick is to poke a paper clip in the back side of a connector, next to the wire, then use that as a test point. I use small jumper wires that hang down to where they're easy to reach with the voltmeter probe. We really need to know what voltages you have at various places in the circuit, to diagnose where the problem is. Without those readings, it's like complaining to your dentist ten times that your teeth hurt, but he has never looked in your mouth yet. There's only four or five places to measure, so that part isn't too involved. From the sounds of it, it's actually getting to those points that is causing your difficulty.

If you look at the first of the three diagrams I originally posted, I just noticed there is another connector shown, "C201", for this system. The dashed line between the wires indicates every wire related to the control assembly, relay, and fan motor, except for the ground wire, passes through this C201, so if you can find that, it's a perfect place to take voltage readings, and it's a perfect place to find overheated connector terminals. Judging from the size and number of terminals, this could be a bulkhead connector, and as such, it can be hard to reach and take readings on. The fan is a high-current circuit, and you'll see the terminals for the two wires I have arrows pointing to are much larger than most of the other terminals, to handle that high current.

As an alternative, here's another way to approach this. Pop the paper clip into the terminal for the black / tan wire, either at the heater box or at the back of the controller, whichever is easier to reach. To make this easier, connect a jumper wire to the paper clip. The only thing that can mess this up is if the paper clip isn't making a good connection to the terminal. That happens to me quite often. When the problem occurs and the fan doesn't run, use a longer piece of wire to ground the terminal / paper clip / jumper wire. I'm trying to cover every possibility, and in so doing, I'm probably making this sound harder than it is. The objective is to ground the black / tan wire. If the fan starts running at the highest speed when you do that, it proves everything in the circuit up to that point is okay, and the problem is after that point. Your jumper wire is bypassing the bad or burned connection. If the speed is still too slow or dead, the defect is before that point, including the motor, relay, fuse terminals, and C201.
Dec 2, 2019 at 5:54 PM
Avatar
WAYNEPAW
  • MEMBER
  • 49 POSTS
Thank you for your help Roy.
Dec 2, 2019 at 6:02 PM
Avatar
WAYNEPAW
  • MEMBER
  • 49 POSTS
Caradiodoc, sorry about the house fire and I meant no disrespect to you. I just didn’t know what was going on. I hope all is ok and everyone is fine.
Dec 2, 2019 at 6:04 PM
Avatar
CARADIODOC
  • CERTIFIED EXPERT
  • 34,306 POSTS
Yup. Thank you. The fire was over five years ago, but I'm just finally hoping to rebuild next summer. I lost four brand new interior door panels for my '93 Dynasty that I got when the car was new, still in sealed boxes, ($1800.00), and it heavily damaged a desk from Al Capone's hideout up north. Beyond that, everything can be replaced.
Dec 2, 2019 at 6:09 PM
Avatar
WAYNEPAW
  • MEMBER
  • 49 POSTS
Caradio, no I have not looked at any relays as I don’t know what they are or what to look for or where. Never thought of using a paper clip. Next question, on meter. The black lead will go to black/tan wire. Is the red then just a ground?
Dec 2, 2019 at 6:12 PM
Avatar
WAYNEPAW
  • MEMBER
  • 49 POSTS
Caradio, I see you sent a reply but it’s not loading here. I don’t know why. I’ll try to get some volt readings for you tomorrow and forward them.
Dec 2, 2019 at 6:27 PM
Avatar
ASEMASTER6371
  • CERTIFIED EXPERT
  • 52,796 POSTS
You are welcome.

Always glad to help.

Roy
Dec 2, 2019 at 6:42 PM
Avatar
WAYNEPAW
  • MEMBER
  • 49 POSTS
If I have any more problems just might look ya up. Thanks again!
Dec 2, 2019 at 7:05 PM