Front blower motor for heat/air not turning on ?

2013 DODGE DURANGO
70,000 MILES • 3.5L • V6 • 4WD • AUTOMATIC
Avatar
RYAN EHRLICH
  • MEMBER
  • 2 POSTS
My wife notified me she didn't have any heat in the car! So when I go home from work I checked to see what she was talking about and the front blower doesn't do anything. You can hear the blend doors open and close, no blower motor at all. Relay, motor, resister. I have no idea. It worked perfectly fine the day before. And the rear blower works fine it just blows cold air and that's it. More worried about the front blower than anything. Please help!
Oct 3, 2019 at 10:54 AM
Advertisement
Avatar
STRAILER
  • CERTIFIED EXPERT
  • 53,855 POSTS
Hello,

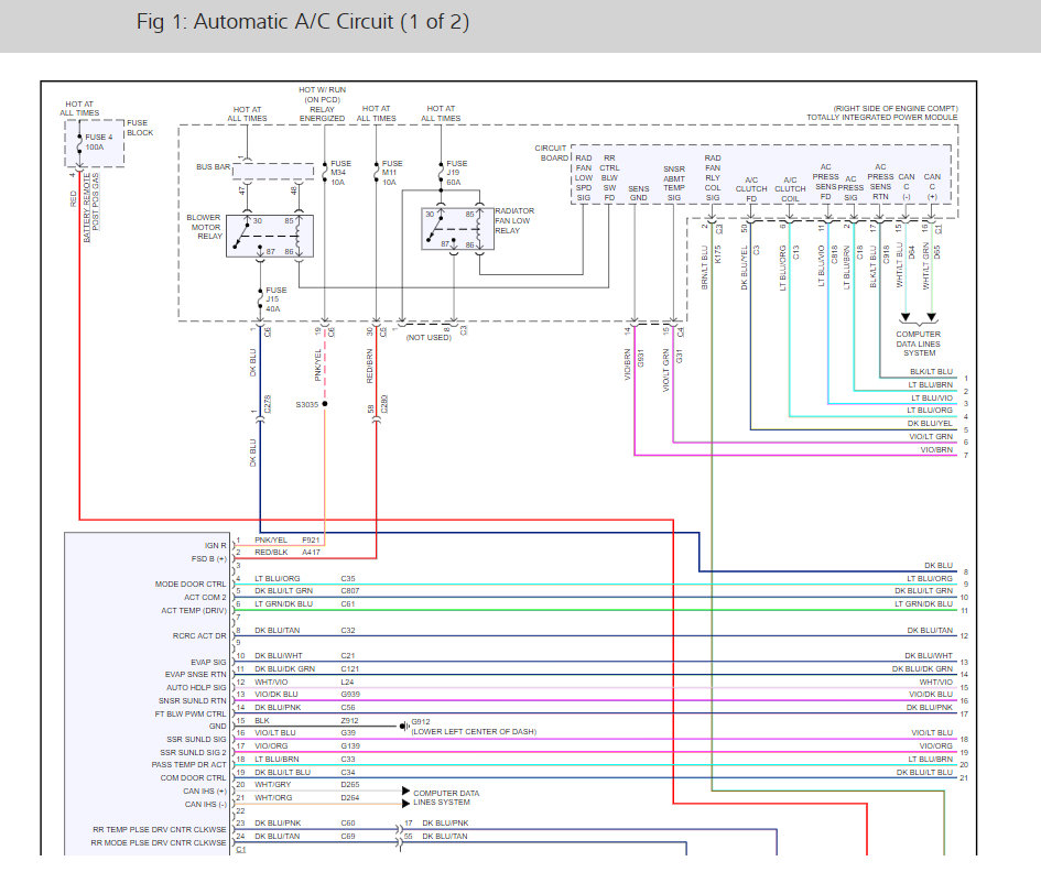
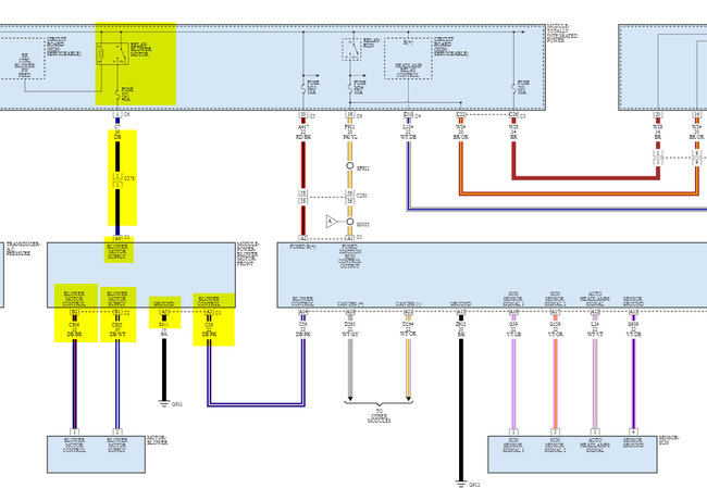
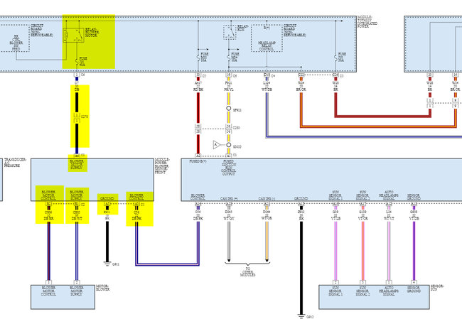
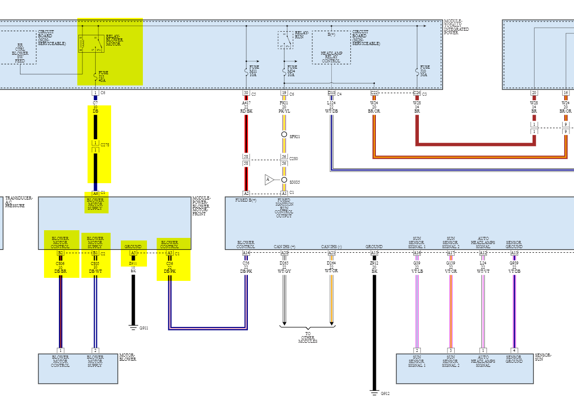
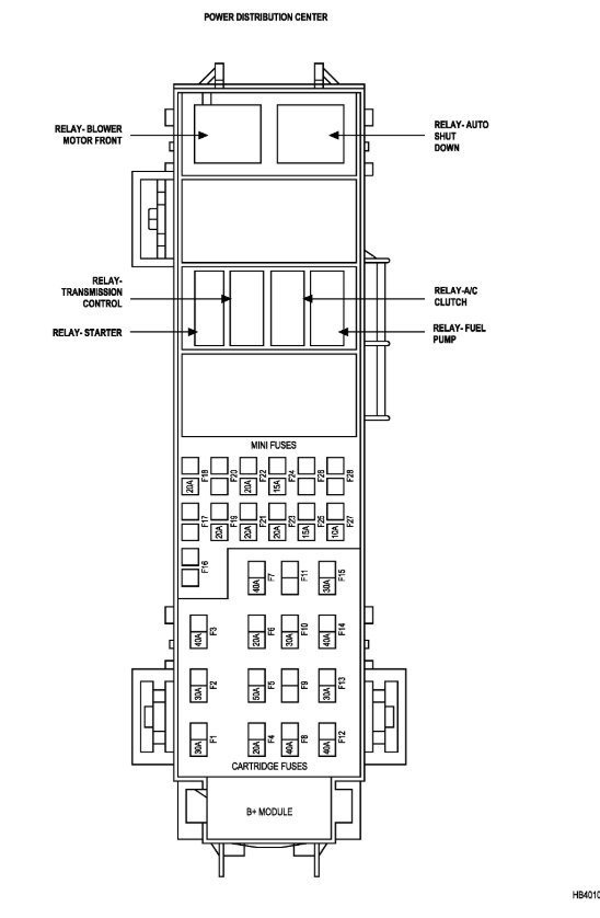
Lets check fuse # J15 to see if its okay if so it sounds like the blower motor or blower motor relay has gone out. To be sure here are three guides to help us see whats going on and the blower motor wiring diagrams below so you can see how the system works with the location of the blower motor and fuse with relay as well (below):
https://www.2carpros.com/articles/how-to-check-a-car-fuse

and

https://www.2carpros.com/articles/blower-fan-motor-works-on-high-speed-only

and

https://www.2carpros.com/articles/how-to-check-an-electrical-relay-and-wiring-control-circuit

Check out the diagrams (below). Please let us know what you find. We are interested to see what it is.
Oct 4, 2019 at 2:17 PM
Avatar
RYAN EHRLICH
  • MEMBER
  • 2 POSTS
I did figure it out last night! I went through and metered relay to make sure door was opening and closing by ohming everything out along with fuse! Everything ohmed out good! When I went to put the fuse panel cover back on I still had the key on and I heard the blower kick in. So I pulled the actual panel out and found loose and corroded wiring. Cleaned up and all good now! Thanks for the response!
Oct 4, 2019 at 2:26 PM
Advertisement
Avatar
KASEKENNY
  • CERTIFIED EXPERT
  • 18,907 POSTS
Hi,

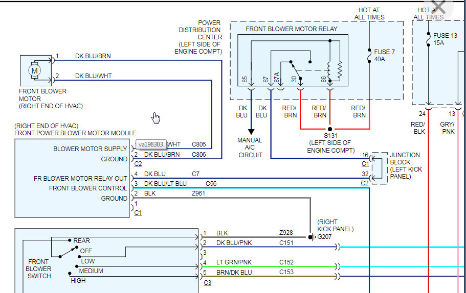
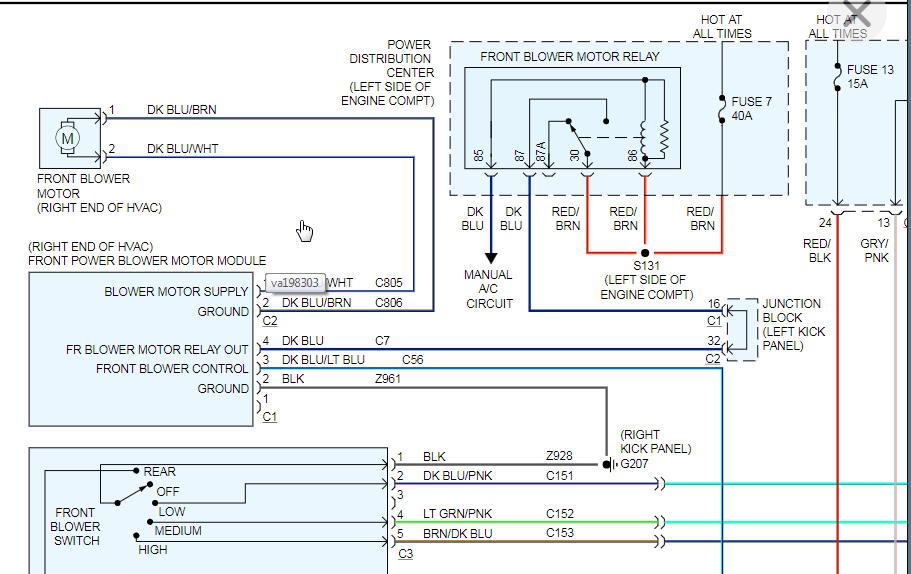
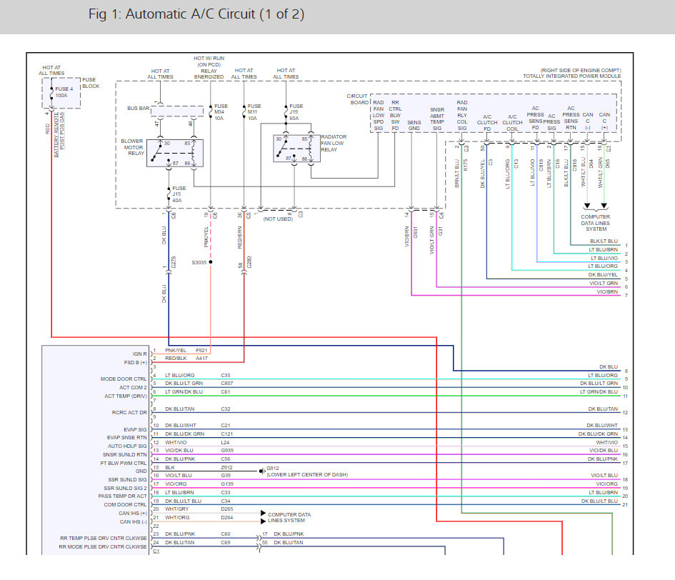
If the blower motor doesn't work at all then this could be the motor, wiring (loose or corroded), or relay, or a module. I highlighted where we need to take voltage readings when the blower motor is turned on. This will tell us what the issue could be. Let me know if you have questions but unfortunately your vehicle doesn't have just a resistor like older vehicles. Your blower motor is controlled by a power supply and then a control module. The blower motor control module gets a power supply from the TIPM and the HVAC control module tells the blower module when and at what speed to turn on.

Let me know if you have questions. Thanks
Oct 4, 2019 at 2:40 PM
Avatar
MATRIX2868
  • MEMBER
  • 8 POSTS
Duel Air system. The air in the back of the truck works fine but there is no air coming out the vents in the front of the truck. when its standing still and i cannot hear the blower motor. I do feel a little cool air from the front vents when the truck is actually down the road 'but still can not hear the blower motor 'when the truck stops so do the front air .but its running and cool in the back of the truck.
Aug 6, 2020 at 10:46 AM (Merged)
Avatar
JACOBANDNICKOLAS
  • CERTIFIED EXPERT
  • 110,175 POSTS
Welcome to 2CarPros.

It sounds like either there is no power to the front blower motor or the motor itself failed. Does it run if you put it on high speed?

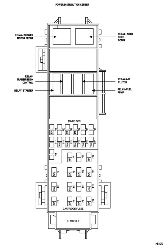
Lets start with the basics. I need you to check two fuses in the under hood fuse box. See the attached wiring schematic for fuse numbers.

Here are a few links you may find helpful:

https://www.2carpros.com/articles/how-a-car-fuse-works

https://www.2carpros.com/articles/how-to-check-a-car-fuse

https://www.2carpros.com/articles/how-to-use-a-test-light-circuit-tester

https://www.2carpros.com/articles/how-to-use-a-voltmeter

https://www.2carpros.com/articles/how-to-check-wiring

Check there first and let me know what you find. Also, let me know if it runs on any speed.

Joe
Aug 6, 2020 at 10:46 AM (Merged)
Avatar
MATRIX2868
  • MEMBER
  • 8 POSTS
I do apologize for the typos in the question i asked. this is a redo of the same question.


The vehicle listed above has duel air system. The problem is the air in the front not working properly . The back of the truck works fine. but there is no air coming out the vents in the front of the truck when its standing still. there is no sound from the blower Motor. There is a little cool air from the front vents when the truck is actually moving down the road 'but still can not hear the blower motor. but as soon as the truck stops' so do the front air .but its running fine in the back of the truck.
any ideas what this could be?
Aug 6, 2020 at 10:46 AM (Merged)
Avatar
KASEKENNY
  • CERTIFIED EXPERT
  • 18,907 POSTS
Hi,

Sounds like the blower motor is not running at all. The small amount of air coming out is most likely because the system allows air in and is sped up by the blower fan so that is just the natural amount of air coming into the system.

We need to measure power at the blower motor to find out if we have an issue with the motor or the power getting to it. If there is power there then the motor has failed. If no power then it could be a module issue or maybe a relay issue which is part of the Power Distribution Center (PDC).

Here is a guide that shows how to test wiring. Unfortunately, we need to do some testing because we don't want to just replace parts because of the number of different things that it could be.

Here is a guide that talks about how to test wiring:

https://www.2carpros.com/articles/how-to-check-wiring

Let me know what you find at the blower motor and we can go from there.
Aug 6, 2020 at 10:46 AM (Merged)
Avatar
PETE663
  • MEMBER
  • 2 POSTS
front heater not working rear working fine all fuses good. I'm not getting any air at all?
Aug 6, 2020 at 10:46 AM (Merged)
Avatar
ERNEST CLARK
  • CERTIFIED EXPERT
  • 1,730 POSTS
Hello,

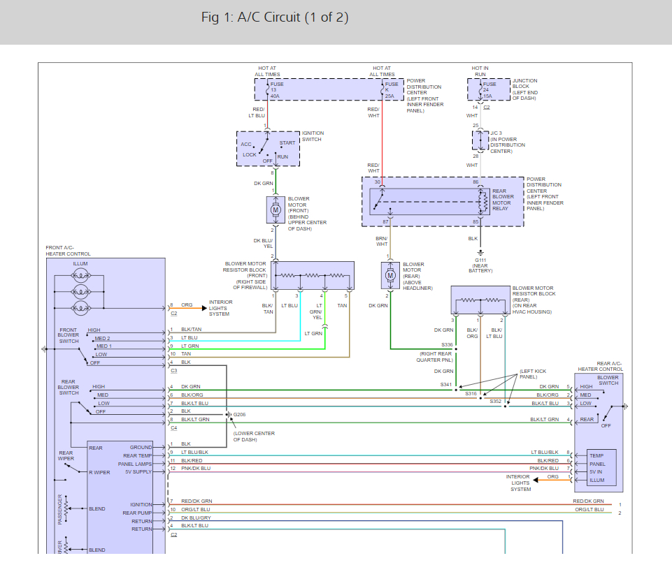
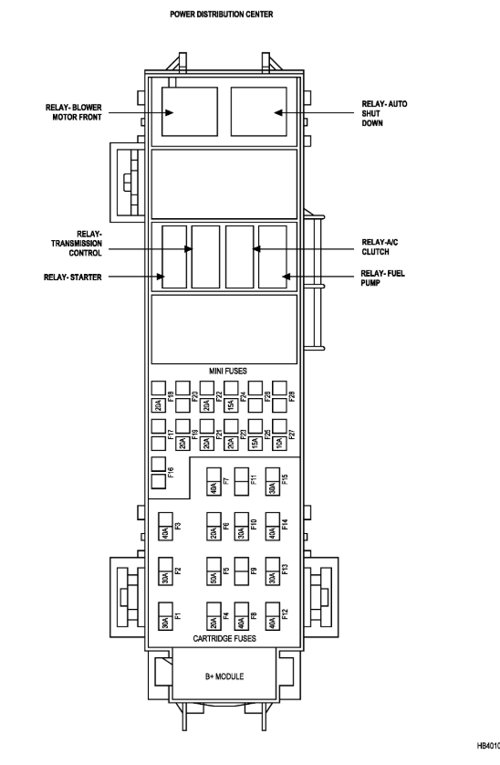
There is a rear blower motor relay that needs to be checked and the blower motor here are two guides that will help us fix the problem with the blower motor wiring diagrams so you can see how it work with eh relay locations as well.

https://www.2carpros.com/articles/how-to-check-an-electrical-relay-and-wiring-control-circuit

and

https://www.2carpros.com/articles/blower-fan-motor-works-on-high-speed-only

Check out the diagrams (Below). Please run this test and get back to us.

Aug 6, 2020 at 10:46 AM (Merged)
Avatar
PETE663
  • MEMBER
  • 2 POSTS
Thank you so much for your help I had to replace the rear blower motor to fix the problem.
Aug 6, 2020 at 10:46 AM (Merged)
Avatar
ERNEST CLARK
  • CERTIFIED EXPERT
  • 1,730 POSTS
No problem. If you need any more assistance just ask.
Aug 6, 2020 at 10:46 AM (Merged)
Avatar
A.ARON
  • MEMBER
  • 4 POSTS
I am having the same problem in my 2001 dodge durango. the front blower motor is not working but the rear works just fine. The front doesn't work on any speeds. Hooked up the blower motor to 12v battery and it fired right up. replaced the resistor and the pigtail harness still nothing. all the fuses are good and no melting on any of the relays. what could i possibly try next?
Aug 6, 2020 at 10:46 AM (Merged)
Avatar
STRAILER
  • CERTIFIED EXPERT
  • 53,855 POSTS
Hello,

Can you test for power on the dark blue wire going to the power transistor? Test is with the key on here is a guide to help. Check out the wiring diagrams in the second post to see how they system works in this thread.

https://www.2carpros.com/articles/how-to-use-a-test-light-circuit-tester

Please run down this guide and report back.
Aug 6, 2020 at 10:46 AM (Merged)
Avatar
A.ARON
  • MEMBER
  • 4 POSTS
I will have to buy that test light unfortunately I will not be able to do it until tomorrow. Where would be the relay for the front blower? When looking on the fuse box diagram it only has listed for the rear blower motor. I do not believe I am getting power but will know for sure tomorrow.
Aug 6, 2020 at 10:46 AM (Merged)
Avatar
STRAILER
  • CERTIFIED EXPERT
  • 53,855 POSTS
The relay is in the fuse panel in the cab. Here is a guide to help check it and the location of the relay below:

https://www.2carpros.com/articles/how-to-check-an-electrical-relay-and-wiring-control-circuit

Check out the diagrams (below). Please let us know what happens.
Aug 6, 2020 at 10:46 AM (Merged)
Avatar
A.ARON
  • MEMBER
  • 4 POSTS
There is no power to the dark blue wire.
Aug 6, 2020 at 10:46 AM (Merged)
Avatar
A.ARON
  • MEMBER
  • 4 POSTS
That diagram does not match the fuse panel in my 2001 Dodge Durango
Aug 6, 2020 at 10:46 AM (Merged)
Avatar
STRAILER
  • CERTIFIED EXPERT
  • 53,855 POSTS
Sorry that was for a 2004 on a 2001 there is no front blower relay only a rear here are the wiring diagrams so you can see how the system works with a guide on how to check for power so you can tell where the problem is. Key on switch on you should have power at the dark green wire

https://www.2carpros.com/articles/how-to-use-a-test-light-circuit-tester

and

https://www.2carpros.com/articles/blower-fan-motor-works-on-high-speed-only

Check out the diagrams (Below). Please let us know what you find.
Aug 6, 2020 at 10:46 AM (Merged)
Avatar
JOEY WARD
  • MEMBER
  • 3 POSTS
My SUV has no heat. The fan does not work. I can feel minimal heat so I know it heats but no fan. Cannot find any diagrams to check fuses.
Aug 6, 2020 at 10:47 AM (Merged)
Avatar
JOHNNY G.JR
  • CERTIFIED EXPERT
  • 320 POSTS
Check for twelve volts at heater connector, There is a relay in engine compartment for A/C. There is also a resistor on heater box that needs to be checked.
Aug 6, 2020 at 10:47 AM (Merged)
Avatar
JOEY WARD
  • MEMBER
  • 3 POSTS
Thanks, Johnny. I don't have a tester so I guess I will end up at the shop. Any idea where to find a fuse box diagram?
Aug 6, 2020 at 10:47 AM (Merged)
Avatar
STEVE W.
  • CERTIFIED EXPERT
  • 15,113 POSTS
Does it have the manual controls or the automatic heat system. Different power feeds and controls.

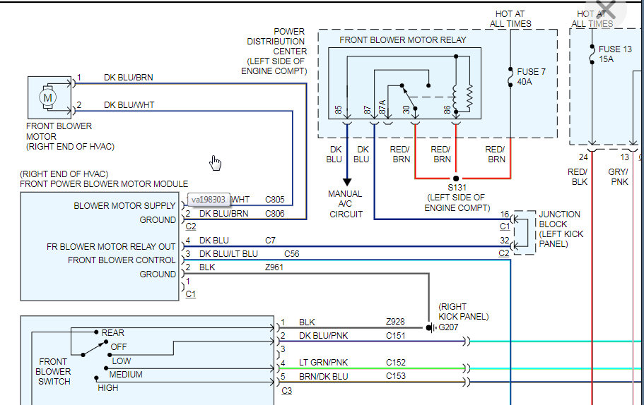
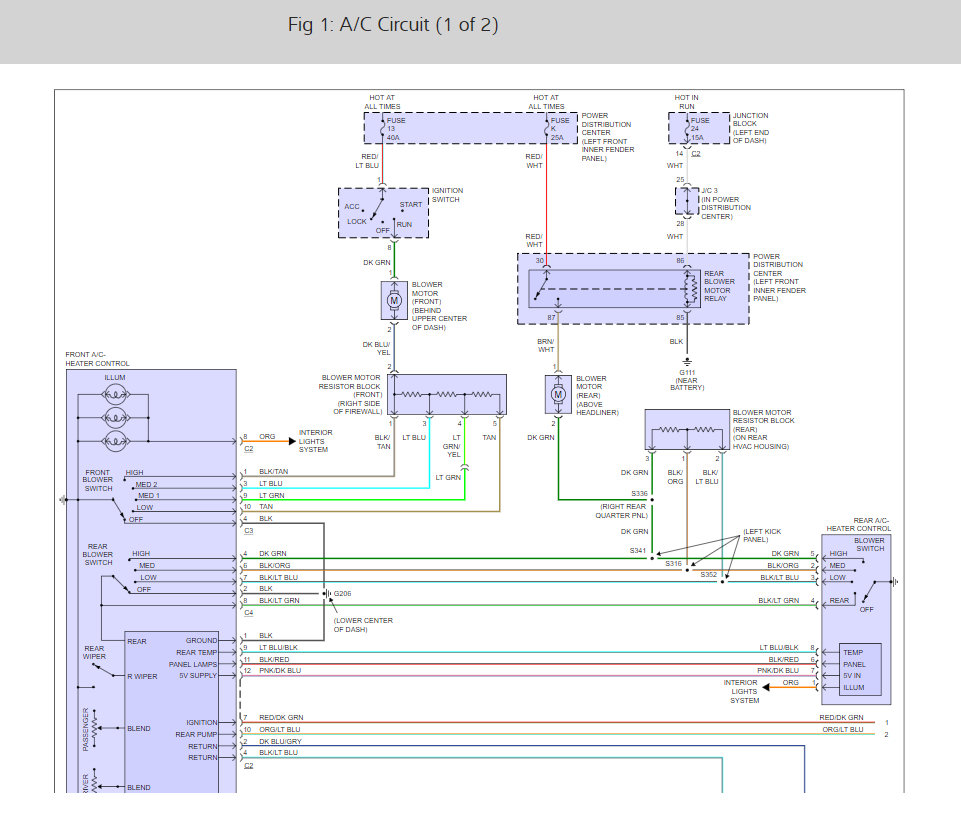
Manual control - Fuse 7 (40A) in the PDC on the left fender. It feeds power to the fan relay on the left side of the header panel through a Red wire. Then out of the relay to the blower motor through a Dark Blue wire. The motor is grounded through the Dark Blue w/Gray trace wire through the blower motor resistor in the right side of the HVAC plenum.
To test the feed side you could take a section of wire, connect it to the battery positive and to the Dark Blue wire on the blower motor. If the blower runs and you can change speeds, the problem is the relay, fuse or associated wiring. If it doesn't then the resistor or control switch or ground (behind right kick panel, also grounds rear blower control)

Automatic control - Looks like the blower control module (right side of HVAC duct) the blower motor or the control head would be the issue. They share power with the rear system.
Aug 6, 2020 at 10:47 AM (Merged)
Avatar
JOHNNY G.JR
  • CERTIFIED EXPERT
  • 320 POSTS
check underside of fuse box cover for diagram
Aug 6, 2020 at 10:47 AM (Merged)
Avatar
JOEY WARD
  • MEMBER
  • 3 POSTS
Steve, the rear blower works fine and yes, the system is automatic.
Aug 6, 2020 at 10:47 AM (Merged)
Avatar
STEVE W.
  • CERTIFIED EXPERT
  • 15,113 POSTS
OK, you had to have the upscale system... :-)

On the right side of the heater box you will find the blower control module.
It will have two connectors on it.
One with 2 wires that goes to the blower motor
The other with 3 wires that provides the control and power.

First check for 12V on the Dark Blue wire with the key on.
If you have power there use it with a test light to check the Black wire for ground.

If both of those check out. Unplug the two wire connector.
Connect a jumper from the Black ground wire to the Dark Blue with Brown trace wire. in the connector.
Touch a jumper wire from the power (Dark Blue) wire to the Dark Blue with White trace wire. If the blower motor starts running the motor is OK.

That leaves the blower control module and the head unit. Depending on how the control system works the next test >>> might
Aug 6, 2020 at 10:47 AM (Merged)
Avatar
JAME1416
  • MEMBER
  • 1 POST
Air Conditioning problem
2003 Dodge Durango V8 Four Wheel Drive Automatic

What would make my air blower completely stop working in the front of my car but it still works in the back? I was driving home yesterday and went to turn my air on and it just wouldnt work but it had worked on my way to work. I just dont understand.
Aug 6, 2020 at 10:47 AM (Merged)
Avatar
BLUELIGHTNIN6
  • CERTIFIED EXPERT
  • 16,542 POSTS
you have separate blower motors for front and rear. most likely either loss of power to the front blower motor or the blower motor itself is shot. first check fuses and check blower motor relays.
Aug 6, 2020 at 10:47 AM (Merged)
Avatar
JVONHOLTZ
  • MEMBER
  • 1 POST
Heater problem
2003 Dodge Durango V8 Four Wheel Drive Automatic

my vehicles front blower is not working. the rear one is and i have checked the fuses and everything seems to be fine. what else could it be or do i have to replace the blower
Aug 6, 2020 at 10:47 AM (Merged)
Avatar
BMRFIXIT
  • CERTIFIED EXPERT
  • 19,053 POSTS
Locate blower motor and disconnect plug
place switch on high
use a test light check for battery power at wire plug
and check for ground
one should have battery volts and the other should have ground
and if so replace the blower motor its no good

This guide can help

https://www.2carpros.com/articles/blower-fan-motor-works-on-high-speed-only

Aug 6, 2020 at 10:47 AM (Merged)
Avatar
DMRODRIGUEZ
  • MEMBER
  • 1 POST
The problem I'm having is that my front AC/heater does not work. It doesn't blow at all. My rear AC works just fine. But when I do drive and going like 60 I can feel some cool air coming out then when I stop so does the air. I changed the fuse inside the car and was told the one under the hood was fine. What could it be?
Aug 6, 2020 at 10:47 AM (Merged)
Avatar
JACOBANDNICKOLAS
  • CERTIFIED EXPERT
  • 110,175 POSTS
You need to start by checking if there is power to the blower motor under the dash. If there is power, chances are the motor is bad. If there is no power, it could be a few things. We will need to trace the wiring back from the engine to the switch to see where power is lost.
Aug 6, 2020 at 10:47 AM (Merged)
Avatar
JASMINEMONAHAN
  • MEMBER
  • 8 POSTS
The air blower motor is located behind the glove box.On the casing is a speed control resistor unit which does go, but usually you still have fan top speed only.If the blower is completely dead i would expect a blown fuse if the motor has seized unless you have a faulty connector somewhere.
Aug 6, 2020 at 10:47 AM (Merged)
Avatar
PFERDIG
  • MEMBER
  • 2 POSTS
I have an issue with the heater fan in my wifes Durango. The heater or defraust fan will not turn on when you thurn the knob to any level. The rear fan does work. I checked and the fuse is good. Any suggestions?
Aug 6, 2020 at 10:51 AM (Merged)
Avatar
MSP54
  • MEMBER
  • 3 POSTS
[quote:d6b6f41ada="pferdig"]Heater problem
2003 Dodge Durango V8 Four Wheel Drive Automatic 65,000 miles
----------------------------------------------------------------
I have an issue with the heater fan in my wifes Durango. The heater or defraust fan will not turn on when you thurn the knob to any level. The rear fan does work. I checked and the fuse is good. Any suggestions?[/quote:d6b6f41ada]

pferdig: Replace blower relay. Look under dash on passenger side. Locate harness with plug into blower box...unplug. Now remove this outlet from the blower box (two screws)...the blowen relay is built into this outlet...replace this part...reassemble and connect. This SHOULD take care of the problem (I've replaced mine twice) To prevent this, do not turn on blower when vehicle interior is HOT...open window and cool down interior before turning on AC and blower...seems to have worked for me
Aug 6, 2020 at 10:51 AM (Merged)
Avatar
MSP54
  • MEMBER
  • 3 POSTS
REPLACE BLOWER RELAY Look underdash on passenger side. Locate harness that plugs into blower box. Unplug the harness. The "blowen relay" is built into the plugs outlet...remove the two screws on the outlet, pull downwards...remove the outlet and replace with new relay/outlet. Reattach harness. I replaced mine twice. I've learned to NOT turn on AC/blower when vehicle interior is excessively hot...I now open window and cool down interior, then turn on blower fan ONLY for a moment to purge hot air. Once reasonably cooled down, then turn on AC....good luck.
Aug 6, 2020 at 10:51 AM (Merged)
Avatar
CMONROE
  • MEMBER
  • 1 POST
blower fan not working in 2003 dodge durango
Aug 6, 2020 at 10:51 AM (Merged)
Avatar
MMPRINCE4000
  • CERTIFIED EXPERT
  • 8,548 POSTS
If fan does not work at all, then fuse/relay would be first thing to check. If OK then apply 12V to fan motor to see if motor is problem.
Aug 6, 2020 at 10:51 AM (Merged)
Avatar
TONY CINKUTIS
  • MEMBER
  • 2 POSTS
Heater problem
2003 Dodge Durango V8 Four Wheel Drive Automatic

was told heater blower motor was not working because of blower fuseor capacitor or resistor located near blower motor. where is it? have replaced blower motor to no avail. checked all fuses also.
Aug 6, 2020 at 10:51 AM (Merged)
Avatar
BUDDYCRAIGG
  • CERTIFIED EXPERT
  • 2,262 POSTS
you should still have HIGH speed on the fan if it was the resistor pack. No high speed and the resistor pack was the fault
Aug 6, 2020 at 10:51 AM (Merged)
Avatar
BUDDYCRAIGG
  • CERTIFIED EXPERT
  • 2,262 POSTS
Tony, is your email address listed on your profile correct?
And do you know how to read schematics?
Aug 6, 2020 at 10:51 AM (Merged)