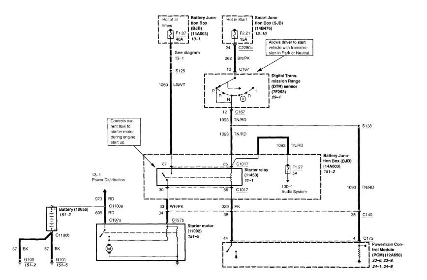
I got a check charging system message a few days ago then it went away. I figured the alternator would be going soon. I started it up today, fired right up, started out the drive and it stalled as I pressed the accelerator. Tried to restart but nothing. Silence. A single click from under the dash and silence. I had been having issues with the TRS in the past so I changed it. Same result. I can roll the starter by jumping the relay. When I test the solenoid for juice when turning the key I get nothing. I also never get juice to the second pin on starter relay when key is turned. Something is not allowing the signal to pass to the starter relay and additionally not allowing spark at coil pack. Any ideas on where to check? I have tried all I can on this forum. I am using a battery jump box 700A to assist. Bright lights no dim when key turned, radio intermittent when key is in on position.
Oct 26, 2018 at 11:23 AM
