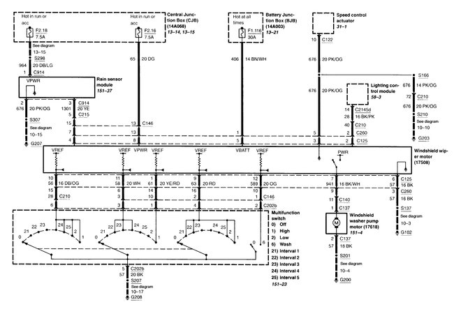
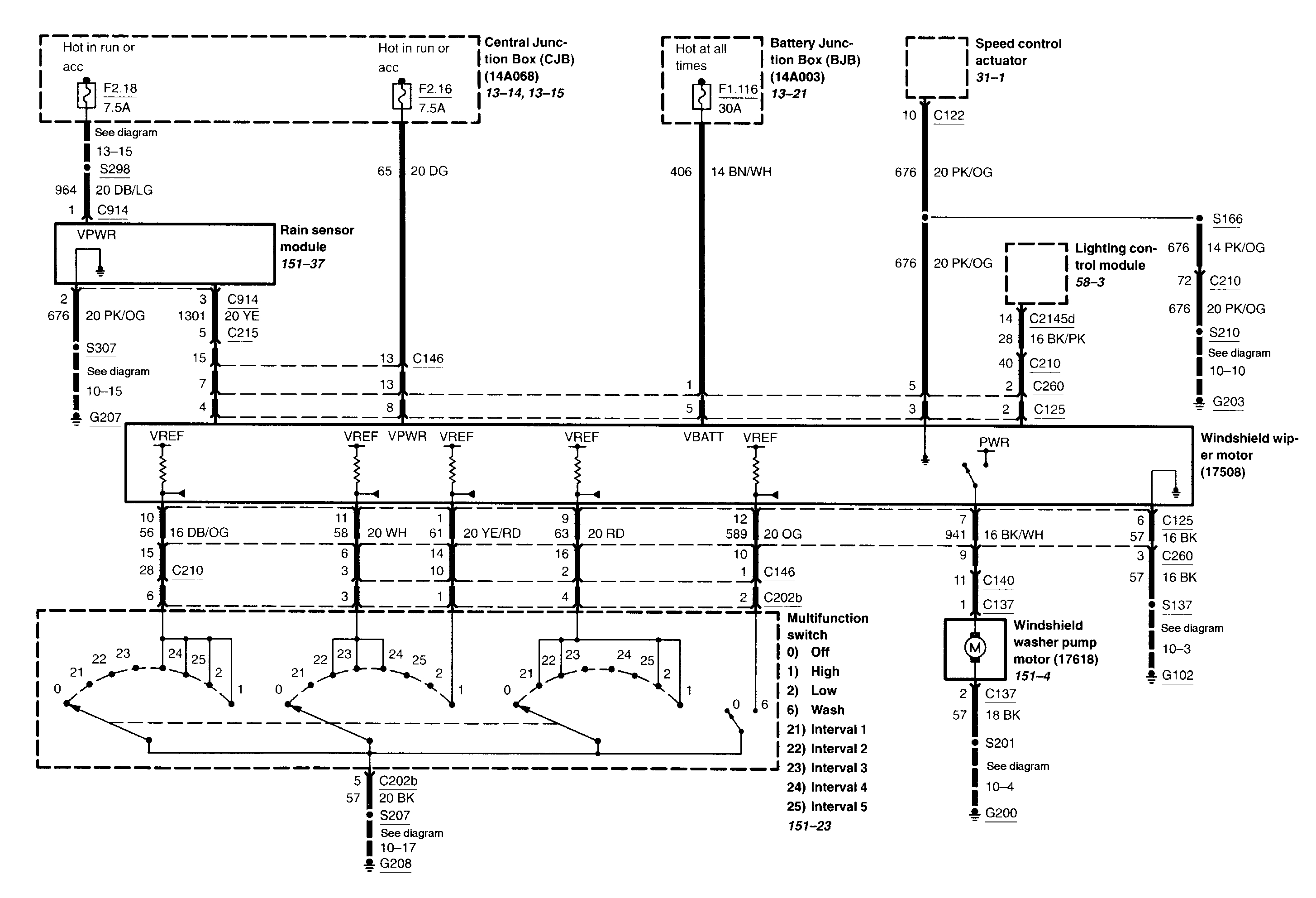
The actual electronic switch that turns the washer pump on is integral to the wiper motor, I'll include the diagram in case you don't have it. You can check voltage at the orange wire at the multi-function switch or just ground it with the key on which should activate the pump. If the pump does not activate just verify that the circuits between the multi-function switch to the wiper motor have continuity, as well as the circuit between the wiper motor to the pump, if these circuits are good and the switch is good= wiper motor. I'll include the pinpoint tests from the repair manual if this helps better.
Images (Click to enlarge)
Aug 3, 2019 at 1:42 PM