HVAC Vents won't switch?

1998 CHEVROLET BLAZER
180,000 MILES • 4.3L • 6 CYL • 4WD • AUTOMATIC
Avatar
THEMAILMAN
  • MEMBER
  • 102 POSTS
So the vents won't switch around. Heat is only blowing through the dash vents. Nothing comes through the defrost unless I close everything else up, then a bit dribbles out everywhere. Fan speed changes fine. Temperature changes fine. AC works as it should. I'm thinking it's vacuum related, but can't find the issue. I'm thinking vacuum because I had to play with and replace lines and connectors in order to get the 4x4 working, and it's still a bit sluggish to get going.

Or does 98 not have a vacuum actuator for the vents?
Dec 8, 2025 at 2:10 PM
Advertisement
Avatar
STRAILER
  • CERTIFIED EXPERT
  • 53,855 POSTS
Yep, this is a classic vacuum related problem, I would start under the hood to see if the small vacuum line that goes from the engine to the vacuum storage container to the firewall is in good shape, this guide can help:

https://www.2carpros.com/articles/air-vents-stay-in-the-defrost-position

There is a vacuum rotator valve inside the HVAC control head that falls apart as well. Here is what it looks like. Please upload a short video in your response of the problem. Check out the images (below).
Dec 9, 2025 at 11:17 AM
Avatar
STEVE W.
  • CERTIFIED EXPERT
  • 15,113 POSTS
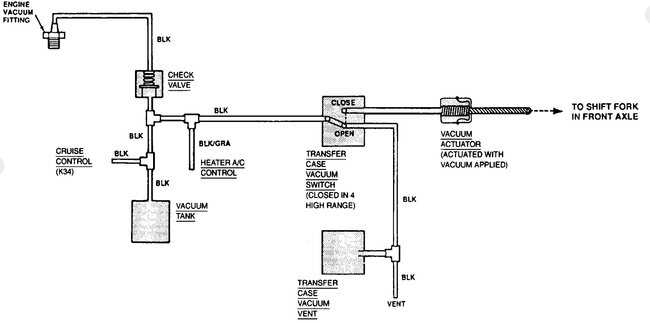
Being a Blazer you have a few things to check. The vacuum line into the canister is one but any vacuum leaks will cause problems, one of the worst is the hardest to get to, that is the line that goes under the battery to the front axle actuator. The fastest way to tell if it is inside or outside is to use a hand vacuum pump and connect it to the line that goes into the vacuum canister, Then apply vacuum, try the controls, does it now switch? If yes it's under the hood. There are a few lines that can be the issue, one to check if you worked on the 4X4 is the triple line that goes onto the transfer case that sends vacuum to the front actuator. One is vacuum, one is the line to the front axle and the other is a vent. If it was plugged on in the wrong location it could cause both the sluggish actuation and the interior problems. FYI, there is an aftermarket kit you can install that replaces the vacuum actuator under the battery with a motor. Makes it switch much faster. Attached are the relevant vac diagrams.
Dec 9, 2025 at 1:34 PM
Advertisement
Avatar
THEMAILMAN
  • MEMBER
  • 102 POSTS
Ok so the main area I worked in was around the lines near the firewall on the driver's side. Those were all dry rotted and beyond broken, to the point where I was guessing where they went. Trial and error. I forgot until looking over the diagrams but I also managed to make the cruise control more reliable. It doesn't drop out after 5 minutes anymore. I'm betting something is incorrectly routed. I'm not sure I've even seen that vent, so maybe that's the issue.

As for the the front axle actuator, it was the first thing I checked last year when the 4x4 wasn't working. I've had experience with Blazers before. The thing had already been replaced, vacuum line and all.

Anyways, it appears I'm pretty close. Thanks for the info
Dec 11, 2025 at 6:31 PM
Avatar
STRAILER
  • CERTIFIED EXPERT
  • 53,855 POSTS
Yep, check the vacuum source at the firewall, this is where the failure occurs.
Dec 13, 2025 at 8:34 AM