code po500, Vehicle speed sensor replacement?

2001 INFINITI I30
127,567 MILES • 2WD • AUTOMATIC
Avatar
AMANDA SULLIVAN
  • MEMBER
  • 1 POST
I replaced the VSS that is located on the driver side; however, I still have the code. I'm pretty sure the other VSS is factory capped off. What do I do or how do I fix this so I can pass smog?
Aug 8, 2022 at 3:27 PM
Advertisement
Avatar
SQM
  • CERTIFIED EXPERT
  • 6,383 POSTS
Hello,

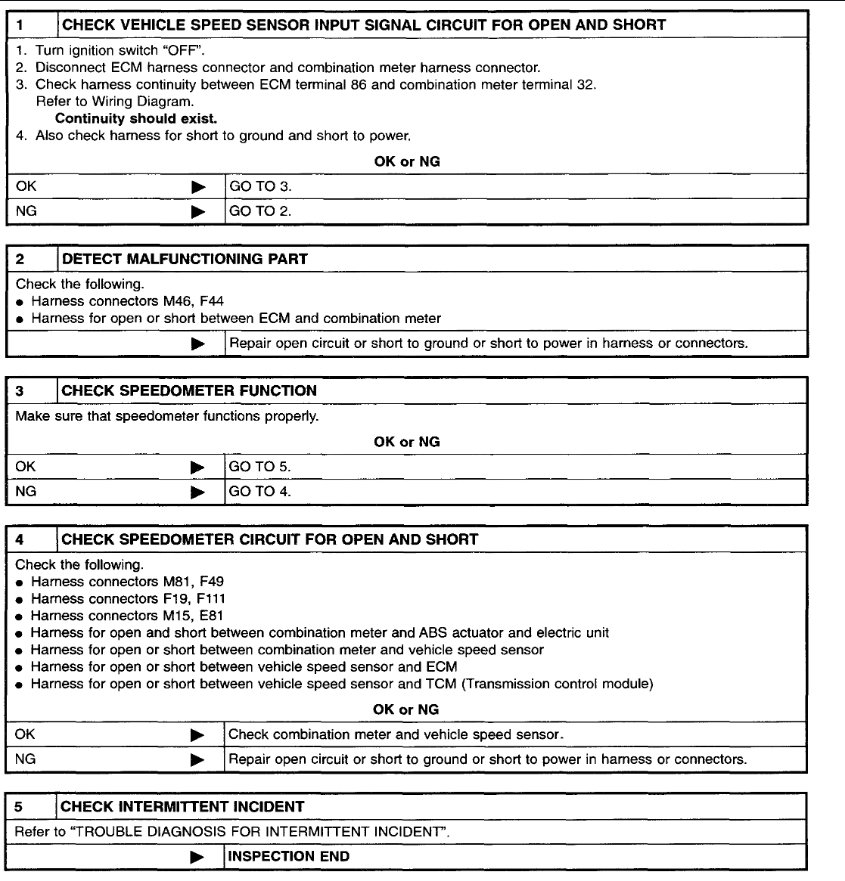
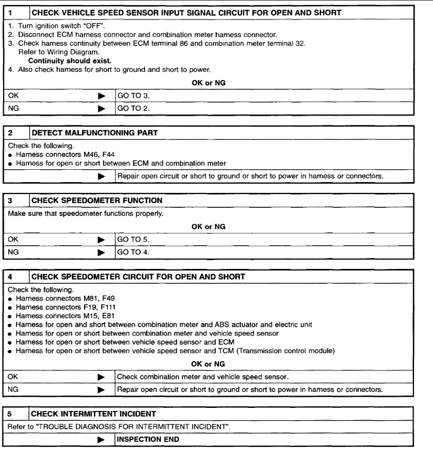
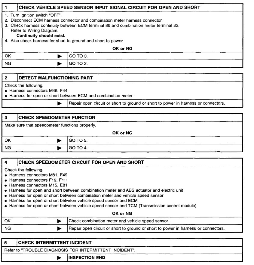
The P0500 can get triggered due to a faulty harness for the VSS. If there is loose connection or having a short or open could cause this.
First make sure the wire is secure to the connector. Check for any corrosion.

I have attached the diagnostics procedure for the code P0500 below.

Let me know of any questions.
Thank you.
Aug 8, 2022 at 6:27 PM