Okay, I attached the description and the flow chart for the 841 code.
The 507 is engine-related, not transmission-related.
Roy
P0841-LR PRESSURE SWITCH RATIONALITY
imageOpen In New TabZoom/Print
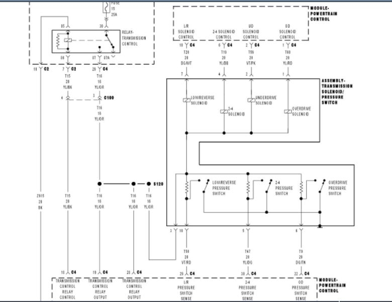
For a complete wiring diagram Refer to Diagrams/Electrical. See: Vehicle > Electrical
Theory of Operation
The Transmission system uses three pressure switches to monitor the fluid pressure in the LR, 2/4, and OD elements. The pressure switches are continuously monitored for the correct states in each gear. If a set condition is identified, 1st gear and torque converter lock-up (EMCC) will be inhibited. The vehicle will launch in 2nd gear and shift normally through the gears without allowing EMCC. If during the same key start, the set condition is no longer valid, the transmission will return to normal operation (1st and EMCC available). Limp-in will not occur unless DTC P0841 is accompanied by a code P0706 and the MIL will illuminate after 5 minutes of substituted operation.
- When Monitored:
Whenever the engine is running.
- Set Condition:
The DTC is set if one of the pressure switches are open or closed at the wrong time in a given gear. If the problem is identified for 3 successive key starts, the transmission will go into Limp-in mode and the MIL will turn on after 10 seconds of vehicle operation.
imageOpen In New TabZoom/Print
Always perform the 42RLE Pre-Diagnostic Troubleshooting procedure before proceeding. See: Automatic Transmission/Transaxle > Initial Inspection and Diagnostic Overview > Pre-Diagnostic Check Out
Pressure Switch States
imageOpen In New TabZoom/Print
Diagnostic Test
1. CHECK FOR TCM POWER INPUT OR TRANSMISSION CONTROL RELAY DTCs
With the scan tool, check for TCM Power Input or Transmission Control Relay DTCs.
Are there any TCM Power Input or Transmission Control Relay DTCs present?
Yes
- Refer to the Transmission and Drivetrain and perform the appropriate diagnostic procedure.
No
- Go to 2
2. CHECK FOR LOSS OF PRIME DTC
With the scan tool, check for other Transmission DTCs.
Is the DTC P0944 present also?
Yes
- Refer to the Transmission and Drivetrain and perform the appropriate diagnostic procedure.
No
- Go to 3
3. CHECK TO SEE IF P0841 IS CURRENT
With the scan tool, view DTCs.
Is the status active for this DTC or is the STARTS SINCE SET counter 2 or less?
Yes
- Go to 4
No
- Go to 8
4. PCM AND WIRING
Turn the ignition off to the lock position.
Remove the Starter Relay.
CAUTION: Removal of the Starter Relay will prevent the vehicle from being started in gear.
WARNING: The Starter Relay must be removed from the PDC. Failure to do so can result in personal injury or death.
NOTE: Removal of the Starter Relay is to prevent a Transmission, NO RESPONSE, condition and disable the starter.
Install the Transmission Simulator, Miller tool #8333 and the Electronic Transmission Adapter kit.
Ignition on, engine not running.
With the Transmission Simulator, turn the Pressure Switch selector to L/R.
With the scan tool, monitor the L/R Pressure Switch state while pressing the Pressure Switch Test button on the Transmission Simulator.
Did the L/R Pressure Switch state change?
Yes
- Replace the Transmission Solenoid/Pressure Switch Assembly.
- Perform 42RLE TRANSMISSION VERIFICATION TEST - VER 1. See: A L L Diagnostic Trouble Codes ( DTC ) > Verification Tests
No
- Go to 5
5. (T50) L/R PRESSURE SWITCH SENSE CIRCUIT OPEN
imageOpen In New TabZoom/Print
Turn the ignition off to the lock position.
Disconnect the PCM C4 harness connector.
Disconnect the Transmission Solenoid/Pressure Switch Assembly harness connector.
CAUTION: Do not probe the PCM harness connectors. Probing the PCM harness connectors will damage the PCM terminals resulting in poor terminal to pin connection. Install Miller Special Tool #8815 to perform diagnosis.
Measure the resistance of the (T50) L/R Pressure Switch Sense circuit between the Transmission Solenoid/Pressure Switch Assembly harness connector and the appropriate terminal of Miller tool #8815.
Is the resistance above 5.0 ohms?
Yes
- Repair the (T50) L/R Pressure Switch Sense circuit for an open.
- Perform 42RLE TRANSMISSION VERIFICATION TEST - VER 1. See: A L L Diagnostic Trouble Codes ( DTC ) > Verification Tests
No
- Go to 6
6. (T50) L/R PRESSURE SWITCH SENSE CIRCUIT SHORT TO GROUND
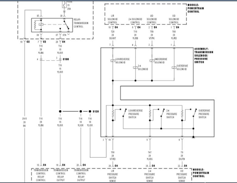
imageOpen In New TabZoom/Print
Measure the resistance between ground and the (T50) L/R Pressure Switch Sense circuit.
Is the resistance below 5.0 ohms?
Yes
- Repair the (T50) L/R Pressure Switch Sense circuit for a short to ground.
- Perform 42RLE TRANSMISSION VERIFICATION TEST - VER 1. See: A L L Diagnostic Trouble Codes ( DTC ) > Verification Tests
No
- Go to 7
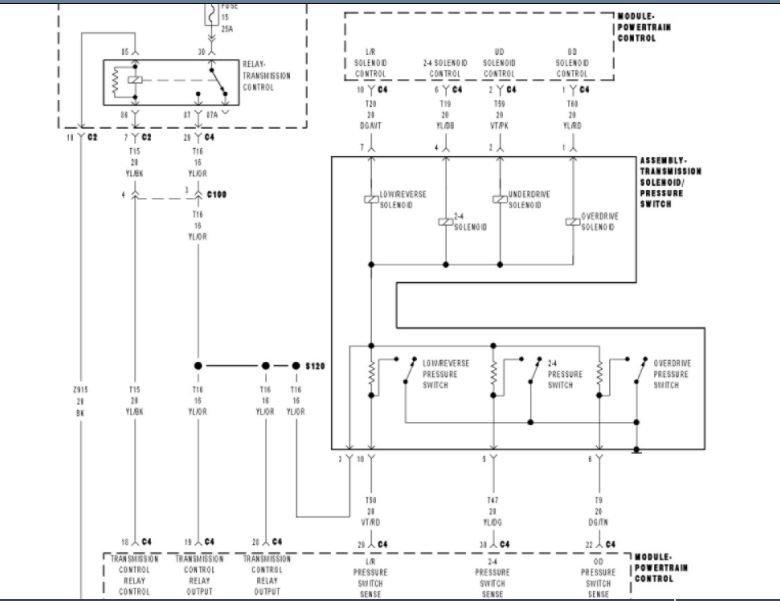
7. (T50) L/R PRESSURE SWITCH SENSE CIRCUIT SHORT TO VOLTAGE
imageOpen In New TabZoom/Print
Remove the Transmission Control Relay.
Connect a jumper wire between the (A104) Fused B(+) circuit and (T16) Transmission Control Relay Output circuit.
Ignition on, engine not running.
Measure the voltage of the (T50) L/R Pressure Switch Sense circuit.
Is the voltage above 0.5 volts?
Yes
- Repair the (T50) L/R Pressure Switch Sense circuit for a short to voltage.
- Perform 42RLE TRANSMISSION VERIFICATION TEST - VER 1. See: A L L Diagnostic Trouble Codes ( DTC ) > Verification Tests
No
- Using the schematics as a guide, check the Powertrain Control Module (PCM) terminals for corrosion, damage, or terminal push out. Pay particular attention to all power and ground circuits. If no problems are found, replace the PCM. With the scan tool, perform QUICK LEARN
- Perform 42RLE TRANSMISSION VERIFICATION TEST - VER 1. See: A L L Diagnostic Trouble Codes ( DTC ) > Verification Tests
8. INTERMITTENT WIRING AND CONNECTORS
The conditions necessary to set the DTC are not present at this time.
Using the schematics as a guide, inspect the wiring and connectors specific to this circuit.
Wiggle the wires while checking for shorted and open circuits.
With the scan tool, check the DTC EVENT DATA to help identify the conditions in which the DTC was set.
Were there any problems found?
Yes
- Repair as necessary.
- Perform 42RLE TRANSMISSION VERIFICATION TEST - VER 1. See: A L L Diagnostic Trouble Codes ( DTC ) > Verification Tests
No
- Test Complete.
Images (Click to enlarge)
Mar 21, 2021 at 4:47 PM