Tempreature gauge

2006 FORD FOCUS
98,563 MILES • 0.6L • 4 CYL • MANUAL
Avatar
SIMON BARKER
  • MEMBER
  • 2 POSTS
Hi,
I have Ford Focus petrol 2006 1.6 Ghia, when my car is stationary for ten to fifteen minutes the gauge will increase to optimum temperature (about 88° and stays there), but when I travel around in the car the temperature drops slowly but surely back down to flat as though it is reading cold. Any ideas would be great? Thank you
Jan 5, 2019 at 5:56 AM
Advertisement
Avatar
ASEMASTER6371
  • CERTIFIED EXPERT
  • 52,796 POSTS
Good morning,

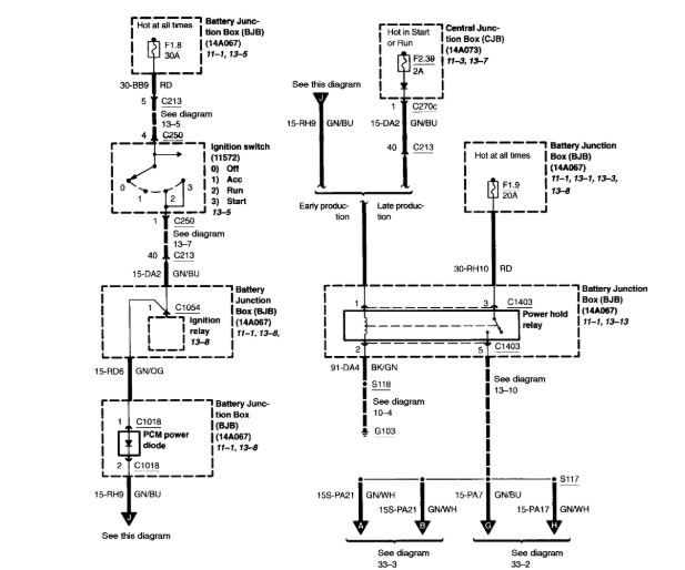
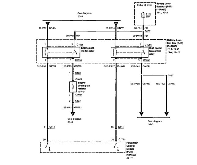
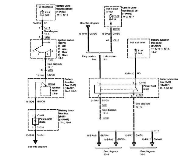
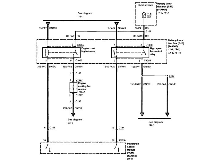
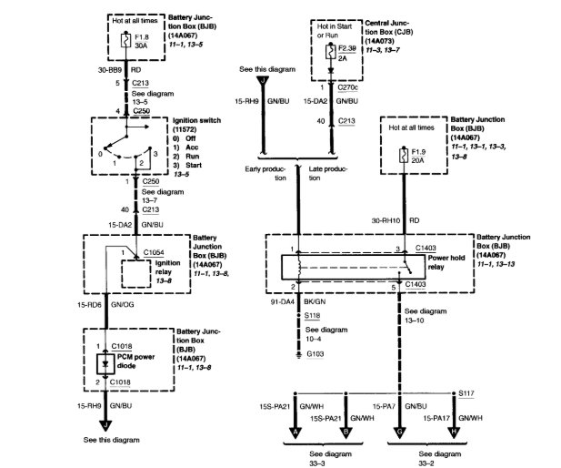
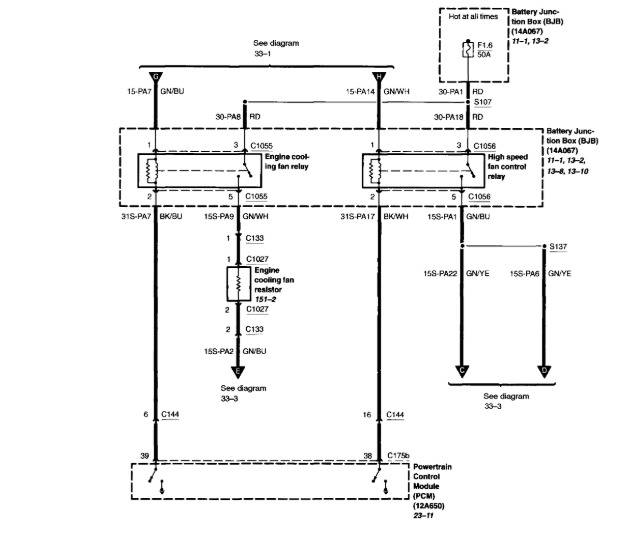
From your description, it sounds the cooling fan is not working. it needs to run at idle when there is no air coming through the radiator assembly.

Check the connection at the fan motor for power when it gets hot. if you have power then the motor is bad. it is a common failure for this issue.

https://www.2carpros.com/articles/how-an-electric-cooling-fan-works

Roy
Jan 5, 2019 at 6:18 AM
Avatar
SIMON BARKER
  • MEMBER
  • 2 POSTS
Thanks for reply Roy, I really appreciate your help and thanks for the diagrams too.
Just to add a bit though. I need the car to be hotter when driving round as it is giving a cold reading even after a thirty mile journey (I thought I might of needed to find the sensor that's giving this reading), so in regards to your answer if the motor is bad do you think that the fan doesn't work at all?

Also, I'm running at 21 MPG.
Thanks again for your help.
Jan 5, 2019 at 6:55 AM
Advertisement
Avatar
ASEMASTER6371
  • CERTIFIED EXPERT
  • 52,796 POSTS
To make it run hotter, I would change the thermostat. make sure it is a 195 degree thermostat.

I doubt it is the sensor. it is just reading the temperature, not controlling it.

It could be the motor but needs to be confirmed.

Roy
Jan 5, 2019 at 7:00 AM