☰
Login
Join
×
Home
Answered Questions
Repair Topics
Repair & Service Guides
Popular Questions
Warning Lights
Trouble Codes
How It Works
Testing / Diagnostics
Symptoms
Videos
Login
Become a Member
Home
Mercury
Sable
Engine
Starter
Wiring
Starter wiring diagram needed
2004 MERCURY SABLE
180,000 MILES • 3.0L • 6 CYL • 2WD • AUTOMATIC
JR4EVER3
MEMBER
1 POST
FOLLOW
I replaced the starter on my car and didn't pay attention to how the wires get hooked back up. Need help ASAP.
Dec 13, 2021 at 11:01 AM
Advertisement
SQM
CERTIFIED EXPERT
6,383 POSTS
Hello,
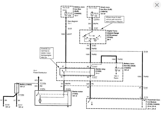
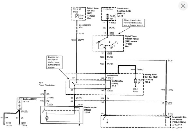
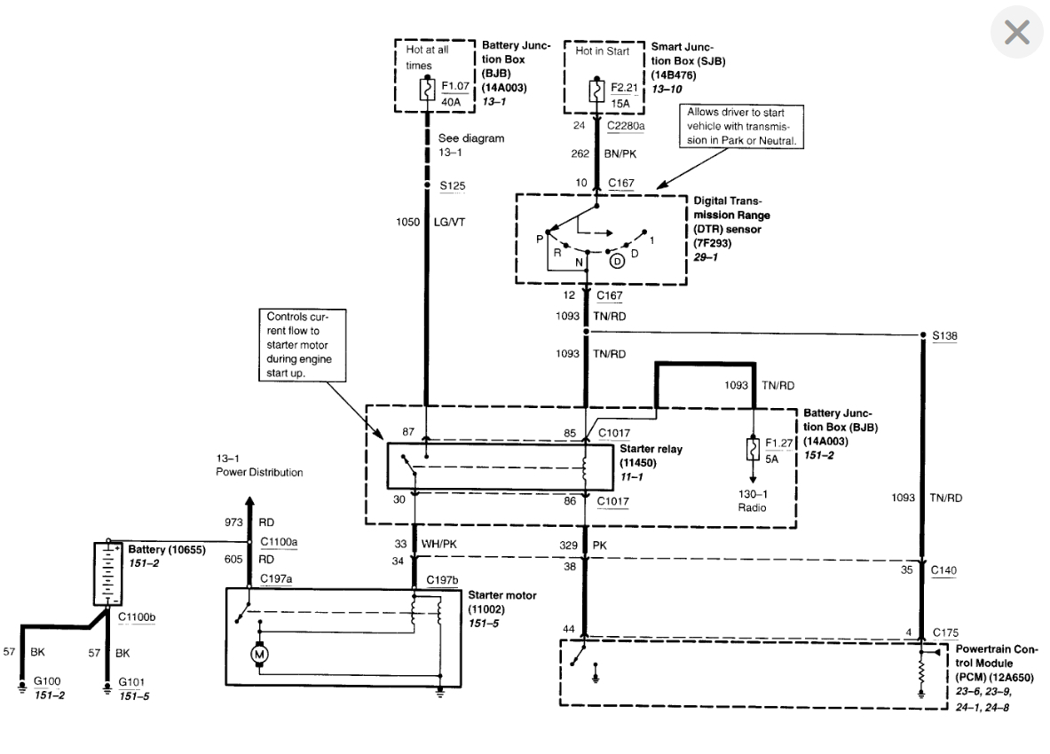
I have attached the starter replacement diagram below.
Also included the wiring schematics.
Let me know if you have any questions.
Thank you.
https://www.2carpros.com/articles/how-to-replace-a-starter-motor
Images (Click to enlarge)
Dec 13, 2021 at 11:23 AM