Really could use the wire diagram

1995 MITSUBISHI ECLIPSE
120 MILES • 2.0L • 4 CYL • 2WD • MANUAL
Avatar
CARMENTAYLOR
  • MEMBER
  • 8 POSTS
I could really use a wire diagram for my car listed above it is the GS model with a five speed transmission. For the cam and crank sensors. And potentially the ignition coil. Please help me ASAP.
May 7, 2018 at 6:28 PM
Advertisement
Avatar
JACOBANDNICKOLAS
  • CERTIFIED EXPERT
  • 110,175 POSTS
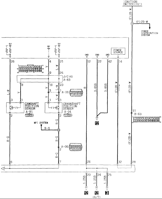
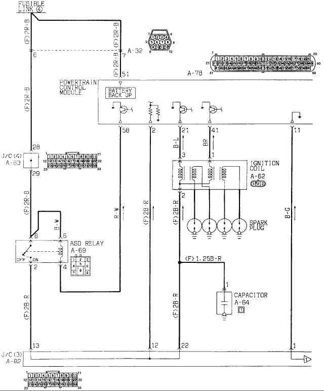
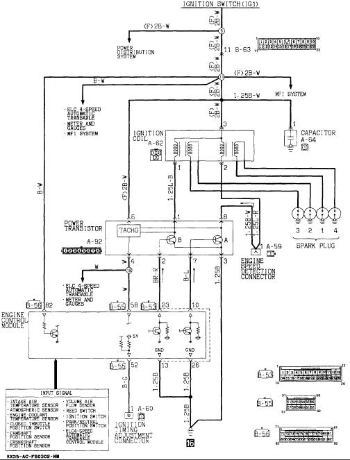
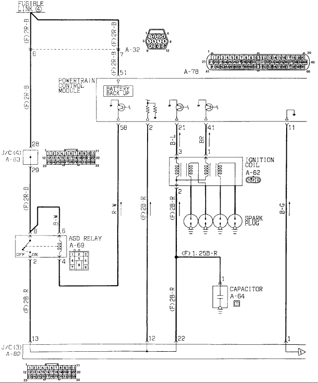
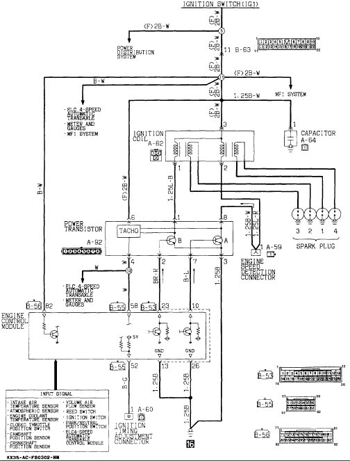
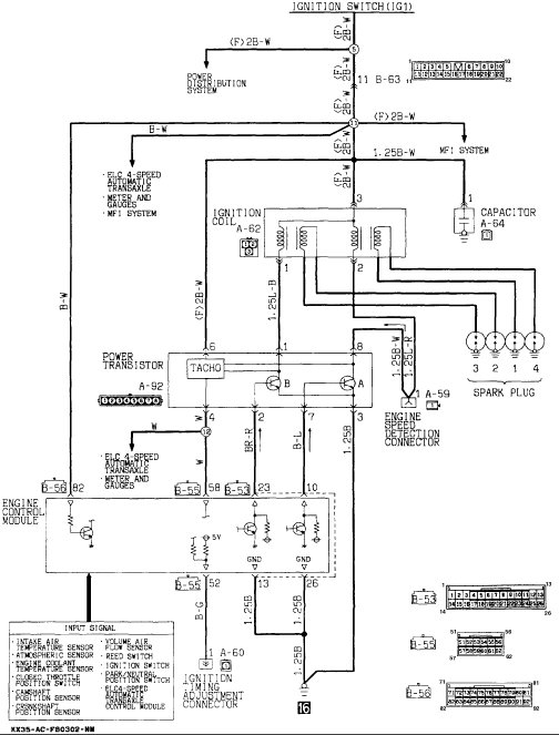
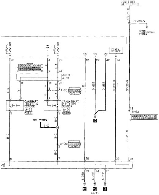
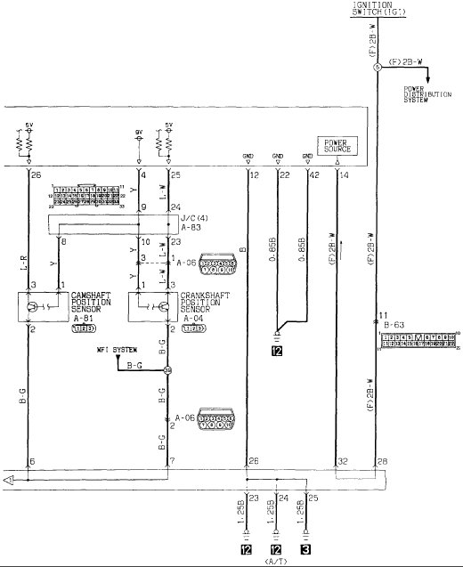
Hi and thanks for using 2CarPros.com. Per your request, I have attached three wiring schematics specific to your vehicle. They contain the three different components you mentioned.

Additionally, here is a link that will take you to a page which describes symptoms of a bad crankshaft sensor:

https://www.2carpros.com/articles/symptoms-of-a-bad-crankshaft-sensor

Here are general directions on replacement:
https://www.2carpros.com/articles/crankshaft-angle-sensor-replacement

Here are general directions for camshaft sensor replacement:

https://www.2carpros.com/articles/camshaft-angle-sensor-replacement


I hope this helps.

Cheers,
Joe
May 7, 2018 at 8:23 PM
Avatar
CARMENTAYLOR
  • MEMBER
  • 8 POSTS
Pretty sure I have it correct. Correct me if I am wrong. Orange goes to yellow. Green and black is the ground which is the middle pin. And finally the signal wire is blue and black.
May 7, 2018 at 10:15 PM
Advertisement
Avatar
CARMENTAYLOR
  • MEMBER
  • 8 POSTS
And I have it the same way on the cam shaft as well. Both after market trash pigtail connectors.
May 7, 2018 at 10:16 PM
Avatar
CARMENTAYLOR
  • MEMBER
  • 8 POSTS
Only difference I have going on here is to the coil pack. I have the black and red wires going to the orange.
May 7, 2018 at 10:19 PM
Avatar
CARMENTAYLOR
  • MEMBER
  • 8 POSTS
Only difference I have going on here is to the coil pack. I have the black and red wires going to the orange. I had since swapped them off the middle ground and put it on the orange. That was before.
May 7, 2018 at 10:20 PM
Avatar
CARMENTAYLOR
  • MEMBER
  • 8 POSTS
Or can I literally say heck all and grab a random yellow and splice it into the orange Or? I am kind of confused here. I need some assistance.
May 7, 2018 at 10:21 PM
Avatar
CARMENTAYLOR
  • MEMBER
  • 8 POSTS
Thank you. I could use a fuse layout for the interior under my dash as well. I am hearing a relay clicking. And my PCM is not sending a signal. I am pretty knowledgeable. But I have had this up for a few years now she comes back to life.

I am looking to get color coded wires to figure mine out. The signal wire colors for cam and crank the power and ground. And then I need a diagram of the fuse box inside the car under my dash on driver side. Then I will be good from there.
May 8, 2018 at 11:00 AM
Avatar
STRAILER
  • CERTIFIED EXPERT
  • 53,854 POSTS
Here are more engine wiring diagrams for both the turbo and non turbo engines and the fuse panel diagrams.

Check out the diagrams (below). Please let us know what happens.

Cheers, Ken
May 8, 2018 at 11:05 AM
Avatar
CARMENTAYLOR
  • MEMBER
  • 8 POSTS
Your a life saver! That is what I was looking for. This is awesome. This will bring my car back to life. I will let you know how it all goes. I am waiting for my new starter and solenoid. And I have a push button coming for push button start to by pass the ignition switch and the ignition relay.
May 8, 2018 at 1:10 PM
Avatar
STRAILER
  • CERTIFIED EXPERT
  • 53,854 POSTS
Good to hear, let us know how it goes. :)
May 9, 2018 at 1:13 PM
Avatar
CARMENTAYLOR
  • MEMBER
  • 8 POSTS
Can I get a wiring diagram for my coil pack to see what wires are which? I think I have it just about done.
May 12, 2018 at 4:35 AM
Avatar
STRAILER
  • CERTIFIED EXPERT
  • 53,854 POSTS
It is the third wiring diagram over in the above post.
May 13, 2018 at 10:52 AM