Radio not working

1987 CHEVROLET CELEBRITY
200,275 MILES • 2.8L • V6 • 2WD • AUTOMATIC
Avatar
ETERNALARIANNE
  • MEMBER
  • 203 POSTS
This car sat for a few years and as far as I know, the factory radio worked when it was parked. But now when you press the power button, nothing happens. Nothing displays on the radio screen, not even the clock. But I know the radio is getting power because if I turn on the lights, the radio lights up (again nothing on the screen though). Also I hear a faint bass “pop” when I turn the radio on (to me it sounds like the speakers are being powered on).

I’ve checked the fuse it looks good, is there anything else it could be other than the radio not working?
Jan 25, 2021 at 7:09 AM
Advertisement
Avatar
CARADIODOC
  • CERTIFIED EXPERT
  • 34,306 POSTS
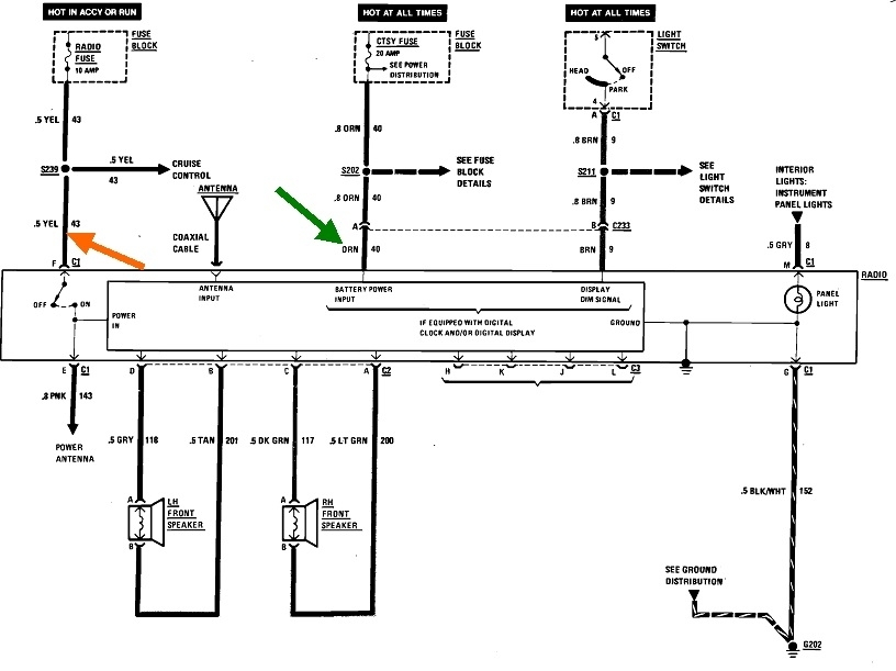
The dash lights aren't a valid clue. Those are part of the instrument panel lighting circuit and work independently of the radio itself. The best suspect is the radio's memory fuse. That is always tied in with some other circuit that is always live such as the horn, cigarette lighter on some models, but most commonly the interior lights.

The fuse box is listed as, "Behind RH Side Of Instrument Panel, In Or Near Glove Box.".

Check the "Courtesy Lights: fuse with the red arrow pointing to it in this drawing.

https://www.2carpros.com/articles/how-to-check-a-car-fuse
Jan 25, 2021 at 9:43 PM
Avatar
ETERNALARIANNE
  • MEMBER
  • 203 POSTS
The CTSY fuse looks good, not burned or broken. The horn and other interior lights work as well.
Jan 26, 2021 at 9:28 AM
Advertisement
Avatar
CARADIODOC
  • CERTIFIED EXPERT
  • 34,306 POSTS
Next would be to remove the radio, then measure the two power supply voltages. Best is to leave the connectors plugged in, and back-probe through the back of the plugs next to the wires. You should find 12 volts on the green wire all the time. 12 volts should be on the yellow wire only when the ignition switch is turned on.

Here's GM's radio removal instructions:

1985---88
1. Disconnect battery ground cable.
2. Loosen instrument panel insulator panel attaching screws, then remove steering column trim cover.
3. Remove ash tray, ash tray assembly and fuse block, separate fuse block and ash tray and push forward to gain access to cigar lighter and rear defogger switch electrical connectors.
4. Disconnect electrical connectors, then remove cigar lighter and glove box.
5. Remove instrument panel center trim panel retaining nuts, then pull trim panel outward to gain access to radio attaching screws.
6. Remove attaching screws, disconnect electrical and antenna connections, then remove radio from vehicle.
7. Reverse procedure to install.

I can't find any drawings to go with those instructions.

If both 12 volts are there, the problem is inside the radio. The ground should be okay since the back-lighting is working with the dash lights, but to be sure, check for 12 volts on the metal case of the radio. For all of these voltage checks, the meter's ground probe should be connected to the car's body or an unpainted metal support bracket that's bolted to the body. Don't use the radio's case for the ground.
Jan 26, 2021 at 4:06 PM
Avatar
ETERNALARIANNE
  • MEMBER
  • 203 POSTS
I had planned on replacing the radio eventually with a more modern one, now sounds like as good a time as any since I have to take it out anyways. I’ll let you know how it goes.
Jan 26, 2021 at 4:15 PM
Avatar
CARADIODOC
  • CERTIFIED EXPERT
  • 34,306 POSTS
Double-check those voltages any way just to be sure they're there. If one is missing, the new radio will also not work.
Jan 26, 2021 at 4:19 PM
Avatar
ETERNALARIANNE
  • MEMBER
  • 203 POSTS
I guess it was the old radio because the new one works fine! Thanks
Jan 29, 2021 at 2:37 PM
Avatar
CARADIODOC
  • CERTIFIED EXPERT
  • 34,306 POSTS
Dandy. Happy to hear you don't have to sing to yourself. I know my friends and neighbors are happy when I don't sing.
Jan 30, 2021 at 4:36 PM
Avatar
ETERNALARIANNE
  • MEMBER
  • 203 POSTS
Driving without music is the devil, my mind wanders all over the place, lol.
Jan 30, 2021 at 4:37 PM