Radio and A/C unit not working?

2005 MERCEDES BENZ SL500
87,000 MILES • V8 • 2WD • AUTOMATIC
Avatar
BHAMDOC1973
  • MEMBER
  • 2,008 POSTS
Changed both batteries and got it running good, but the A/C unit does not power on at all, blower stay on after car is off. You can hear it come on for a second and go off, and keeps repeating the cycle, that's why the batteries drained, so I unplugged the blower for now. Found a 7.5-amp radio fuse behind passenger side that was bad, changed it and the screen now comes on and then says unavailable and shits off, keeps doing that. I'm not sure if the A/C unit issue is related, where is the fuse for the A/C unit as I don't have the diagram or chart for it. maybe a fuse. I also get the red light for battery on dash when I start the car even though charging is over 14 and both batteries are new. I load tested trunk battery and its good, front is new from Benz, when I clear the code for the light it goes away but next time, I start the car it shows same light.
May 17, 2024 at 10:47 AM
Advertisement
Avatar
JACOBANDNICKOLAS
  • CERTIFIED EXPERT
  • 110,175 POSTS
Hi,

First, I noticed it has been two days and no one has contacted you. I apologize for that.

The red light that stays on after you start the vehicle, is it the alternator light? I'm assuming it is based on the idea that you still get over 14v at the batteries.

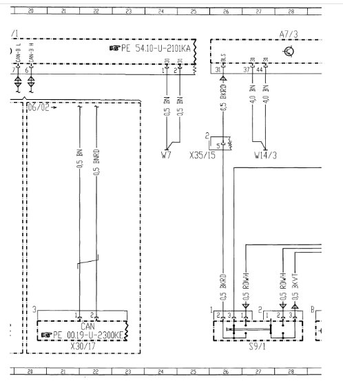
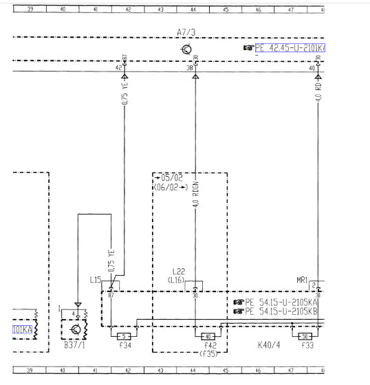
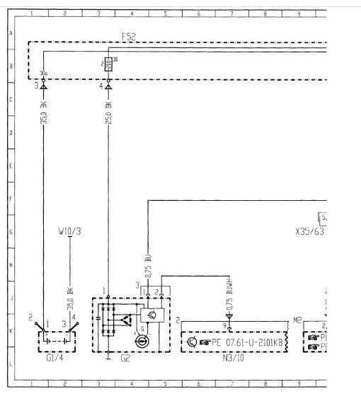
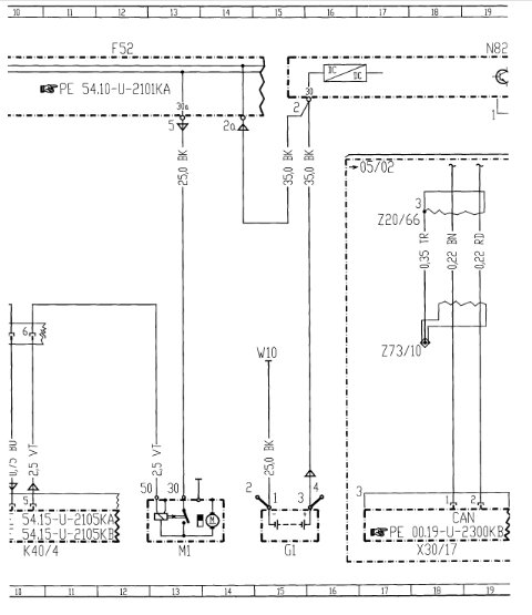
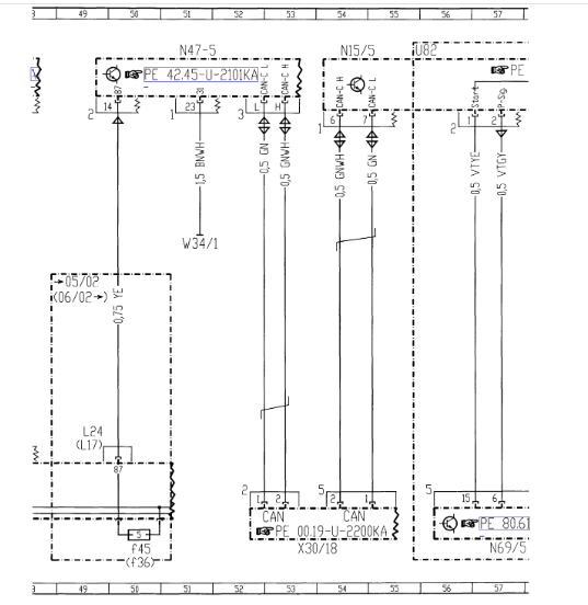
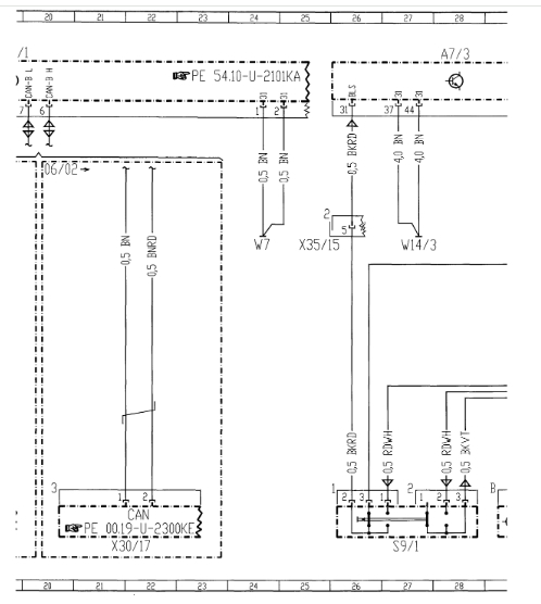
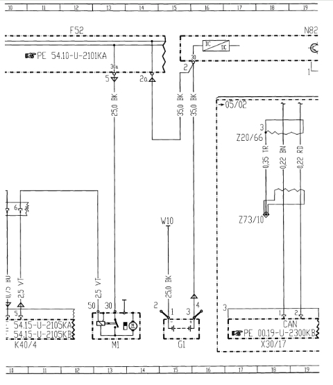
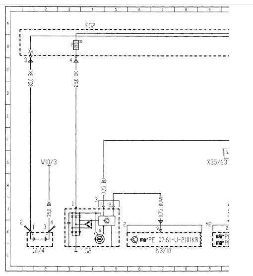
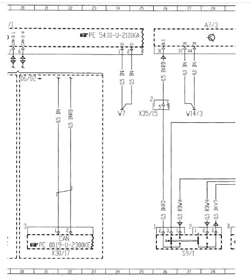
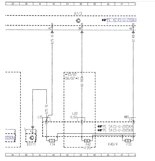
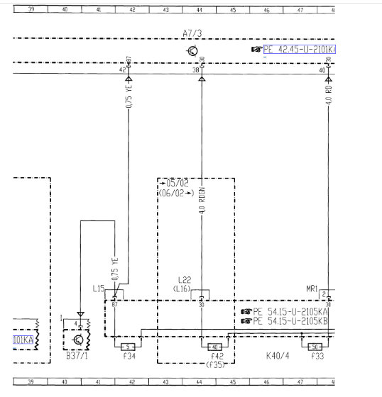
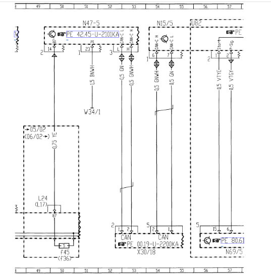
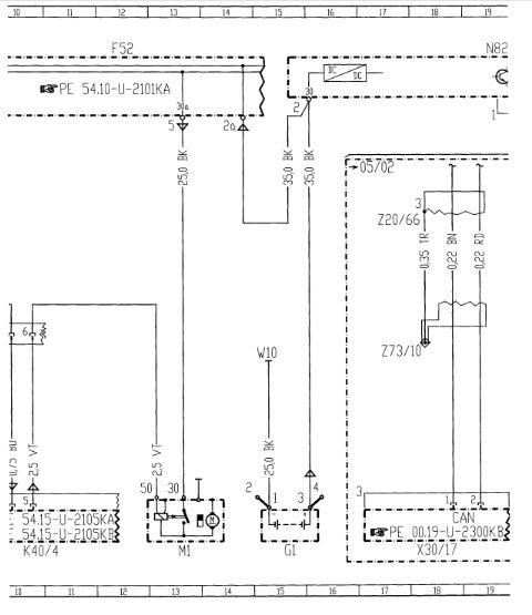
Next, I have wiring schematics from Mercedes, but they are very limited and difficult to follow. I attached what I have for the starting/charging systems below. Take a look through them and let me know if they help. Also, let me know if the radio and A/C stopped at the same time.

Take care,

Joe

See pics below.
May 19, 2024 at 7:22 PM