Hello,
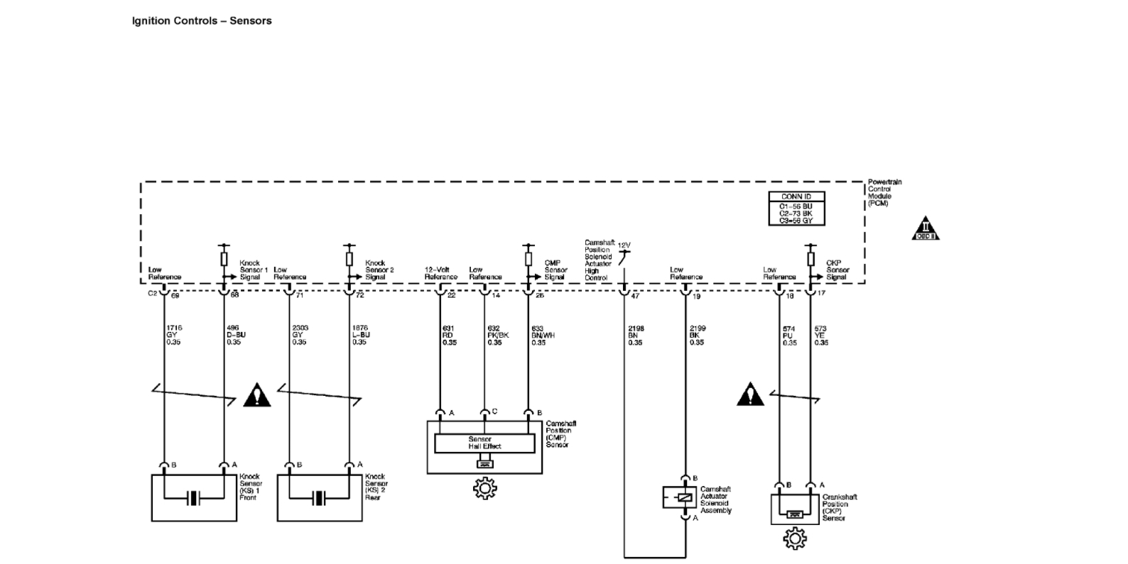
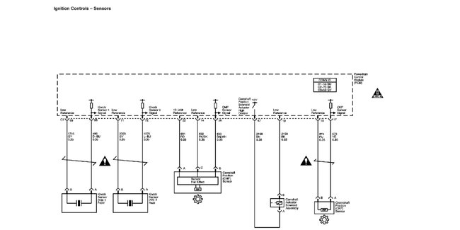
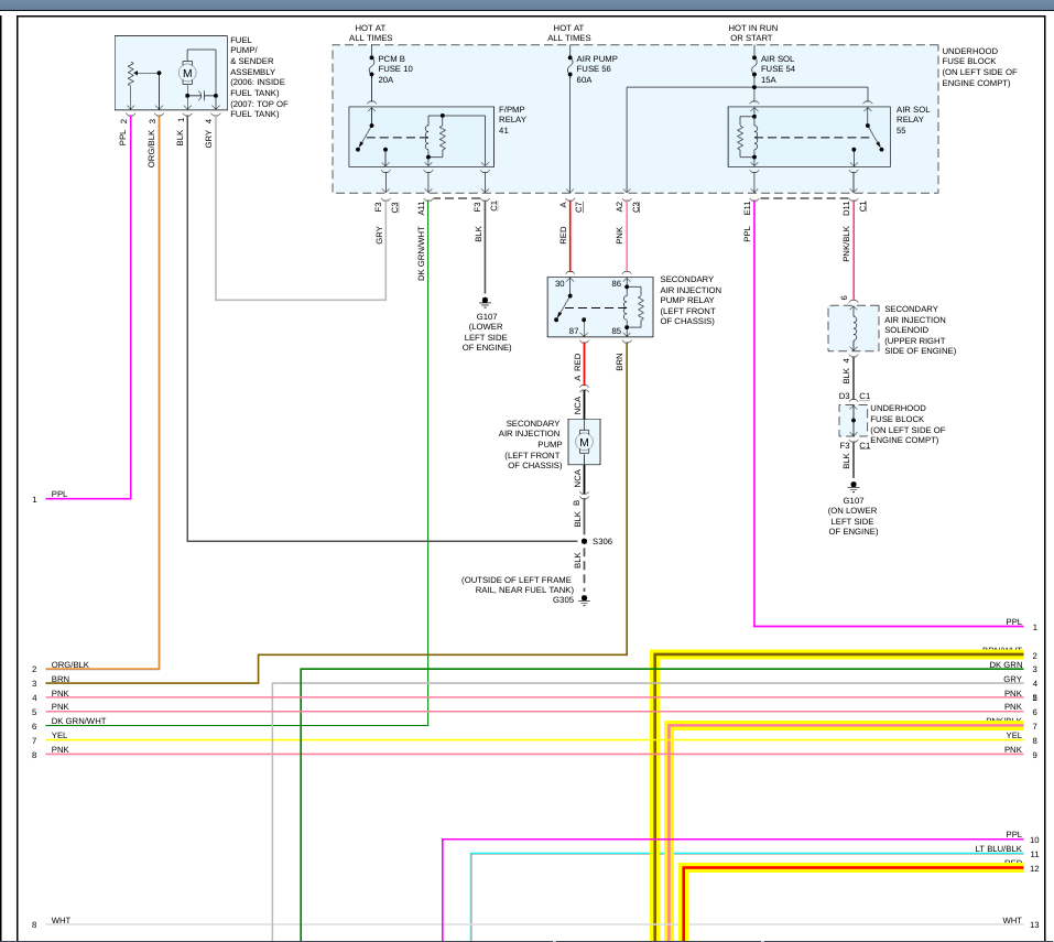
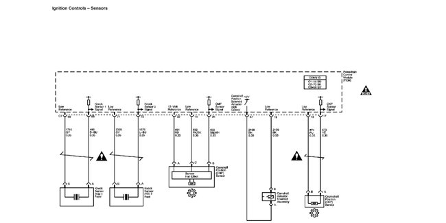
This could be a problem with the wires going to the Camshaft Position Sensor[CMP]. The CMP could be working perfectly, but if the signal is not reaching the Power-train Control Module[PCM], or "computer", due to a problem with the wires, then it is just like the sensor being bad. In the diagrams down below I have included the power-train management wiring diagrams for your vehicle with the wires to check high lighted for you. I have also included guides on how to find unwanted resistance in an automotive circuit with voltage drop, how to find opens in an automotive electrical circuit, and how to test for a 5 volt reference in an automotive circuit, and a description of how the CMP circuit works for your vehicle. Please go through these guides and report back with what you find. You will need to use a Digital Multi-meter [DMM] to go through these guides, so here is a link below explaining how to use one below, if needed:
https://www.2carpros.com/articles/how-to-use-a-voltmeter
Thanks,
Alex
2CarPros
Images (Click to enlarge)
Jan 4, 2020 at 6:20 PM