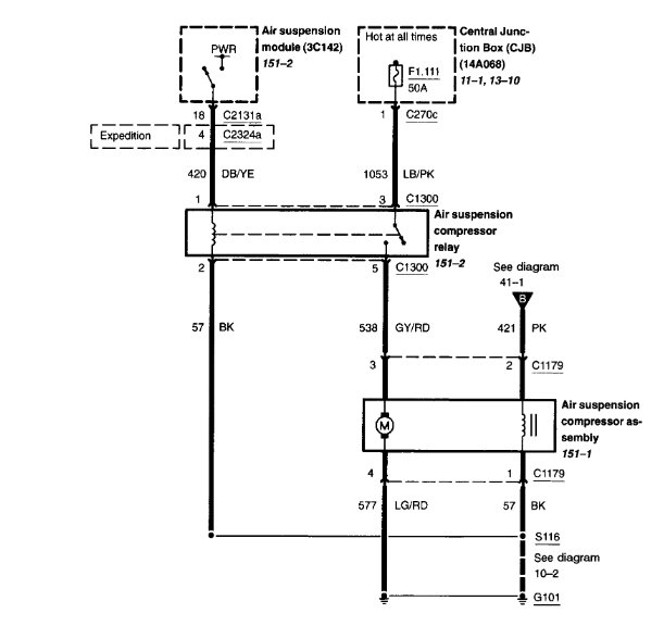
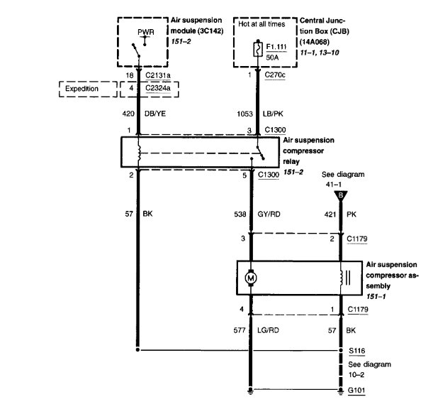
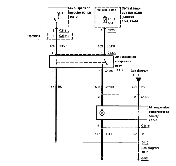
2006 Navigator Ultimate, I changed front airbag struts factory complete. New compressor, will not start. Where to check for reasons why? Does anyone know where the compressor relay on this SUV? Possible other help. Also, it seems that Expeditions and Lincolns were swapped out with many parts that really different from each other.
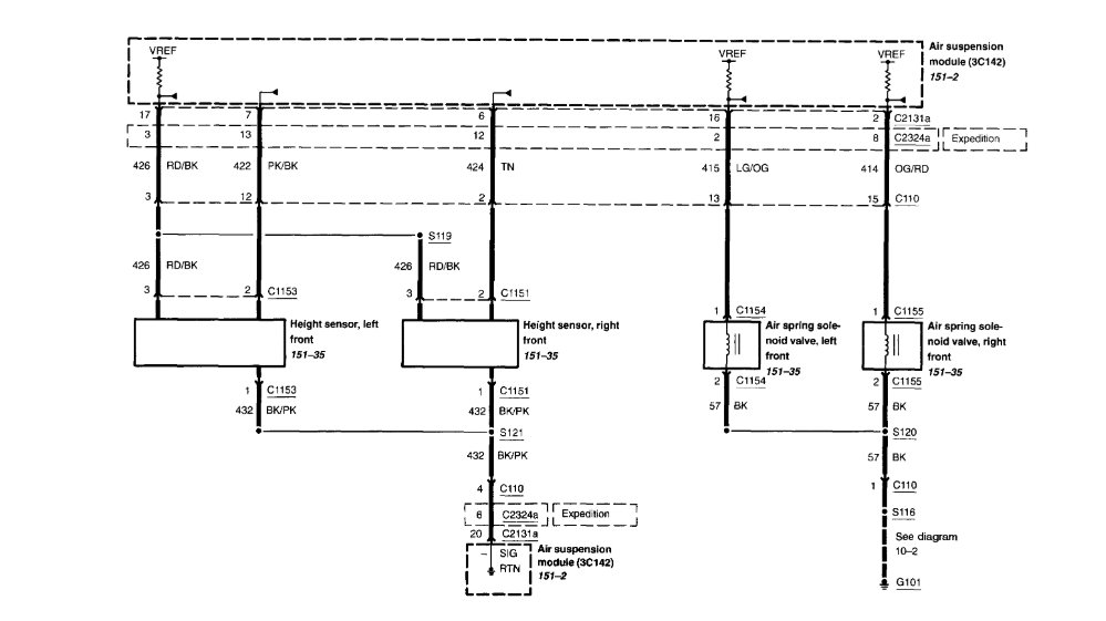
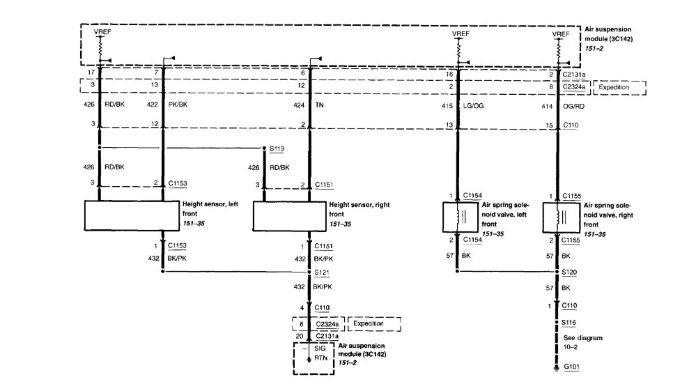
I have a dropped front and back is fine.
Thank you very much.
I have a dropped front and back is fine.
Thank you very much.
Dec 6, 2018 at 7:49 PM









