No fuel pulse from the injector

1988 CHEVROLET CELEBRITY
55,000 MILES • 2.5L • 4 CYL • 2WD • AUTOMATIC
Avatar
BIGD94
  • MEMBER
  • 13 POSTS
The car listed above has a 2.5 4tec. It is not getting any pulse from the injector. Also, I think the timing is off as well, but I need to get fuel problem fixed so I can fire it up and get timed. Car will run when you throw ether into there just backfire through the intake not sure if I'm having a grounding issue, I'm not getting any codes plus not sure how to time it because it doesn't have a distributor.

New parts:
ECM
Ignition control module
Crank position sensor
Coolant Temperature sensor
Air intake sensor
Map sensor
Plugs and wires
Idle control valve
Throttle position sensor
Fuel injector
Fuel pump and filter
Jan 21, 2022 at 9:40 PM
Advertisement
Avatar
KASEKENNY
  • CERTIFIED EXPERT
  • 18,907 POSTS
Looks like you have replaced the major components, so we need to start with finding out what we have because we clearly get the engine to run with outside fuel so let's start with finding out what we have at the injector power/ground wise and go from there.

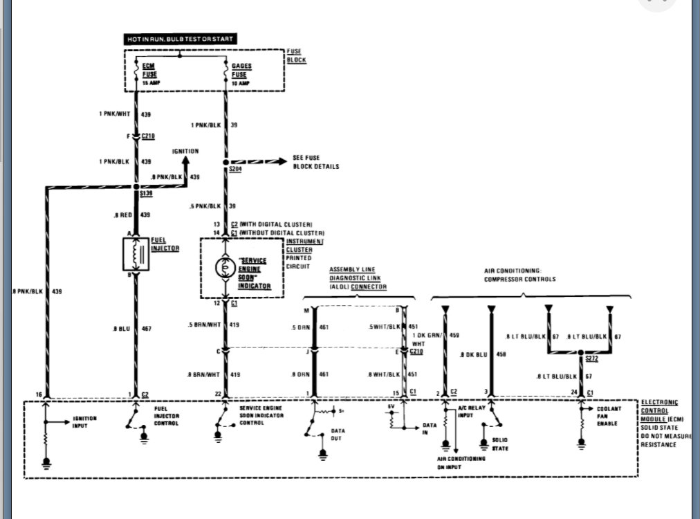
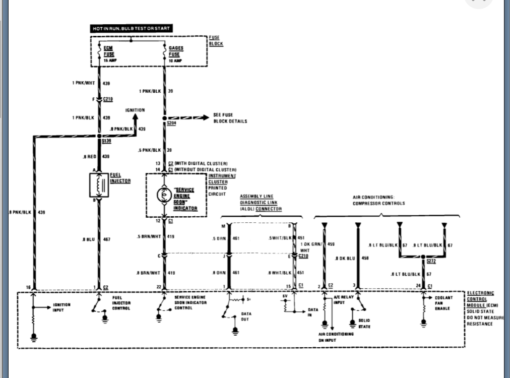
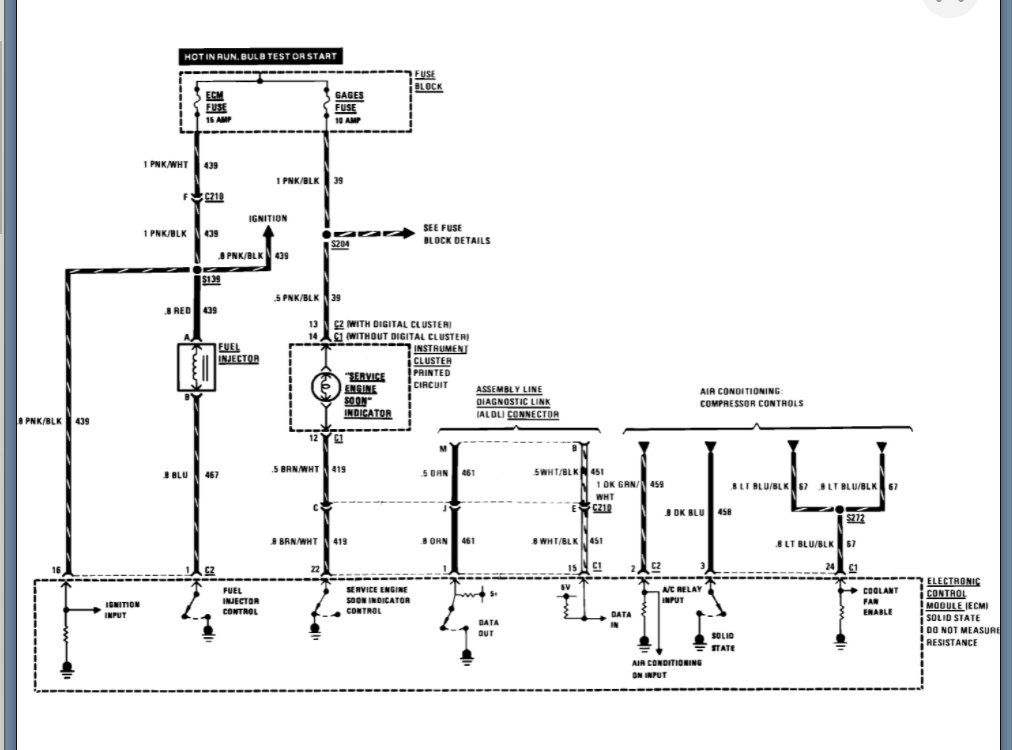
I am attaching the wiring diagram but the way this works is power is supplied at all times to the injector and the ground is turned on and off by the electronic control module.

So, let's go to the injector and check for power on pin A. Put your meter lead on pin A and the ground on a known good ground, preferably the battery post. Crank the engine and see if the meter reads 12 volts.

https://www.2carpros.com/articles/how-to-check-wiring

Then we need to check the ground side. You do this by putting your red meter lead on battery positive post and the black lead on pin B. Then crank the engine. The meter should read 12 volts.

Let me know what you are getting on both of these measurements, and we will know where to go next.

I am thinking we have a wiring issue, but we need to see what this reads first and go from there.

Thanks
Jan 22, 2022 at 2:08 PM
Avatar
BIGD94
  • MEMBER
  • 13 POSTS
Okay, sounds good. whenever I get out there after work I'll see.
Jan 26, 2022 at 8:03 AM
Advertisement
Avatar
KASEKENNY
  • CERTIFIED EXPERT
  • 18,907 POSTS
Sounds great. Just let us know what you find, and we can go from there.

Thanks for the update.
Jan 26, 2022 at 11:16 AM