Hi,
First, see if it starts if you put it in neutral. If there is no change, I need you to check a 30-amp starter fuse located in the under-hood fuse box (driver's side).
When you check the fuse, confirm there is power both to and from it. It should have power at all times. Here is a link you may find helpful.
https://www.2carpros.com/articles/how-to-check-a-car-fuse
Next, power from that fuse goes to the starter relay first and when the relay is actuated, it goes to the smaller wire on the starter motor. That wire is blue in color.
If the fuse is good, we need to check if that blue wire is getting power. Note, it will not have power until the key is in the start position.
Have a helper turn the key to the start position while you check if power then is present on that wire. If it is, the starter is likely faulty. If there isn't, let me know and we will need to work backward to the relay.
Let me know what you find.
Joe
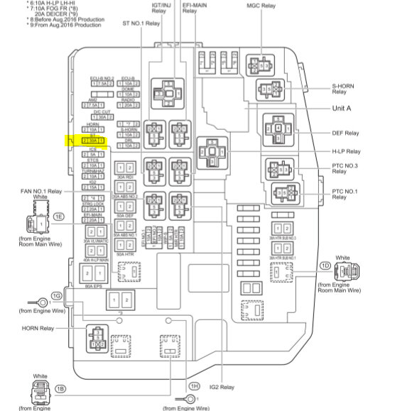
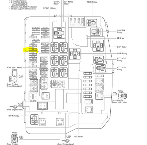
See pic below. Pics 1 and 2 are from the starter circuit wiring schematic. I highlighted what to check. Pic 3 shows the fuse location that needs checked.
Images (Click to enlarge)
Sep 8, 2024 at 5:14 PM