Engine will not crank?

2004 DODGE DURANGO
170,000 MILES • 4.7L • V8 • 4WD • AUTOMATIC
Avatar
PVSENSER
  • MEMBER
  • 4 POSTS
I started almost 2 months ago and got nowhere, got off work, made a couple stops before going home, came out of the market half a mile away from my house and the engine wouldn't crank at all. I replaced the alternator and new battery less than a year ago, in the last month have put new starter and ignition switch in, tested fuses and relays and am not finding anything wrong. Help me to get mobile again please!!!
Sep 26, 2022 at 11:08 AM
Advertisement
Avatar
STRAILER
  • CERTIFIED EXPERT
  • 53,855 POSTS
It sounds like the rebuilt starter has gone bad. To be sure let's use a test light and while a helper is holding the ignition key in the start position see if there is power at the starter trigger wire.

This guide can help:

https://www.2carpros.com/articles/starter-not-working-repair

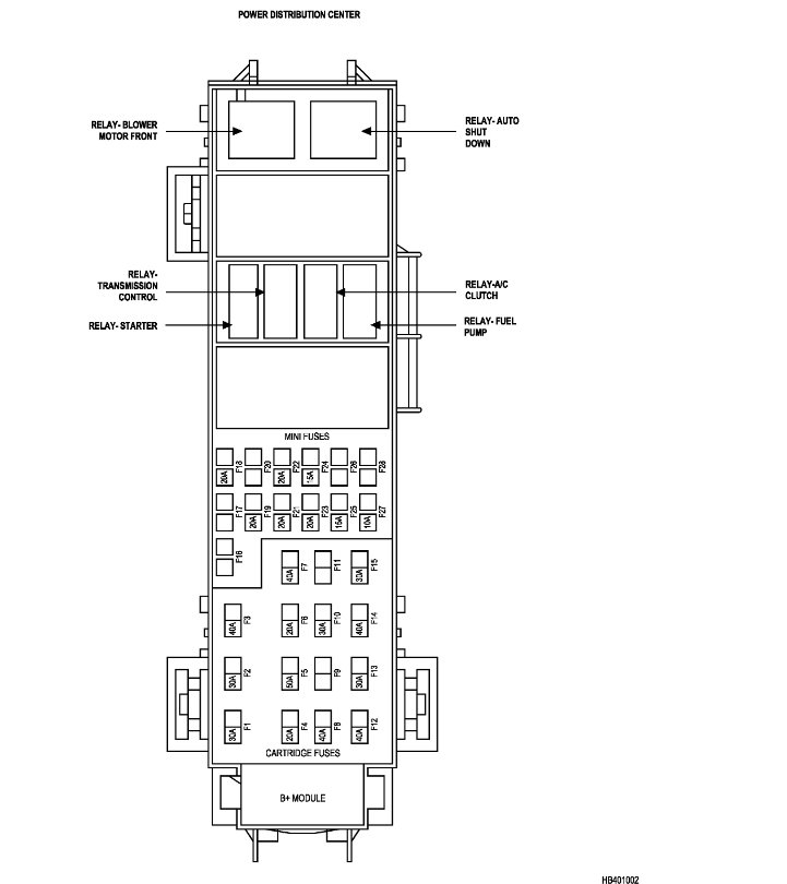
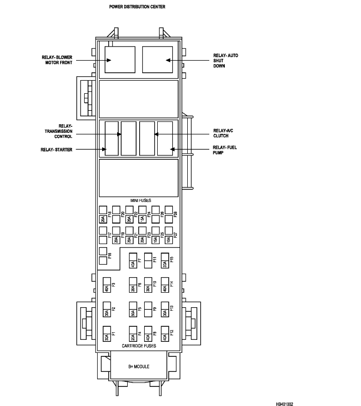
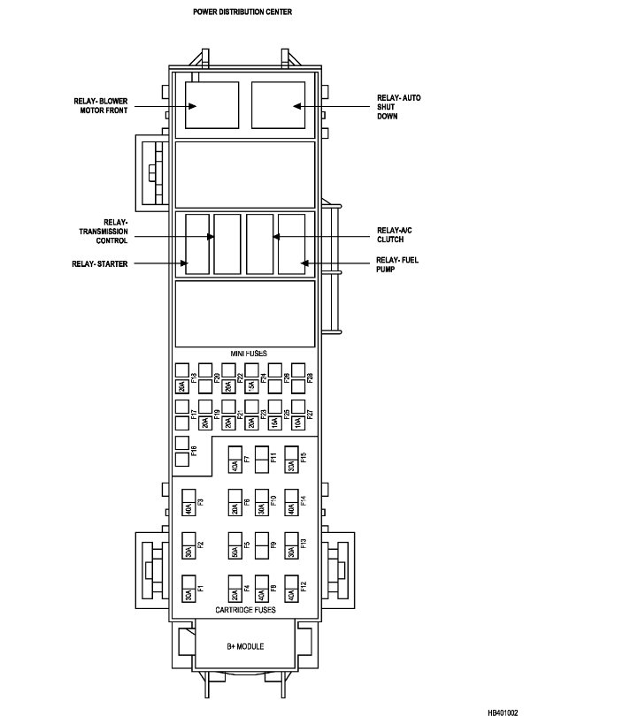
Here is how to change the starter out in case you need it and I have included the starter wiring diagrams so you can see how the system works. Also check fuse #32 in the left kick panel fuse block. Check out the images (below). Please let us know what you find. We are interested to see what it is.

Sep 26, 2022 at 4:13 PM
Avatar
PVSENSER
  • MEMBER
  • 4 POSTS
Starter bench tested and is good.
Sep 26, 2022 at 10:12 PM
Advertisement
Avatar
STRAILER
  • CERTIFIED EXPERT
  • 53,855 POSTS
Okay, let's check the starter relay, here is the location and a guide on how to test it, or you can just swap it out, also try to crank the engine when the transmission is in neutral to see if that changes anything.

https://www.2carpros.com/articles/how-to-check-an-electrical-relay-and-wiring-control-circuit

Check out the images (below). Please let us know what happens.
Sep 29, 2022 at 12:33 PM