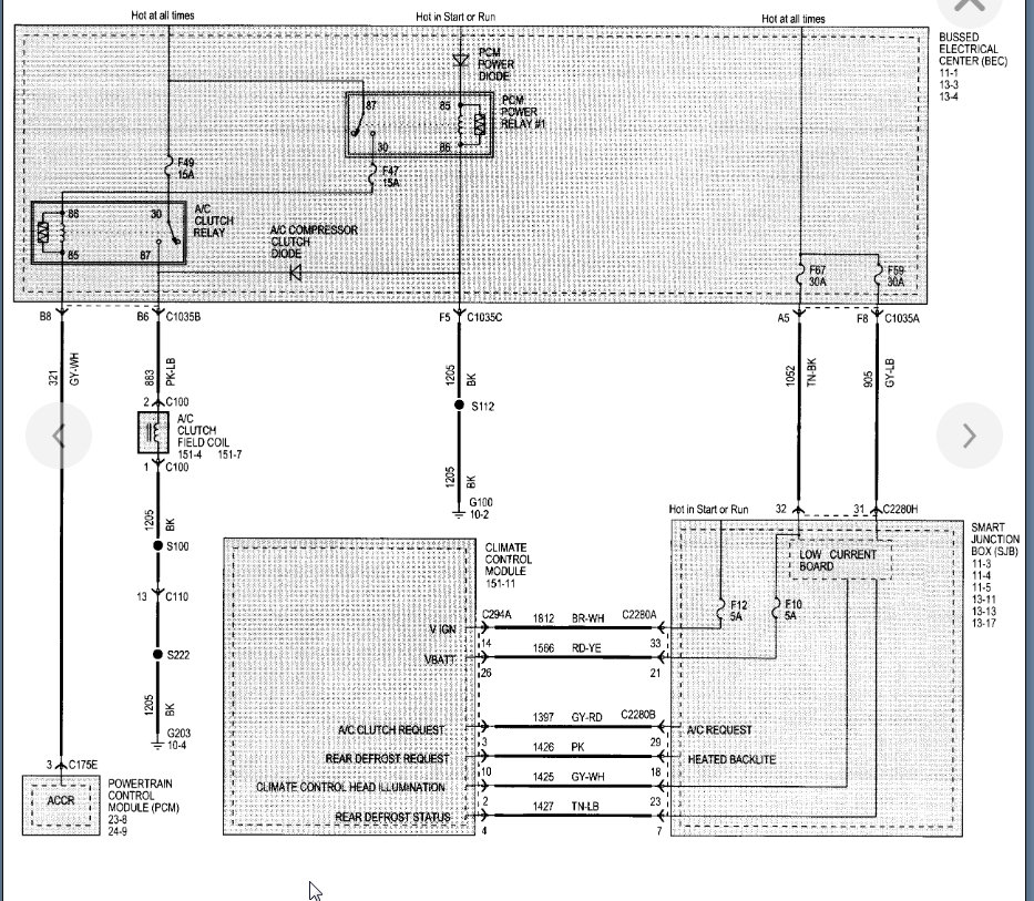
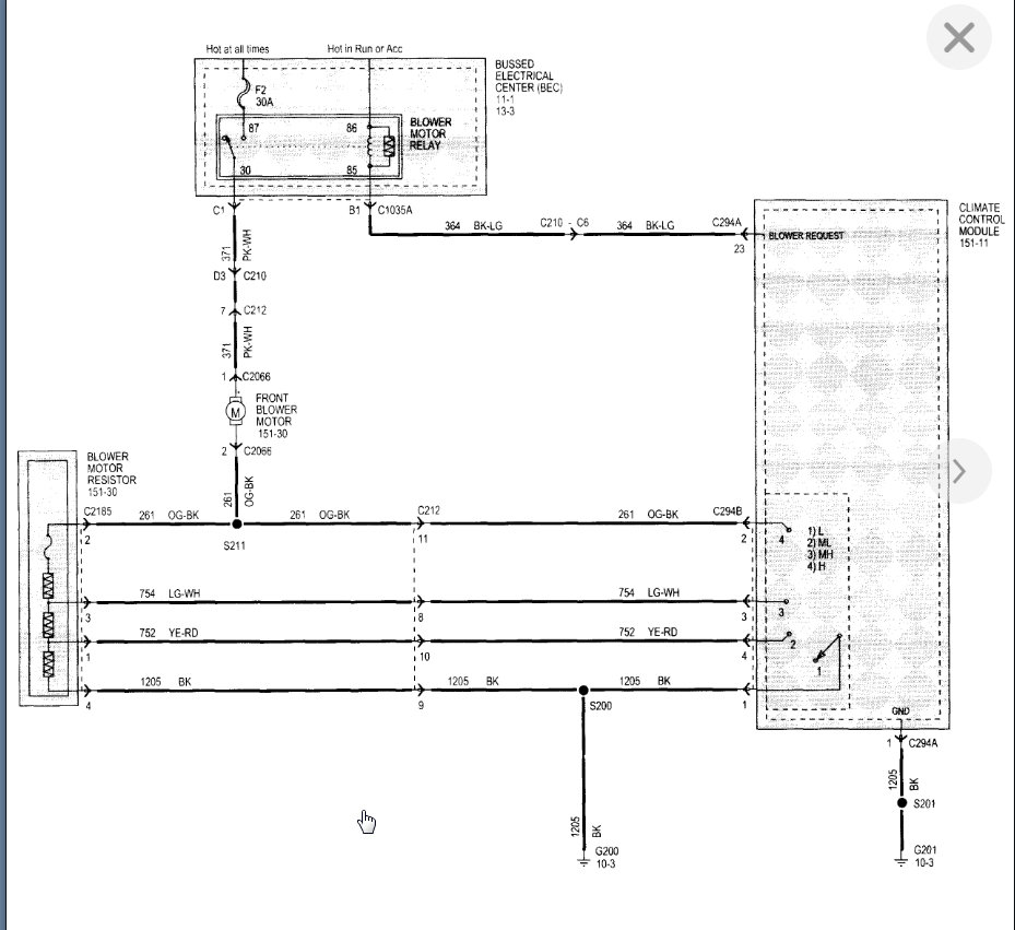
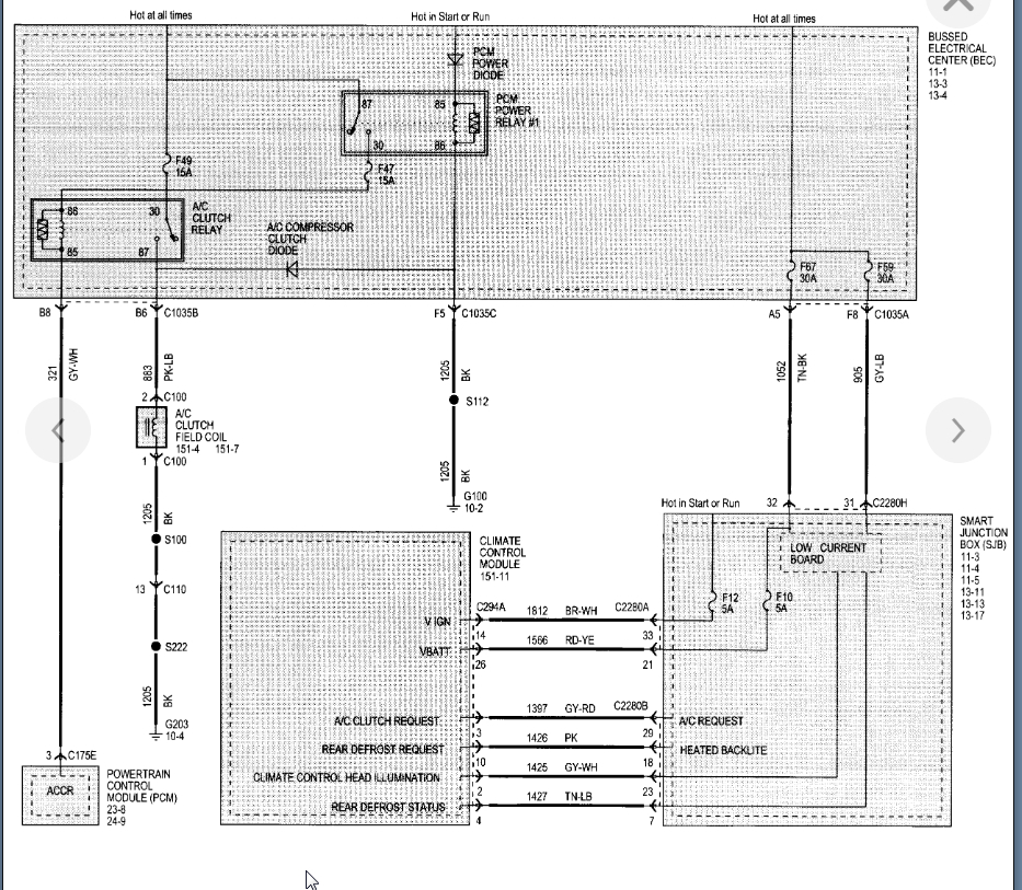
On my lower panel A/C switch, rear window switch, middle air direction switch, don’t light up. none of them work. no fan blower pulled plug off no power to fan control. checked all fuses all good have no A/C. no fan for heat etc. I’m lost.
Sep 22, 2019 at 10:03 AM



