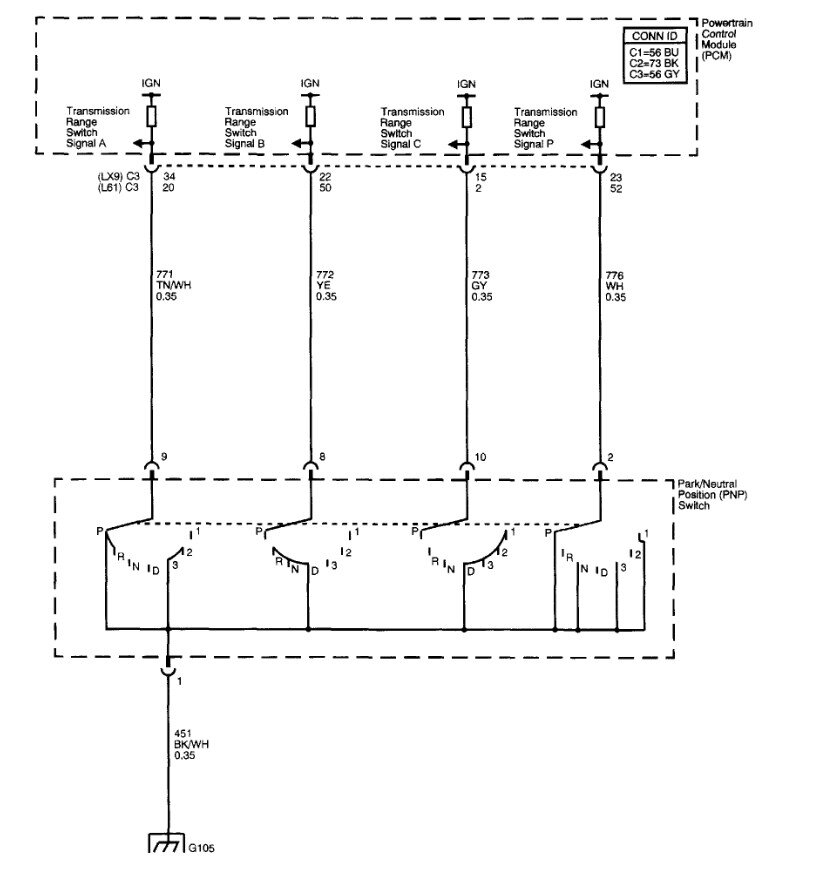
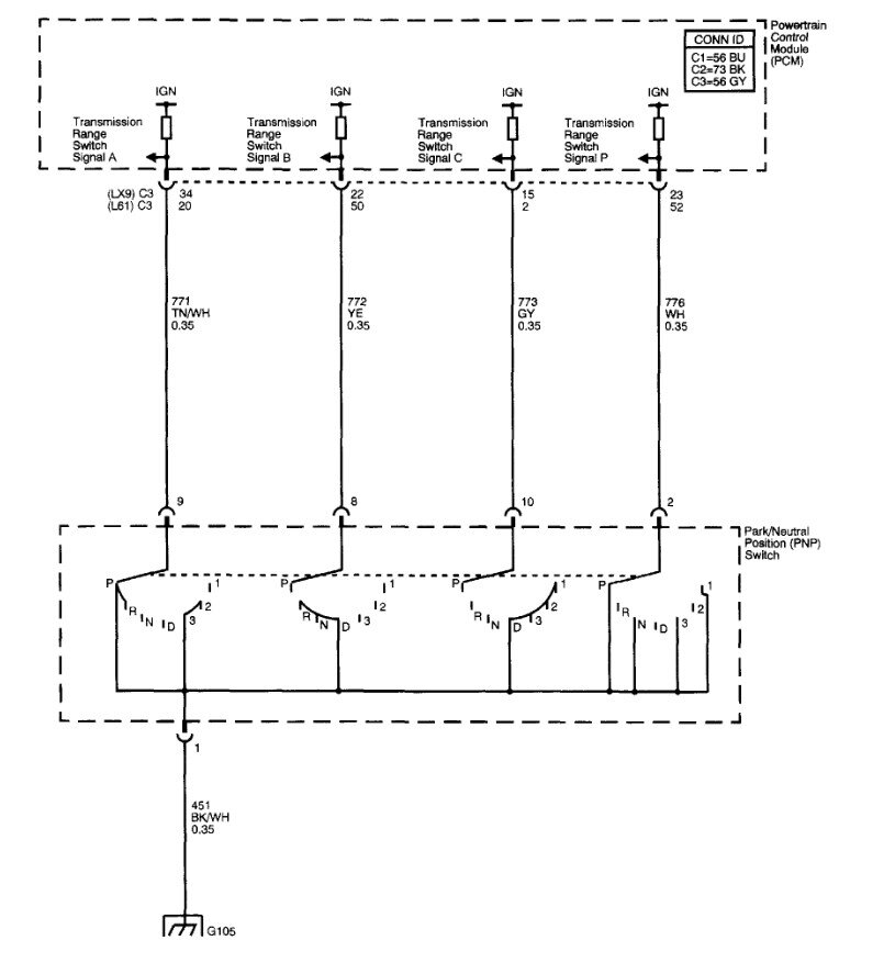
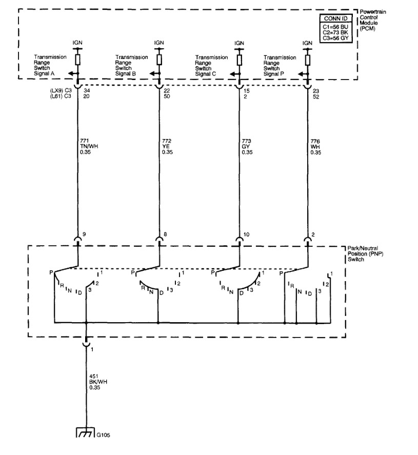
friend has a 2004 chevy malibu ls 3.5l 4t40e transmission. she just replaced the neutral safety switch and the connector. its a 12 pin connector but there is only 7 wires coming from the harness. her ex wired up the connector wrong. and wouldnt start with her key have to use a trigger to the starter now. need help with where each wire goes on the connector so it can start with the keys again. searched everywhere online and cant find much info with the transmission thats in it
wire colors
purple/white strip
pink
yellow
light green
darker green
black/white strip
orange/white strip
thank you
Foster
wire colors
purple/white strip
pink
yellow
light green
darker green
black/white strip
orange/white strip
thank you
Foster
Nov 28, 2025 at 7:23 PM



