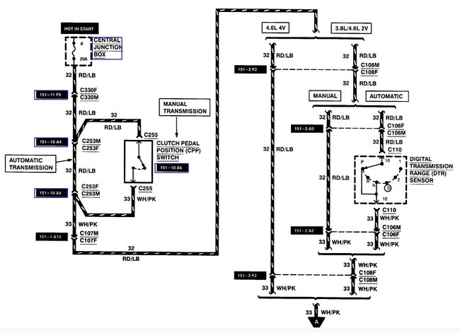
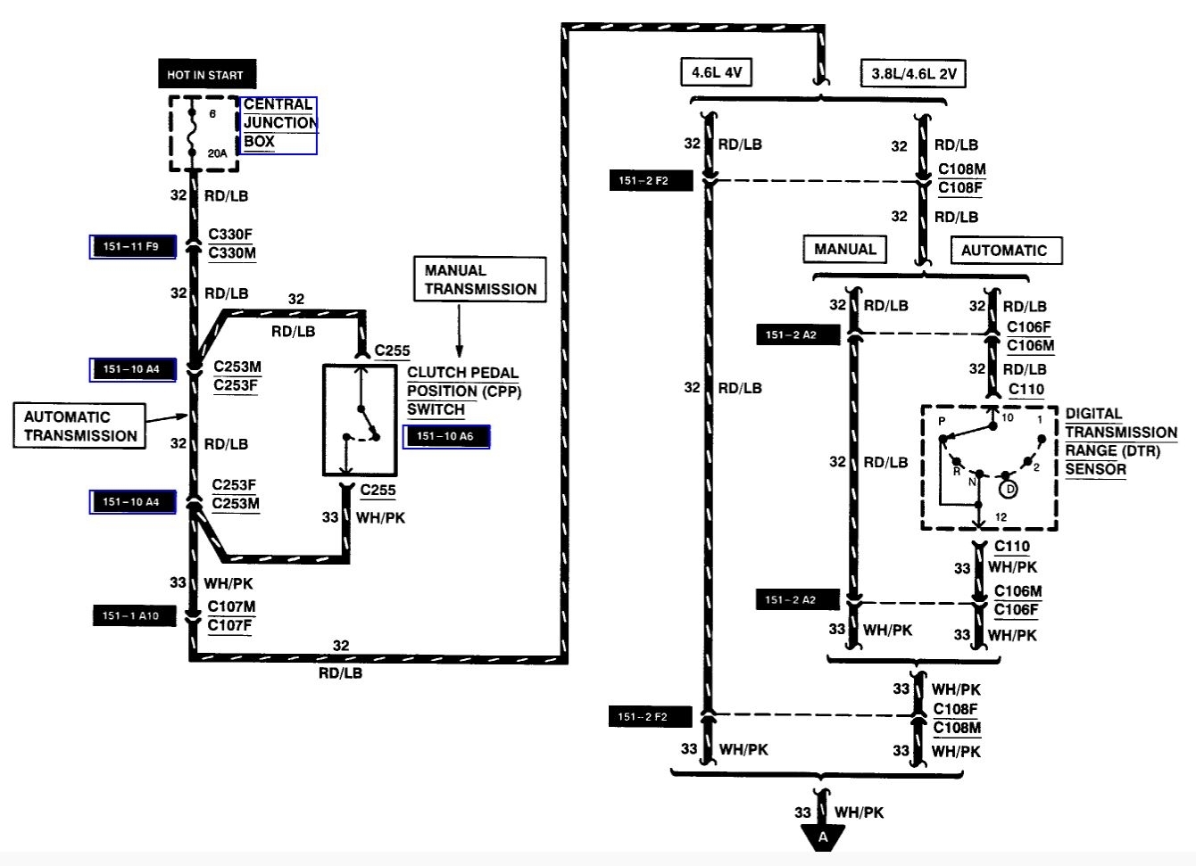
Anti-theft light on will not crank

1999 FORD MUSTANG
180,000 MILES • 4.6L • V8 • 2WD • AUTOMATIC
Avatar
SCORPIOCROWELL
  • MEMBER
  • 3 POSTS
Had bad gasket on thermostat, radiator went out and anti freeze covered top of engine. Stopped running. I changed radiator, coil packs, spark plugs, two starters (first one was bad from the start), new battery, new relay module from under passenger wheel. Well now anti theft light on is immediately and cannot get it to crank at all.
May 29, 2018 at 5:10 AM
Advertisement
Avatar
ASEMASTER6371
  • CERTIFIED EXPERT
  • 52,796 POSTS
Good morning.

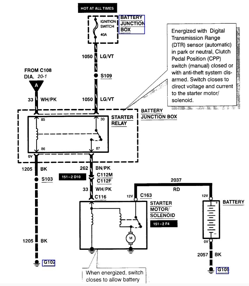
The security system has forgotten the password and is locking out the starting and fuel system. It needs to be programmed to get it out of this mode.

Dealers usually do this as you have to be certified by Ford for there key programming. It happened from the battery cable being removed.

You have two options. One is to have it towed to a dealer which is expensive or call a locksmith who can come to you and program it.

Roy

SPECIAL TOOL(S)

NOTE:
^ This procedure is used when a customer needs keys programmed into the system and does not have two programmed ignition keys available. This procedure is also useful when programmed ignition key(s) have been lost or the ignition switch assembly has been replaced, and it is desired to erase key(s) from the passive anti-theft system (PATS) memory.
^ This procedure will erase all programmed ignition keys from the vehicle memory and the vehicle will not start until two keys have been reprogrammed to the vehicle.
^ Two PATS encoded keys with the correct mechanical cut must be available to perform this procedure. One or both of them may be the customer's original keys.
^ If additional keys are to be programmed, refer to Key Programming - Program a Key Using Two Programmed Keys. If the remaining keys are with the customer and are not available with the vehicle, then instruct the customer to refer to the Owners Guide under the "Programming Spare [SecuriLock (R) (North America), Safeguard (R) (U.K.) or PATS for all other markets] Keys Procedure" for instructions on programming the remaining keys.

1. Turn the ignition switch from OFF to RUN.
2. Enter New Generation STAR/Service Bay Diagnostic System (NGS/SBDS). Follow the SECURITY ACCESS PROCEDURE to obtain security access.
3. From NGS/SBDS menu, select IGNITION KEY CODE ERASE.

4. Turn the ignition switch to OFF and disconnect NGS.

NOTE: Do not select any additional commands from this menu.

5. Insert the first encoded key into the ignition lock cylinder and turn the switch to RUN for three seconds.
6. Insert the second encoded key into the ignition lock cylinder and turn the switch to RUN for three seconds.
7. The vehicle should now start with both ignition keys.
May 29, 2018 at 5:56 AM
Avatar
SCORPIOCROWELL
  • MEMBER
  • 3 POSTS
I had a locksmith come out already and said the key is fine. There are three other keys registered, but I only have one. He said everything is okay as far as that goes. I am worried that it may be hydra-locked from the antifreeze. How do I check that?
May 29, 2018 at 7:06 AM
Advertisement
Avatar
ASEMASTER6371
  • CERTIFIED EXPERT
  • 52,796 POSTS
Does the anti theft light go out after about five seconds with key on?

If you think it is hydro locked, remove the plugs and crank it over.

Roy
May 29, 2018 at 7:11 AM
Avatar
PATENTED_REPAIR_PRO
  • CERTIFIED EXPERT
  • 1,853 POSTS
The security system will not prevent the starter from cranking the engine over and unless you had a blown head gasket also, I doubt also if it is hydro-locked. The engine could possibly be just plain locked up from the overheating. See if you can turn the engine over by hand. Remove all the spark plugs first to relieve all the compression, then try to turn the engine over again by hand if using the starter will not do it.
If though the starter is not even clicking or trying to crank over the engine check the starter fuse and try a new starter relay.
May 29, 2018 at 8:04 AM
Avatar
SCORPIOCROWELL
  • MEMBER
  • 3 POSTS
On a scale of one to ten how hard is the head gasket to change on the 1999 Mustang 4.3 v8 GT model?
May 29, 2018 at 10:43 AM
Avatar
ASEMASTER6371
  • CERTIFIED EXPERT
  • 52,796 POSTS
I would rate it at 11. It is in a very tight spot considering the size of the car.

I hate to tell you this, but I would remove the motor to do this operation. It does save time doing it that way.

Roy

https://www.2carpros.com/articles/how-a-cylinder-head-works
May 29, 2018 at 10:55 AM