Ignition diagram needed

2000 MITSUBISHI ECLIPSE
100,000 MILES • 2WD • AUTOMATIC
Avatar
KYLE LYON
  • MEMBER
  • 1 POST
I need to get a ignition key connecter colored wiring diagram and can't find one online no where. please can you help?
Jun 27, 2021 at 6:41 AM
Advertisement
Avatar
JACOBANDNICKOLAS
  • CERTIFIED EXPERT
  • 110,175 POSTS
Hi,

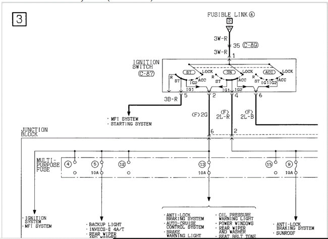
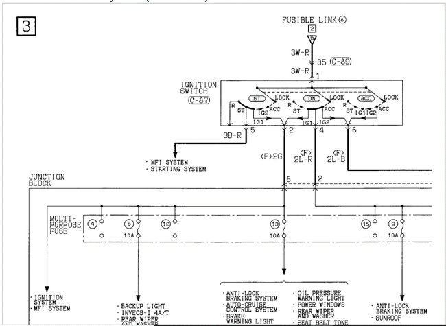
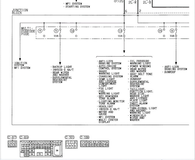
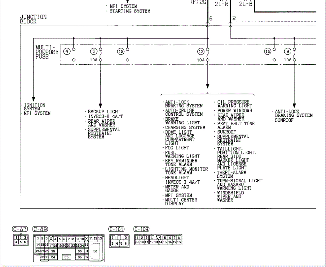
I was able to find an original OEM schematic of the switch. The colors are abbreviated.

The last 4 pics are from my manual. I had to cut the pics in half to make them readable. I did overlap them. If you look at pic 5, I highlighted the ignition switch. This may be easier to follow for you.

Let me know if this helps or if you have other questions.

Here is a link you may find helpful:

https://www.2carpros.com/articles/how-to-check-wiring

I hope this helps.

Take care,

Joe

See pics below.
Jun 27, 2021 at 10:19 PM