interior lights not working?

2003 MITSUBISHI GALANT
140,000 MILES • 2.4L • 4 CYL • 2WD • AUTOMATIC
Avatar
JACOBPAULSEN
  • MEMBER
  • 64 POSTS
i messed with this thing (circled in red) now my dashboard lights don't work.
Dec 27, 2022 at 7:39 PM
Advertisement
Avatar
STEVE W.
  • CERTIFIED EXPERT
  • 15,113 POSTS
Sorry but the image did not make the post. However, there is a dimmer rheostat mounted in the dash, it could have come apart. However, if it's only the dash lights could you verify that there are no rear marker lights first. They are powered through the same relay then into the dash lights through the fuses. Fuses 19 and 20, 20 is under the hood 19 is in the box behind the left side of the dash.
If you can post the image, it might show the rheostat.
Dec 27, 2022 at 8:17 PM
Avatar
JACOBPAULSEN
  • MEMBER
  • 64 POSTS
This also caused the light on the shifter to not work at all, the front lights and taillights still work.
Dec 28, 2022 at 6:47 PM
Advertisement
Avatar
STEVE W.
  • CERTIFIED EXPERT
  • 15,113 POSTS
Okay, that looks like it could be connectors C-48 and C-49. One is illumination for the cigar lighter and the power for the lighter itself. If the light circuit was shorted out, then it could have blown the fuse 23 in the relay box under the hood. It powers the interior lights and some of the dash.
Dec 28, 2022 at 10:50 PM
Avatar
JACOBPAULSEN
  • MEMBER
  • 64 POSTS
The fuses are fine, the interior lights that work are the dome lights, the radio works, it's just the lights behind the dash and the one on the shifter. When I turn the light nob for the dash lights to come on at night they don't. I went ahead and checked all the fuses they all look good.
Dec 29, 2022 at 12:29 PM
Avatar
STEVE W.
  • CERTIFIED EXPERT
  • 15,113 POSTS
Okay, the dash lights and the shifter would be powered off of the rheostat so that they can be dimmed. I would use a test light to verify the fuses, I've seen many times where they look okay, but were bad, or the socket they were in didn't have power.
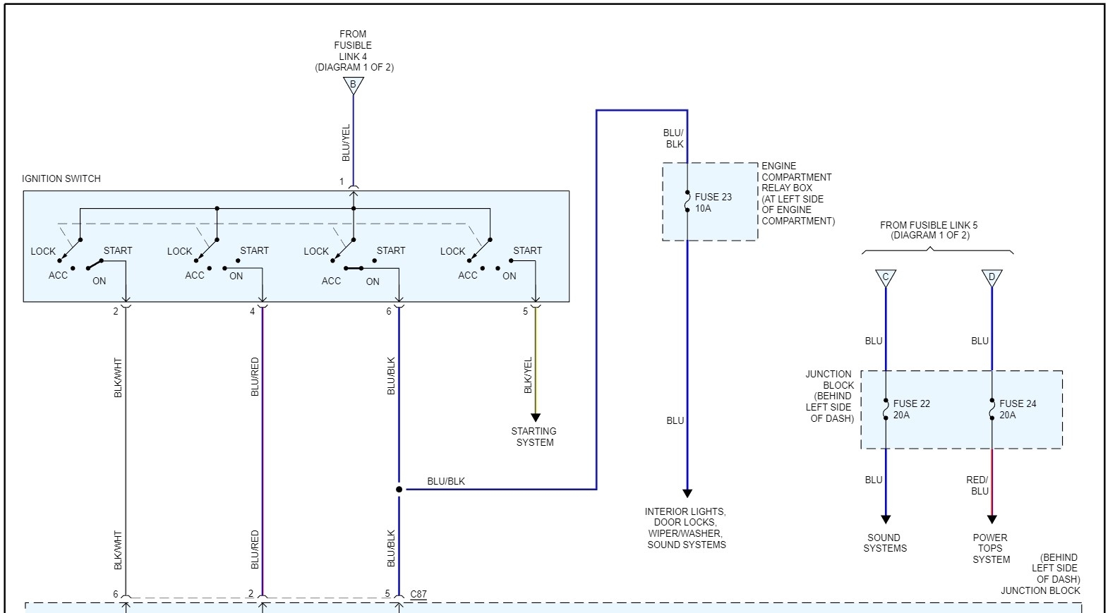
Attached is the wiring for the interior lighting. The green and white wire at each light should have battery voltage when the headlight switch is on as they get their power through the taillight relay, and the dimmer is not turned off. As you have the dash apart you can test those wires with a test light and see if there is power there with the lights on. The Black and yellow wire is the ground side that is grounded through the dimmer rheostat. I would take a light test and unplug the rheostat. Then connect the light to battery positive and verify the ground at pin one the Black wire. If it tests good, take a piece of wire and connect pin 1 to pin 2 which is the black and yellow wire. Now turn the lights on. If the wiring and fuses are okay the dash, radio and other interior lights should come on as you bypassed the dimmer and controls. If they do, the dimmer is bad. If they don't then there is a problem with the power feed to the wire that goes to those lights. Take the test light and connect it to a good ground, touch terminal 3 in the dimmer connector. Does it light up? If no, then you need to trace the wire back to the splice and see if it corroded or broke. Also look for the joint connectors (looks like a comb with all same-colored wires connected to it) behind the left side of the dash. One should be green with white stripe filled and the other black with yellow stripe. Unplug and re-plug those a few times to make a better connection.

If you test for power at fuse 20 first, key on lights on and get nothing then you have a different issue. If you have power under those conditions, then the above testing should get you to the bad area.
Dec 29, 2022 at 1:34 PM
Avatar
JACOBPAULSEN
  • MEMBER
  • 64 POSTS
I'll do that tomorrow, also the power locks only work when the car is on. It beeps when I turn it off from accessory mode like it should if you left the key in the ignition without starting it the door also seems to have power issues. Also, do you have diagrams of where the screws are to remove the dash? Or do you think It's major and I should take it somewhere?
Dec 29, 2022 at 3:06 PM
Avatar
STEVE W.
  • CERTIFIED EXPERT
  • 15,113 POSTS
Did these issues all start at one time? Looking at the wiring for the locks, dash lights, and the key in switch all share a ground to the dash support. Take a look at the metal parts of the dash where the grounds connect at each end. Or find a nice clean spot and attach a new ground wire to the dash metal and then over to the chassis. The only other shared item is the fuse box under the hood itself.
If you a planning on digging into multiple items on it you might want to buy a subscription to Mitchell1s DIY side at: https://eautorepair.net/ 1 year of full access for one car is around $40.00 and gives you all the same info that a shop can get.
Dec 29, 2022 at 5:57 PM
Avatar
JACOBPAULSEN
  • MEMBER
  • 64 POSTS
Turns out it's just the fuses I got the dash lights and the light on the shifter to work but they only turn on when the lights are on do I just need to reset the ECU fuse because we had pulled it out to examine the other fuses and I'm wondering if we put it back in when it was set to just have the dash lights on and so it confused it.

I just have a few more questions.

What fuses are for the powered door locks and the dome lights and the door sensor?

How do I pair a new key fob to the car?

How would I go about installing more cigarette lighters in the car?

Thank you with all your help!
Jan 1, 2023 at 2:35 PM
Avatar
STEVE W.
  • CERTIFIED EXPERT
  • 15,113 POSTS
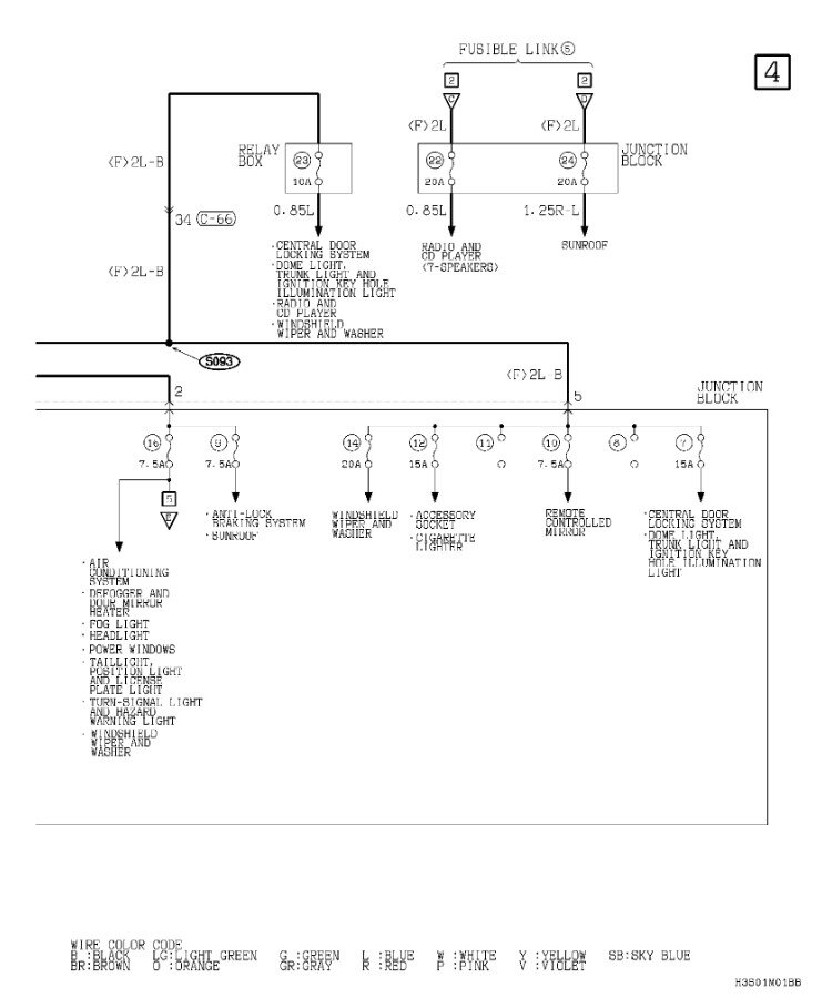
Dash and other switch and illumination lights (shifter, AC and heat backlights) should only work with the lights on. The dome lights work with the doors or if you turn them on with the switch. They are fuses 22 and 23 in the under-hood box. They power the dome, key reminder, trunk, vanity mirrors driver's side door lock switch. All of those plus the door switches for the dome lights are run through the ETAC module so you will also want to check fuses 7, 19 and 4 Attached are the fuses and what they power in both the hot full time and switched feeds. That way you can see which items should power on when, like the door locks and interior lights that work with the switch on one feed along with the wipers. So, if the wipers work, that feed from the switch is okay, then you would go to fuse 7 and see if it has power, if it does then you go to the items powered off of fuse 7.

It also shows the power that feeds the accessory and lighter power outlets. However, if you are adding extras, I wouldn't just connect them up. I would guess you want them for charge ports? If so, you might want to look into adding regular charge ports as the ones using lighter plugs are sort of vanishing. The other ones go into a similar sized hole and use common cables. I would still add a relay and set them up to power on and off with the switch simply because of the safety involved. I added 4 of the ones in the picture to our vehicle. Much easier than dealing with the cigar lighter type.
Jan 1, 2023 at 6:59 PM
Avatar
JACOBPAULSEN
  • MEMBER
  • 64 POSTS
I did that the only thing is I can't find a good place to ground the wire.
Jan 2, 2023 at 1:26 PM
Avatar
STEVE W.
  • CERTIFIED EXPERT
  • 15,113 POSTS
Pick any steel item that is grounded and drill a hole and use a ring terminal to secure it. Or look for the OE grounds behind the trim panels at either side of the dash, you can usually get to them under the dash or if you are adding them elsewhere just hunt for a nearby steel part that isn't an exterior panel or over the fuel tank.
Jan 2, 2023 at 11:04 PM
Avatar
JACOBPAULSEN
  • MEMBER
  • 64 POSTS
I found it and fixed the lights thanks it was the fuse when I replaced it well putting it in I snapped it.
Jan 10, 2023 at 9:29 AM
Avatar
STEVE W.
  • CERTIFIED EXPERT
  • 15,113 POSTS
That can happen with the "quality" parts that are out there these days. Good to hear you found the problem.
Jan 10, 2023 at 9:42 AM