Check Engine Light and code 717

2006 PONTIAC G6
150,000 MILES • 3.9L • V6 • 2WD • AUTOMATIC
Avatar
JIMB2020
  • MEMBER
  • 106 POSTS
I opened the transmission case cover, replaced the sensor with brand new sensor from the dealer. I Replaced fluid and flushed the transmission. The car is driving normal. the engine check light came back on registering the same code. What do I do?
Jan 24, 2020 at 10:47 PM
Advertisement
Avatar
ASEMASTER6371
  • CERTIFIED EXPERT
  • 52,796 POSTS
Good morning,

Codes rarely identify failed parts. They identify failed systems.

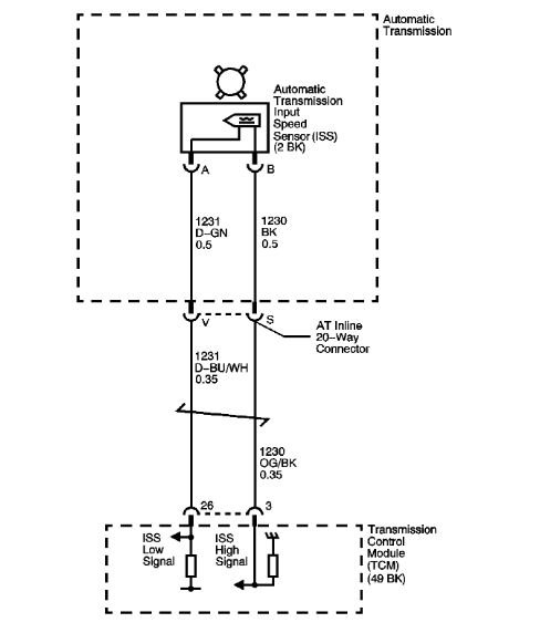
This code is electrical. I attached the possible issues as well as the description and flow chart. The chart needs to be followed. Check the connector at the transmission for fluid in the connector. Common for it to have fluid. If it does, you need the internal harness as there should be no fluid in the connector.



Roy

Circuit Description
The automatic transmission input speed sensor (ISS) is a permanent magnet with a coil of wire wound around it. The ISS mounts in the case cover facing the reluctor wheel of the input shaft. As the reluctor wheel is driven by the turbine shaft, an AC signal is induced in the input speed sensor. Higher vehicle speeds induce a higher frequency and voltage at the sensor.

There is a fixed air gap between the sensor and the teeth on the sensor reluctor wheel. The ISS input is used by the transmission control module (TCM) in order to control line pressure, TCC apply and release and transmission shift patterns. This sensor is also used to calculate the gear ratios and TCC slippage.

If the TCM detects a low input speed while the vehicle and engine speeds are high, then DTC P0717 sets. DTC P0717 is a type B DTC.

DTC Descriptor
This diagnostic procedure supports the following DTC:

DTC P0717 Input Speed Sensor Circuit Low Voltage

Conditions for Running the DTC
No ISS DTC P0717.
No OSS DTC P0722 or P0723.
The engine speed is greater than 500 RPM for 5 seconds.
The vehicle speed is 16 km/h (10 mph) or greater.
The engine torque is 50 Nm (37 ft. lbs.) or more.

Conditions for Setting the DTC
The input shaft speed is less than 100 RPM for 4.5 seconds.

Action Taken When the DTC Sets
The TCM requests the ECM to illuminate the malfunction indicator lamp (MIL) during the second consecutive trip in which the Conditions for Setting the DTC are met.
The TCM commands maximum line pressure.
The TCM freezes transmission adaptive functions.
The TCM calculates input speed from engine speed and gear ratio.
The TCM records the operating conditions when the Conditions for Setting the DTC are met. The TCM stores this information as Freeze Frame and Failure Records.
The TCM stores DTC P0717 in TCM history during the second consecutive trip in which the Conditions for Setting the DTC are met.

Conditions for Clearing the MIL/DTC
The ECM turns OFF the MIL during the third consecutive trip in which the TCM does not send an MIL illumination request.
A scan tool can clear the MIL/DTC.
The TCM clears the DTC from TCM history if the vehicle completes 40 warm-up cycles without an emission-related diagnostic fault occurring.
The TCM cancels the DTC default actions when the ignition switch is OFF long enough in order to power down the TCM.

Diagnostic Aids
Ensure the wiring harness is not stretched too tightly or other components are pressing on the A/T inline 20-way connector body. Also inspect for proper clearance to any other components and wiring. Refer to Testing for Intermittent Conditions and Poor Connections. See: Vehicle > Component Tests and General Diagnostics

Test Description
The numbers below refer to the step numbers on the diagnostic table.
3. A Yes answer indicates that the transmission side of the circuit is functioning properly.
4. Although the resistance is within specification in Step 3, there may be a short to ground or a short to voltage condition.
8. This step begins the transmission harness diagnosis.
Jan 25, 2020 at 1:25 AM