Ignition switch wiring

2000 FORD WINDSTAR
105,000 MILES • 3.8L • 6 CYL • 2WD • AUTOMATIC
Avatar
MIKE KLOKL
  • MEMBER
  • 1 POST
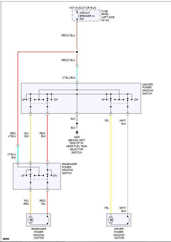
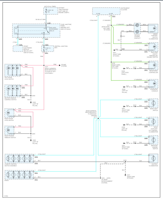
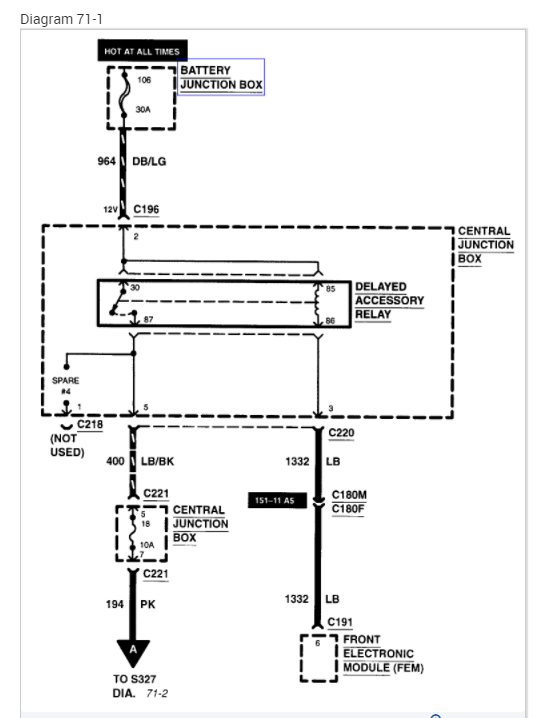
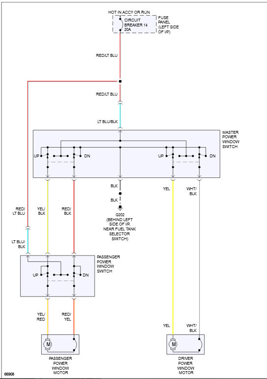
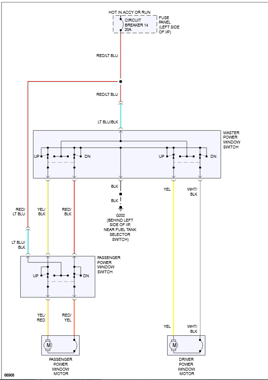
My radio and power windows stopped working and blow the 30 amp relay under the hood (second relay from the top in the left corner facing the fuse box) I have spent about $50 and relays so far. I have replaced the ignition switch and I'm starting to splice and replace the wires leading to the ignition harness. Does anyone know which wire in the ignition switch harness controls the radio and power windows
Aug 29, 2016 at 12:21 PM
Advertisement
Avatar
KASEKENNY
  • CERTIFIED EXPERT
  • 18,907 POSTS
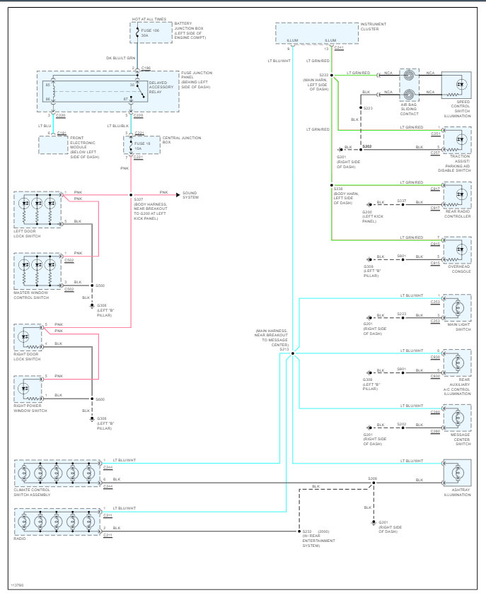
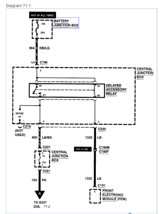
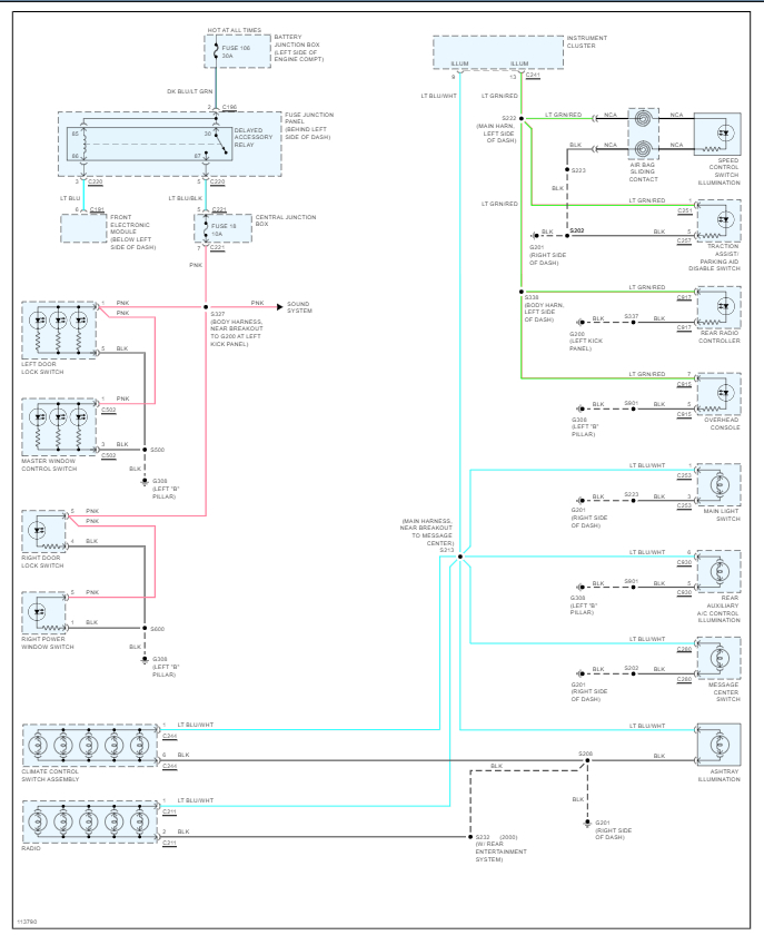
Looks like the relay that you are having issue with is the accessory delay relay.

If that is the case, please let me know.

If the relay continues to fail, then more than likely we have an issue on the control side. So, we need to monitor the voltage on pin 86. Basically, you need to check the ground on this pin and make sure you have 12 volts. This means you give it 12 volts and use pin 86 as the ground and your meter should read 12 volts.

https://www.2carpros.com/articles/how-to-check-wiring

If it doesn't then you have an issue with the wiring or front control module.

This is the most likely cause of this so I would suggest we start with this.

I attached all the wiring diagrams below so please run through all this and let me know what questions you have.

Thanks
Jan 15, 2022 at 3:03 PM