HVAC and heated seat controls not working

2015 CADILLAC SRX
78,000 MILES • 3.6L • 6 CYL • 4WD • AUTOMATIC
Avatar
PAIROFSRX'S
  • MEMBER
  • 11 POSTS
None of the controls function on the lower touch screen except "home" , "radio on and off" and "volume control" . No heat , A/C , fan or heated seat's . Tech's claim that this type of radio fails often , so I had the complete stack unit replaced. No difference! Checked fuses , none were bad . What module controls these functions? Everything else on the car functions as it should .
Apr 17, 2020 at 8:42 AM
Advertisement
Avatar
KASEKENNY
  • CERTIFIED EXPERT
  • 18,907 POSTS
Unfortunately they are not wrong that these systems called the "Cue" system has given a lot of trouble. A lot of issues of screens freezing and loss of control. So we need to clarify what was replaced when you say the stake unit was replaced. The HVAC control module and display screen are different so do you have a part number of the part replaced?

Have you tried a reset on the system? You do this by turning the vehicle on. Sliding your finger on the bottom of the screen/storage area to open the lower panel. Leave it open and turn off the vehicle and then open the driver door for at least 30 seconds to 60 seconds. Time it using your phone and make sure you get past the 30 second mark. Once you are close the driver door and turn the vehicle back on, then close the storage unit and the head unit should show Cue in the screen and basically rebooted. If this does not work then I suspect the HVAC control module or possibly the BCM is the issue depending on what the part number is of what they replaced.

Let me know and we can go from there. Thanks
Apr 17, 2020 at 9:19 AM
Avatar
PAIROFSRX'S
  • MEMBER
  • 11 POSTS
Tried the hard reset with the original radio and with the replacement with no effect . Replaced the complete radio with one from "cue screens" .
If the module , where is it located ?

The complete unit was replaced , cue screen & hvac control panel are very attached to the stack unit , replaced as one . Hvac module was replaced , the one that is mounted in the dash BEHIND THE STACK UNIT .
Apr 17, 2020 at 9:29 AM
Advertisement
Avatar
PAIROFSRX'S
  • MEMBER
  • 11 POSTS
Does the module that controls the HVAC also control the heat/cooled seat ? Because (like mentioned earlier) that control doesn't work either .
Apr 17, 2020 at 11:34 AM
Avatar
PAIROFSRX'S
  • MEMBER
  • 11 POSTS
One more thing.. the battery was removed from this vehicle when I purchased it used because it was "dead" . Does that mean the HVAC control module would have to be reprogrammed ?
Apr 17, 2020 at 12:14 PM
Avatar
PAIROFSRX'S
  • MEMBER
  • 11 POSTS
The module is in the dash , behind the radio . Hate to ask, but (can't tell from the photo) where is that controller located in the vehicle ?
Apr 18, 2020 at 7:32 AM
Avatar
KASEKENNY
  • CERTIFIED EXPERT
  • 18,907 POSTS
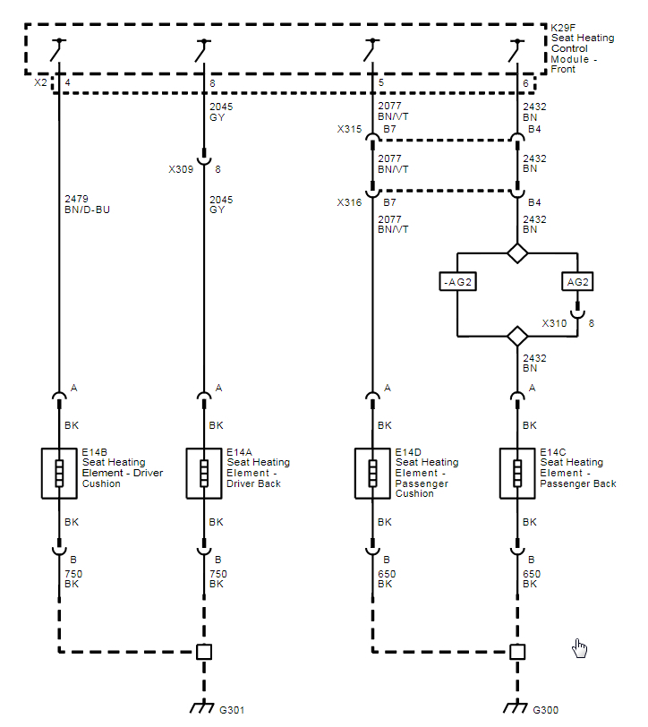
That HVAC control module is behind the radio in the dash. However, I may have missed the heated seat issue as well. That has a separate module that controls these. It is the heated seat control module. Take a look at the last attachment where it talks about this operation. The only thing in common with all this is the radio/hvac controls. This is why we need to get the part number of what was replaced so we can see what the actual part is.
Apr 18, 2020 at 7:40 PM
Avatar
PAIROFSRX'S
  • MEMBER
  • 11 POSTS
Replaced the complete radio with a tested unit deo cuescreens , no difference , same condition . None of the controls on the lower touch screen work . Same as the other radio .
Apr 18, 2020 at 7:47 PM
Avatar
PAIROFSRX'S
  • MEMBER
  • 11 POSTS
All the seat controls; up , down , forward , back , lumbar and tilt , controlled with the switches on the side of seat work fine . The only non functioning part is the heat/cool, again activated by the touch screen . All the functions on the radio touch screen are illuminated as the should be. no "pulse" when touched except for "power and home" .
Apr 18, 2020 at 9:40 PM
Avatar
KASEKENNY
  • CERTIFIED EXPERT
  • 18,907 POSTS
Can you get a quick video of the issue? Clearly it is highly unlikely that the second radio has the same issue as the first but based on what you are telling me, it is the touchscreen/radio as the issue. So maybe I am not understanding the issue as I think I am.

Unfortunately these radio's had all sorts of issues so where did you get the unit? Was it used or new from a dealer?
Apr 19, 2020 at 6:49 PM
Avatar
PAIROFSRX'S
  • MEMBER
  • 11 POSTS
The video would go like this . . Push any button on the control panel you desire , fan , temperature setting , A/C , heated seats nothing happens . Fan never turns on , temperature setting doesn't display , nothing works , except if you touch the radio off , it shuts the radio off . Or if you hit the home screen button , it goes to the home screen . And yes both radios did exactly the same thing .
Apr 19, 2020 at 7:01 PM
Avatar
KASEKENNY
  • CERTIFIED EXPERT
  • 18,907 POSTS
Okay. I was going to send the video to one of my GM dealers for their input because a video is much more clear then us describing it but that is pretty clear.

One clarification point, the way I understand you saying control panel is the bottom portion (circled in red in the attached) and not the touch screen, correct? Does the touch screen operate properly?
Apr 19, 2020 at 7:55 PM
Avatar
PAIROFSRX'S
  • MEMBER
  • 11 POSTS
Correct . As I've said earlier , cue screen works fine on the raido , navagation , am , fm , xm , everything but hvac control there too .
The lower screen you have circled , only radio "on/off , volume and home" function . And the storage door opens and closes ,and the function icon's do light up . The other unit installed was purchased from "cuescreens" . 100% tested for function before it was shipped .No difference , functioned same as original .
Apr 20, 2020 at 5:42 AM
Avatar
PAIROFSRX'S
  • MEMBER
  • 11 POSTS
It's like there is no communication from the "circled screen" to the desired function .
Would a "scan" pick up any and all faults in my car ? The car is within warranty limits for years , but over on miles .
Apr 20, 2020 at 6:55 AM
Avatar
KASEKENNY
  • CERTIFIED EXPERT
  • 18,907 POSTS
I am waiting to hear back from a dealer but while we wait, let's just check the HVAC control module fuse in the center console fuse panel. I attached the info on where this is.

I will report back as soon as I hear from them. Thanks
Apr 20, 2020 at 6:54 PM
Avatar
KASEKENNY
  • CERTIFIED EXPERT
  • 18,907 POSTS
So I got word back from a dealer and they stated that they see this issue enough to know what I was talking about and replacing the unit that you replaced has solved it. Which makes this even more odd. So I asked what else could cause this and he said that the only thing these items have in common is the touch screen however, if that is operating then the touch buttons (circled buttons in that picture I sent) are just inputs to all the various modules that they interact with.

Then he said something that was interesting and that I have first hand experience with a different OEM. These units that are sold are "re-manufactured" units and the "new" units that have never been installed in vehicles are held for new production units. That means when someone replaces this unit at a dealer, they send back the old one, the supplier tests it and if it tests okay, they resell it. He told me that they have replaced these units for an issue and when they install the replacement they have different issues. In fact, the last time they had the issue you are having was with a replacement unit.

Clearly this is unlikely for you to get two units that are doing the exact same thing, but with this info it is possible.

Let's check the fuse for the power to the HVAC module as I posted before and then we will may need to consult a dealer and have them monitor the HVAC module to see if they can see the button being pressed on the display. If they are not able to see the button being pressed in the module then I would think it is this same unit again. However, if the HVAC shows the button being pressed but it is not doing anything then that module would be the issue.

Sorry I don't have a better answer for you but I am hoping that fuse is blown. Let me know. Thanks
Apr 20, 2020 at 7:03 PM
Avatar
DIEGOH96
  • MEMBER
  • 1 POST
Did you ever find the problem? I'm having the exact same symptoms with my 2016 ctsv.
Jun 12, 2021 at 11:59 AM
Avatar
KASEKENNY
  • CERTIFIED EXPERT
  • 18,907 POSTS
Unfortunately they did not respond but that doesn't mean we can't figure out what is going on with your system.

Have you replaced it as they have and still have the same non response? Also, I just want to make sure it is the same buttons not working as listed above?

Can you get a video of what you are dealing with? There are all sorts of complaints with this system. so if you have not been to the dealer for any and all software updates, that may be needed as I am sure they have made some improvements. In fact, I think there is a class action lawsuit on these units.
Jun 13, 2021 at 8:22 PM
Avatar
THOMAS GULFBREEZE
  • MEMBER
  • 4 POSTS
Has anyone figured this out having same issue 13 SRX?
Aug 1, 2022 at 11:11 AM
Avatar
STRAILER
  • CERTIFIED EXPERT
  • 53,854 POSTS
There is a logic module inside the instrument cluster, also a HVAC module, front seat control module and the PCM is involved, I would do a CAN scan which is easy and goes over the entire car to see what's wrong. You can get a CAN scanner from Amazon for about $30.00.

Here is a video to show you how:

https://youtu.be/u-4syLc-ifQ

Here is a scanner link:

https://amzn.to/3o41KcZ

Also recheck all fuses with the key on and let us know what the scan comes back with.
Aug 3, 2022 at 12:09 PM
Avatar
THOMAS GULFBREEZE
  • MEMBER
  • 4 POSTS
U1510 is my code something to do with Lin bus. I've replaced BCM and module behind radio. Still no communication with module.
Aug 22, 2022 at 5:44 AM
Avatar
STRAILER
  • CERTIFIED EXPERT
  • 53,854 POSTS
U1510 code is lost communication with the HVAC controller. I would check the power and grounds and if okay replace the controller.
Aug 23, 2022 at 11:49 AM