Hi,
If you are certain the fuses are good, please confirm there is power to them. Here is a link you may find helpful:
https://www.2carpros.com/articles/how-to-check-a-car-fuse
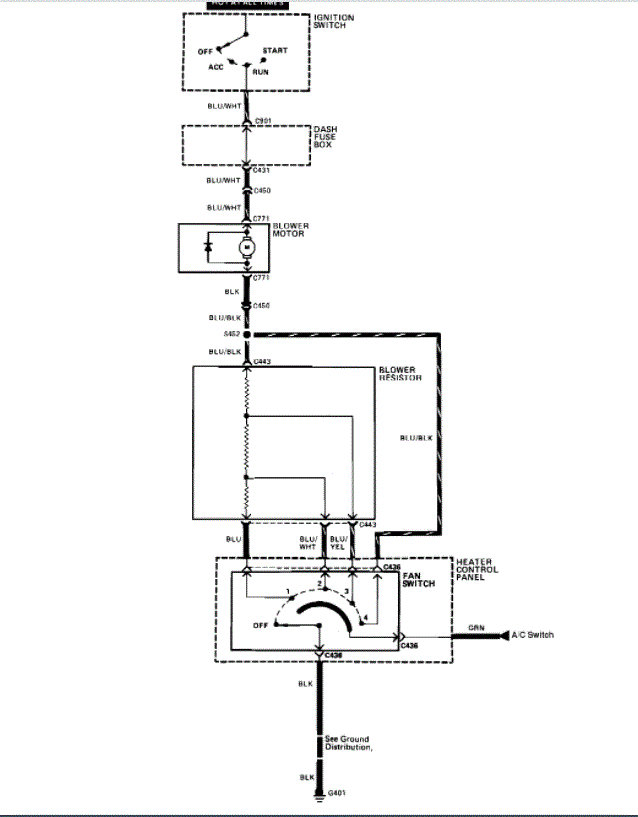
I am going to explain how this system works. Once the key is turned on, there is power at the blower motor. It is there all the time. On the blower motor itself, there is a blue wire with a white tracer and a black wire. The blue/white wire should have power. Check it for 12v with the key on.
Now, to complete the circuit, a ground path is provided via the blower motor switch in the vehicle. Power is directed through different levels or resistance via the blower motor resister.
If the blower motor resister is bad, usually, you will only have high speed on the blower. If you have nothing, then you need to check that blue /white wire I mentioned. If there is power there, check the black wire for continuity to ground with the blower motor switch on.
If you have both power and ground, replace the blower motor.
I attached the wiring schematic of the system below for your review.
Let me know what you find or if you have other questions.
Take care,
Joe
Aug 12, 2020 at 10:31 PM