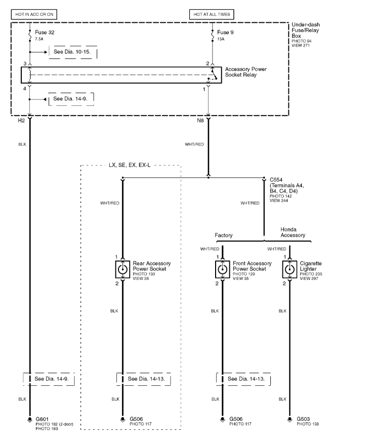
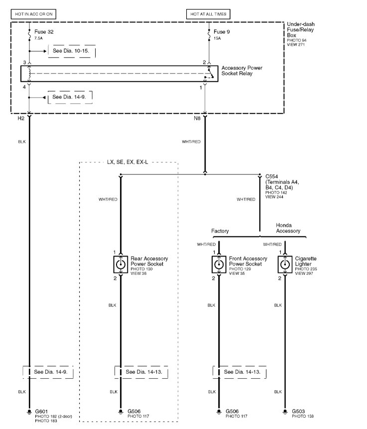
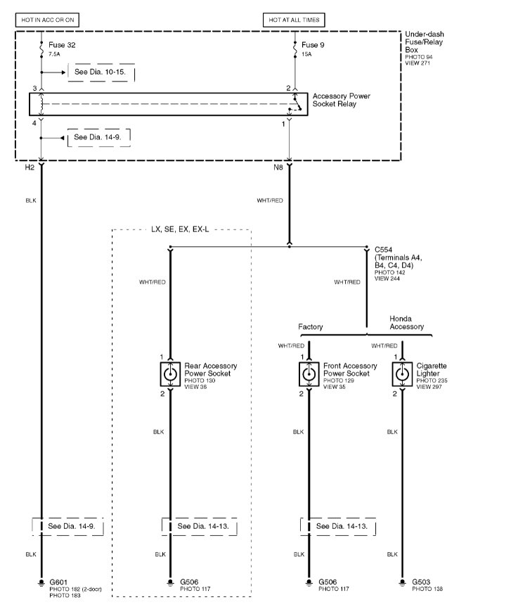
I recently bought a gps device to use in my 2006 honda accord. However, when i attempted to charge/power it with the honda's power socket, my attempt failed. I faulted the gps device and sent it back in return for another. The second gps device failed to be powered with the vehicle's accessory power socket as well. I now fault the vehicle's power socket.
Are the 2006 honda accords capable of powering accessories like gps devices through their power sockets? Or is there something that I am not doing?
Are the 2006 honda accords capable of powering accessories like gps devices through their power sockets? Or is there something that I am not doing?
Aug 5, 2009 at 7:23 PM




