Hivac system not blowing

2014 CHEVROLET EQUINOX
50,496 MILES • 2.4L • 4 CYL • AUTOMATIC
Avatar
KBARROW00
  • MEMBER
  • 4 POSTS
Air was not blowing could barely feel anything coming from vents even on the high setting replaced the blower motor resistor two weeks ago and everything was working great. Today it has just stopped blowing all together could this be the blower motor?
Jan 29, 2020 at 3:13 PM
Advertisement
Avatar
SCGRANTURISMO
  • CERTIFIED EXPERT
  • 4,897 POSTS
Hello,

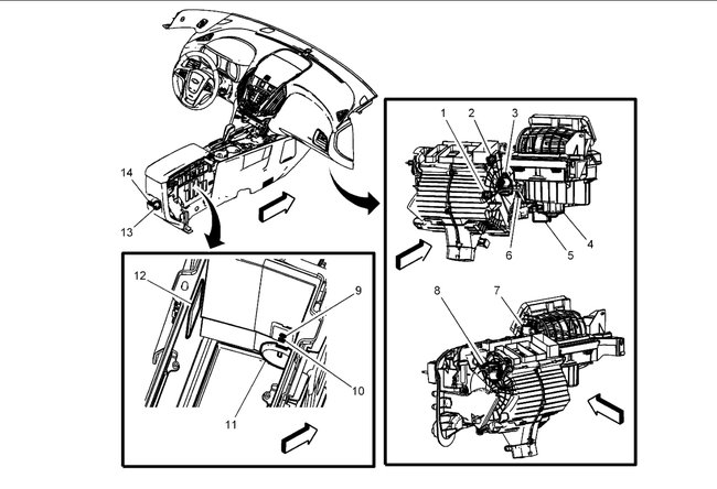
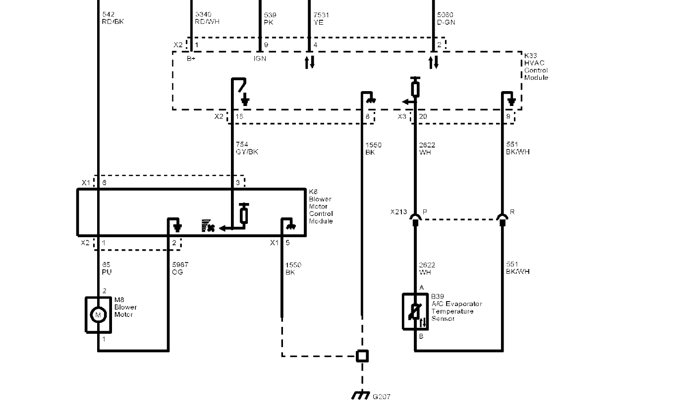
This could be a couple of different problems. It could be that the blower motor control module has gone bad, or there could be a problem with Ground #207 which is located on the right hand side under the dashboard. In the diagrams down below I have included the wiring diagram of the blower motor circuit as well as a diagram of the location of Ground #207. Please inspect this ground and ensure that it is clean, tight, corrosion free, and making good metal to metal contact. Please report back to us with what you find out, and we can go from there, if needed.

Thanks,
Alex
2CarPros
Jan 29, 2020 at 3:27 PM
Avatar
KBARROW00
  • MEMBER
  • 4 POSTS
The ground is clean and tight.
Jan 29, 2020 at 3:46 PM
Advertisement
Avatar
KBARROW00
  • MEMBER
  • 4 POSTS
The blower is not coming on.
Jan 29, 2020 at 3:55 PM
Avatar
SCGRANTURISMO
  • CERTIFIED EXPERT
  • 4,897 POSTS
Hello again,

With the vehicle supplying power to the blower motor is there any way we could get you to take a voltage reading at pin #2 of the blower motor connector. In the diagrams down below I have included the location of the blower motor and a pinout for the blower motor connector for you. You will need to use a Digital Multi-meter [DMM], and if you are not sure how to use one, here is a link below for you:

https://www.2carpros.com/articles/how-to-use-a-voltmeter

Please report back with what you find out. We can go from there.

Thanks,
Alex
2CarPros
Jan 29, 2020 at 8:07 PM
Avatar
KBARROW00
  • MEMBER
  • 4 POSTS
with the A/C turned on it wasn’t giving a reading. then when I pushed the in more on the pin the A/C kicked on and the I started getting a reading. On low it was 3.05 on high it went over 12.
Feb 2, 2020 at 11:42 AM
Avatar
SCGRANTURISMO
  • CERTIFIED EXPERT
  • 4,897 POSTS
Hello again,

Okay, so then there is your problem. Replace the blower motor relay and you should be okay. Please keep us informed.

Thanks,
Alex
2CarPros
Feb 2, 2020 at 5:59 PM