heating hose diagram?

1992 CHEVROLET S-10
100,000 MILES
Avatar
JOHNRUTHIE49
  • MEMBER
  • 1 POST
under dash diagram for heating hose
Feb 21, 2026 at 8:25 AM
Advertisement
Avatar
STEVE W.
  • CERTIFIED EXPERT
  • 15,113 POSTS
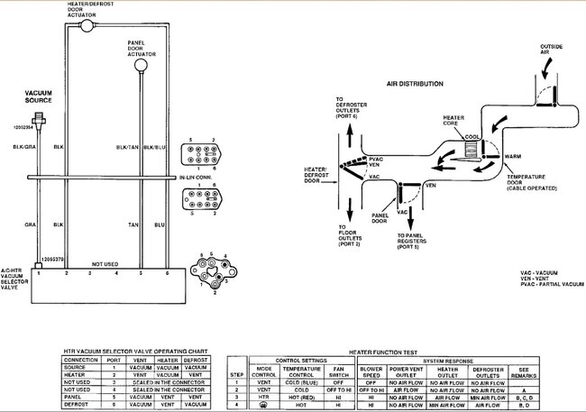
There are no heater hoses under the dash, did you mean the vacuum control lines for the HVAC system perhaps. Attached is a diagram for those as well as how the system operates.
Feb 21, 2026 at 11:22 AM