Harness installation

1991 HONDA ACCORD
200,653 MILES • 2.2L • 4 CYL • 2WD • AUTOMATIC
Avatar
MALINA7
  • MEMBER
  • 22 POSTS
I got the harness that goes under the dash from another Honda. I didn't get the complete harness so it is cut in a couple places. Now I'm trying connect everything including the dashboard and gauge cluster and all pretty much. Is there a step by step instruction to help me? I am worried I'm not going to be able to get it all right.
Jul 29, 2019 at 11:45 AM
Advertisement
Avatar
STRAILER
  • CERTIFIED EXPERT
  • 53,854 POSTS
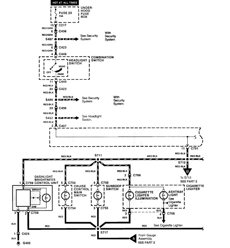
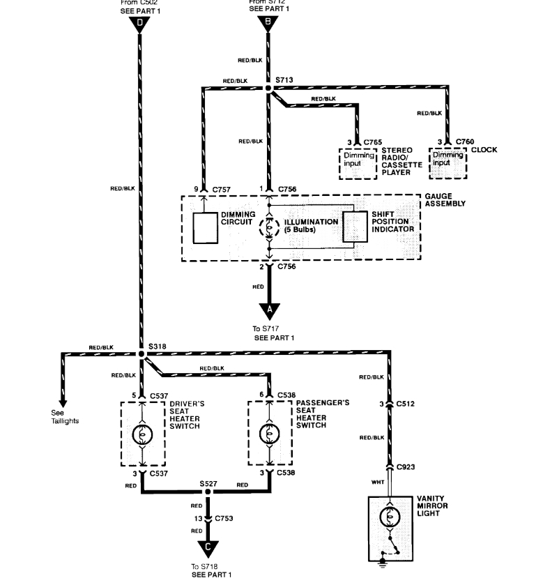
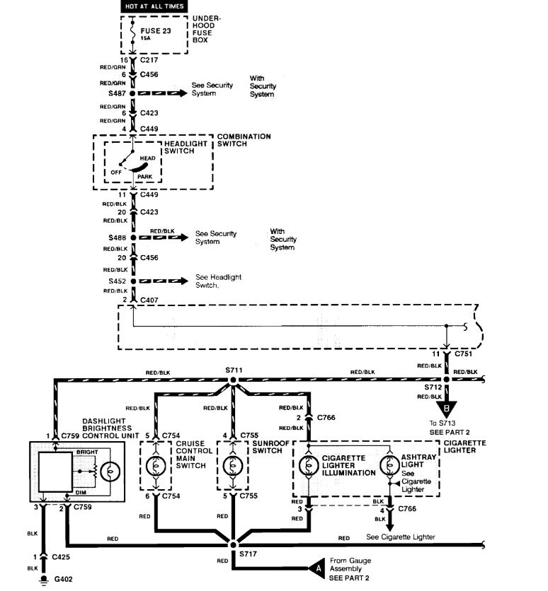
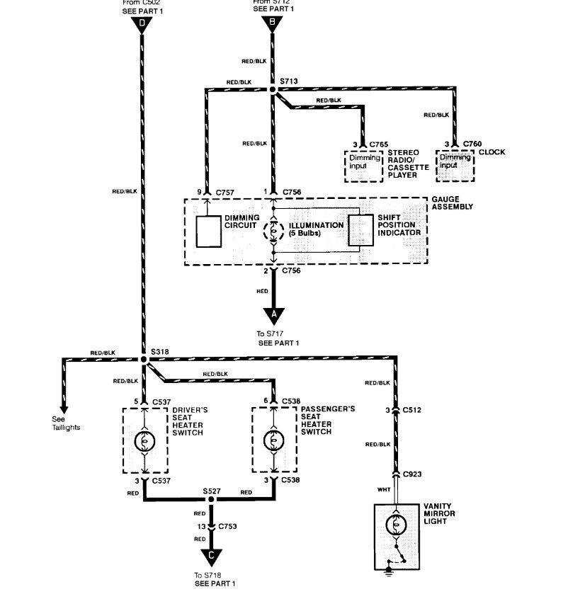
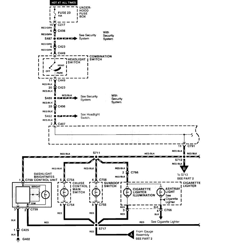
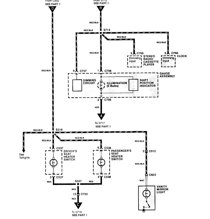
Yep, I can get you wiring diagrams. Below are the ones for the cluster to get you started. let me know if you need more. Here as how you test the connections:

https://www.2carpros.com/articles/how-to-check-wiring

Check out the diagrams (below). Please let us know if you need anything else to get the problem fixed.
Jul 30, 2019 at 12:51 PM