Fuel pump relay location needed

1991 MERCURY SABLE
12,000 MILES • 3.8L • V6 • 2WD • AUTOMATIC
Avatar
MICK MIKE
  • MEMBER
  • 1 POST
Where is the fuel pump relay located?
I've looked with the fuse box but cannot find it.
Mar 21, 2021 at 4:28 PM
Advertisement
Avatar
STEVE W.
  • CERTIFIED EXPERT
  • 15,113 POSTS
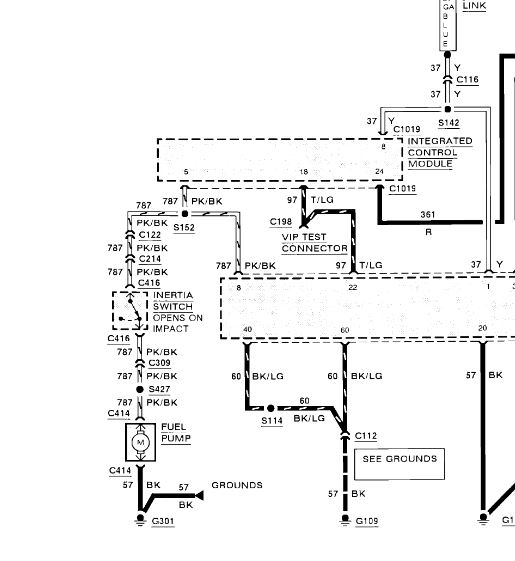
It doesn't have one that is an individual component, it is part of the integrated relay control assembly. That is mounted in the front of the engine bay above the radiator on the support.
That car also has an inertia switch that can cut power to the pump. That is in the trunk on the left side on the support above the wheel arch It can fail or trip open and stop the pump. I would test there first, it is easy to access and allows you to test the wiring and the control relay, A simple test light connected to a ground and used to probe the switch terminals will tell you if you have power through the control relay and if the wiring is okay. The light should come on for a bit right after the key is turned on. Then reset the switch and see if you have power on both terminals. If you do then the likely issue would be the pump or wiring to it. If you find no power at the inertia switch then you can take the test light up front and test the power into and through the relay control. For that you need to locate the Pink wire with black stripe, this takes power from the control to the pump. It should have power when the key is first turned on. If you don't then it is likely the controller is bad as it receives power from a fuse link and powers other items that you haven't mentioned are not working. Replacement is simple, the unit unbolts and disconnects then reverse that with the new one.
Mar 21, 2021 at 8:47 PM