Front blower not blowing

2013 FORD EXPEDITION
90,000 MILES • AWD • AUTOMATIC
Avatar
MARC QUICK-KUHLMANN
  • MEMBER
  • 1 POST
The front blower has stopped working completely. The rear fans work fine and you can feel the temperature difference in the front when you change it on the console.
I cannot locate the fuse that would possibly be blown based on the schematic in the owners manual.
It has been a very long time since I tried to play mechanic!
Any and all suggestions and tips for someone below remedial level for checking this out before spending a ton of cash having it investigated?
Aug 26, 2017 at 11:51 AM
Advertisement
Avatar
STEVE W.
  • CERTIFIED EXPERT
  • 15,113 POSTS
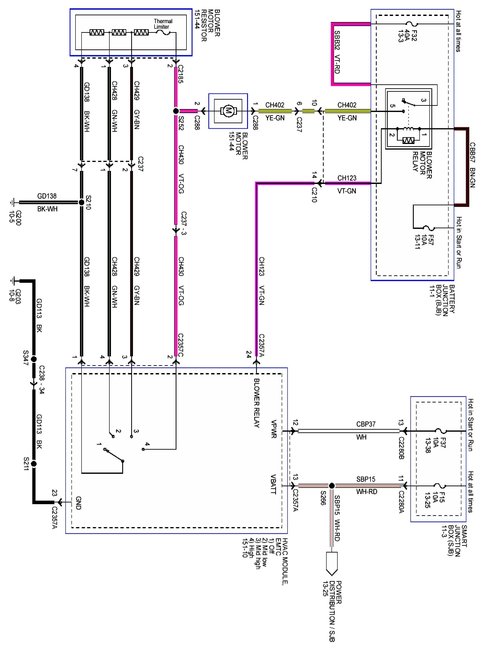
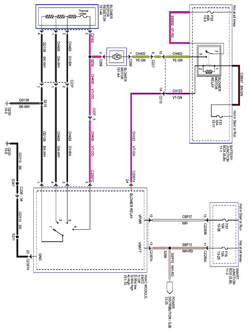
There are fuses, a relay and a resistor, or speed control block depending on which control system you have.

Fuse 32 (40A) and 57 (10A) 32 is blower power, 57 is relay power.

Fuses 37 and 15 (both 10A) power the in dash controls

If you have the manual system and the blower does not work on high it is likely not the resistor as it is bypassed to ground out the motor on high speed.

To test the blower itself you can ground the violet/orange wire (manual controls) or yellow/blue (automatic controls) and apply positive battery voltage to the yellow/green wire. Blower should run at high speed.

Attached are the blower controls for both systems.
Aug 26, 2017 at 11:57 PM