Front left turn signal does not work

2005 FORD FOCUS
290,000 MILES • 4 CYL • 2WD • AUTOMATIC
Avatar
CHRISCHUNG221
  • MEMBER
  • 17 POSTS
The Amber front turn signal(3157 bulb) in the headlight assembly of my car listed above ZXW model will not work. I've replaced the bulb, and still nothing. I attached images of the bulb working on the right side, and not working on the left. Any ideas of what I could check next would be greatly appreciated.

Thanks again.
Feb 5, 2020 at 11:13 AM
Advertisement
Avatar
BMDOUBLE
  • CERTIFIED EXPERT
  • 1,139 POSTS
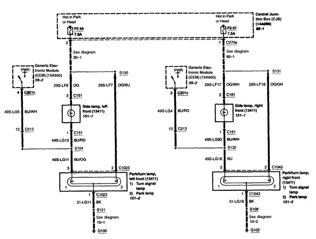
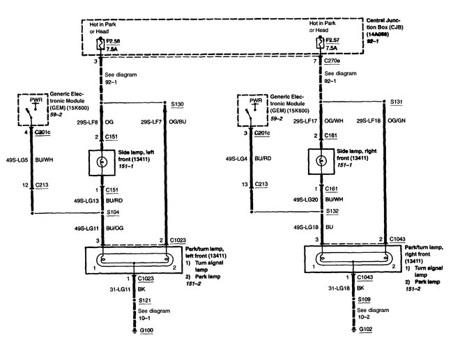
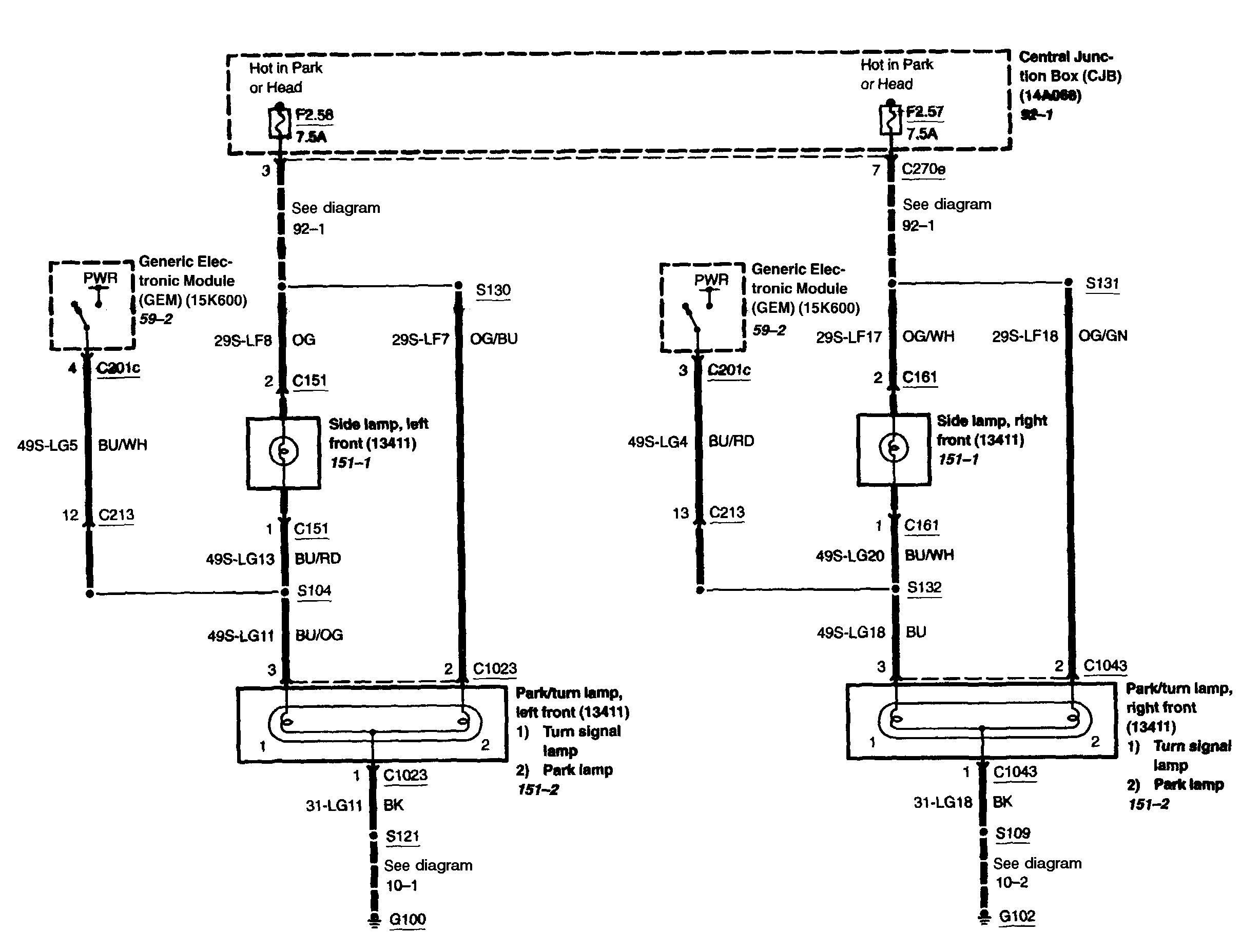
The turn signal circuits are power individually by the generic electronic control module (gem) and are susceptible to excess loads or short circuits and will cut power to the circuit as a safety. Sometimes a battery disconnect or even a gem module disconnect can reset the internal fet transistor, sometimes the module fails, and also sometimes the bulb socket or ground go bad, I've had them all and not one of them happen more than the other. I've included a quick set of pinpoint tests and the gem location to help you out.
Feb 5, 2020 at 11:54 AM
Avatar
CHRISCHUNG221
  • MEMBER
  • 17 POSTS
Thanks so much! I will let you know how it works out. Working on it again next week. Appreciate the speedy reply!
Feb 7, 2020 at 11:21 AM
Advertisement
Avatar
BMDOUBLE
  • CERTIFIED EXPERT
  • 1,139 POSTS
You're welcome!
Feb 8, 2020 at 5:22 PM
Avatar
CHRISCHUNG221
  • MEMBER
  • 17 POSTS
Anyway you could simplify the steps for checking L2? I have a borrowed voltmeter, but am not acquainted w the procedure. I have checked YouTube and tried a few things, but want to make sure i'm doing this right. Also, fuse 57, 58 and 50, which are all 7.5a were all blown. My license plate lights aren't turning on either. Apparently the drivers DRL in front and rear as well as the license plate lights are connected to fuse 58. The front DRL's light up when i use the turn signals, but they blink fast on both right and left turns. Any advice would be much appreciated. Thanks again for your patience.
Feb 10, 2020 at 10:57 AM
Avatar
BMDOUBLE
  • CERTIFIED EXPERT
  • 1,139 POSTS
With L2 you are basically checking continuity to ground, with blown fuses though that changes things. Now we are looking for short circuits on the power side. Before you go any further, check the rear luggage compartment wire harness, or better yet disconnect it, replace the fuses and see if things operate as they should without fuses blowing.
Feb 11, 2020 at 7:22 AM
Avatar
CHRISCHUNG221
  • MEMBER
  • 17 POSTS
Lift-gate wire harness is definitely a player in this problem. Pulled back the rubber boot and many wires were damaged, one was even broken. Mended everything that i could see and the left side is working again. However, now both turn signals are on on the dash when i turn on the lights. Also both blink fast, and the front right doesn't blink at all. Just stays on solid. I am going to undo the wire harness again today and see if i missed anything.
Feb 11, 2020 at 7:27 AM
Avatar
CHRISCHUNG221
  • MEMBER
  • 17 POSTS
If you can think of anything else,i'm all ears.thanks again for the advice. By the way, i have a Bluedriver scan tool. Here is what it is saying:
Feb 11, 2020 at 7:31 AM
Avatar
BMDOUBLE
  • CERTIFIED EXPERT
  • 1,139 POSTS
Wires definitely have to be shorted together somewhere in that trunk harness!
Feb 11, 2020 at 11:35 AM
Avatar
CHRISCHUNG221
  • MEMBER
  • 17 POSTS
Just wanted to update you guys. Decided to give this one to a mechanic friend. He charged $60.00. He lengthened the wires in the hatch, soldered them etc. After it was all said and done the lights were working again but still blinking fast on both sides and both turn signals still came on. Googled and realized that installing led turn signals can cause this. Switched back to OEM and everything is back to normal.

God bless ya'll!
Feb 16, 2020 at 4:30 PM
Avatar
BMDOUBLE
  • CERTIFIED EXPERT
  • 1,139 POSTS
Good deal! those hatch wires always break!
Feb 17, 2020 at 9:30 PM