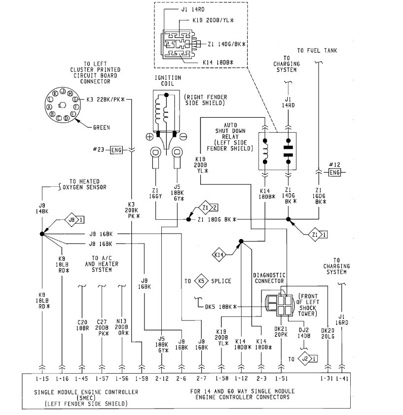
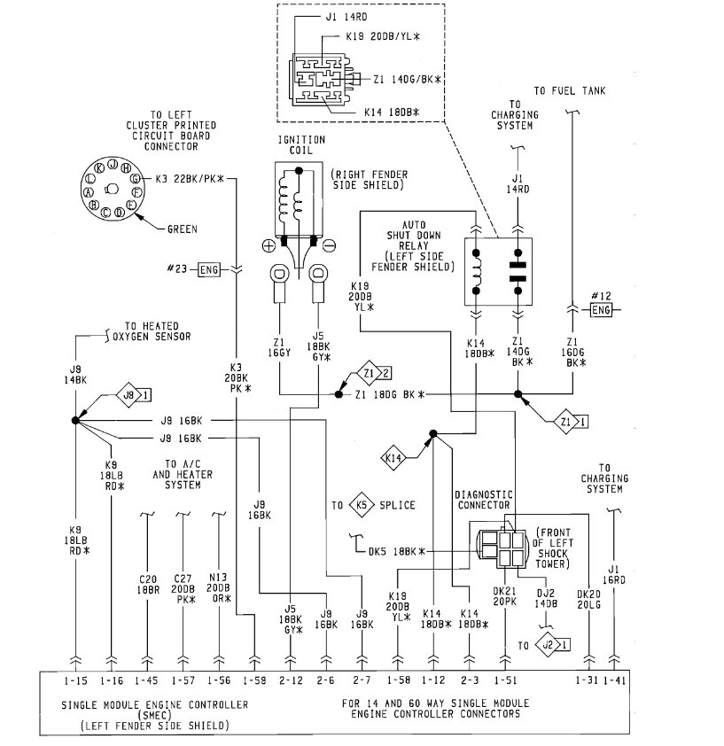
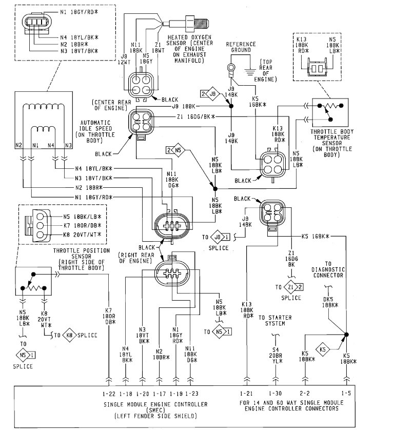
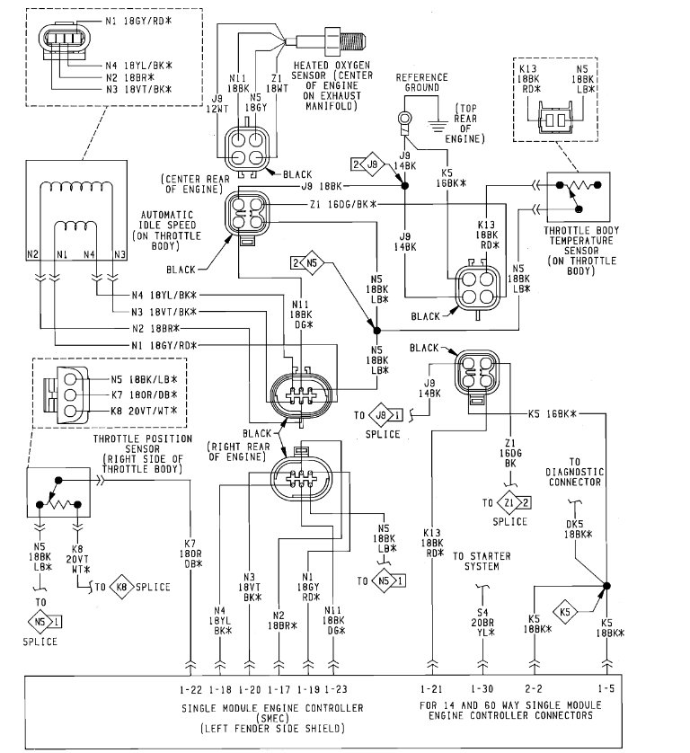
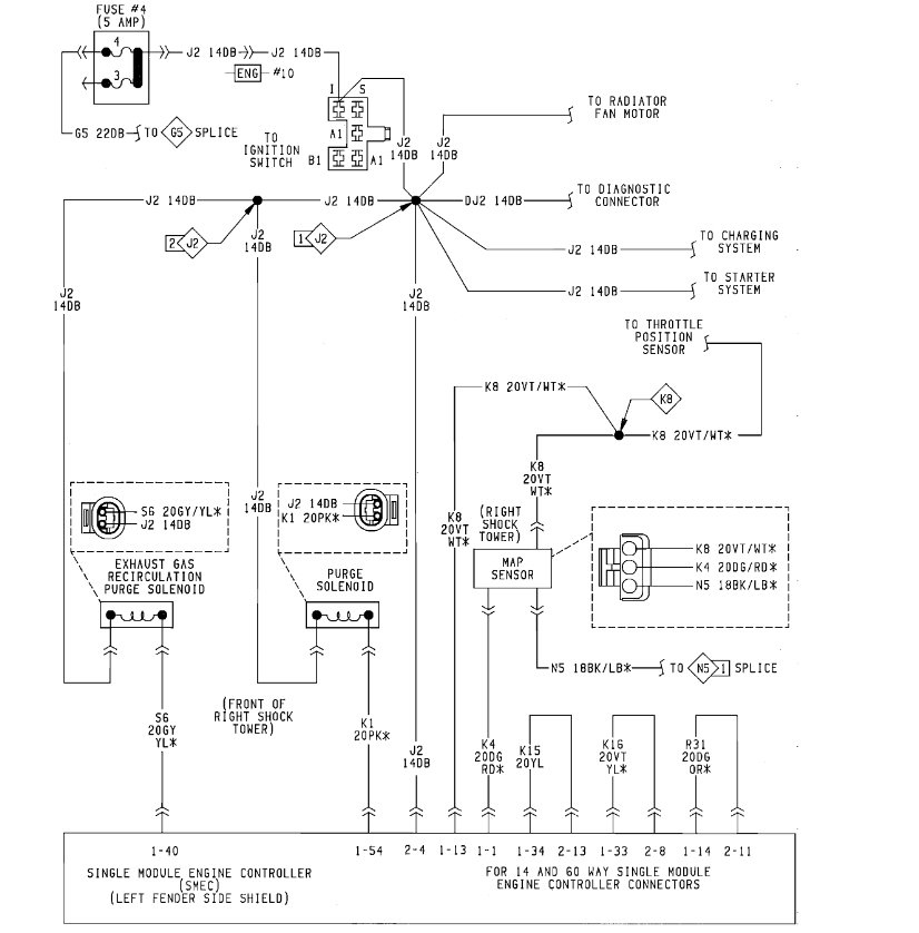
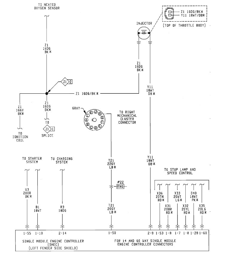
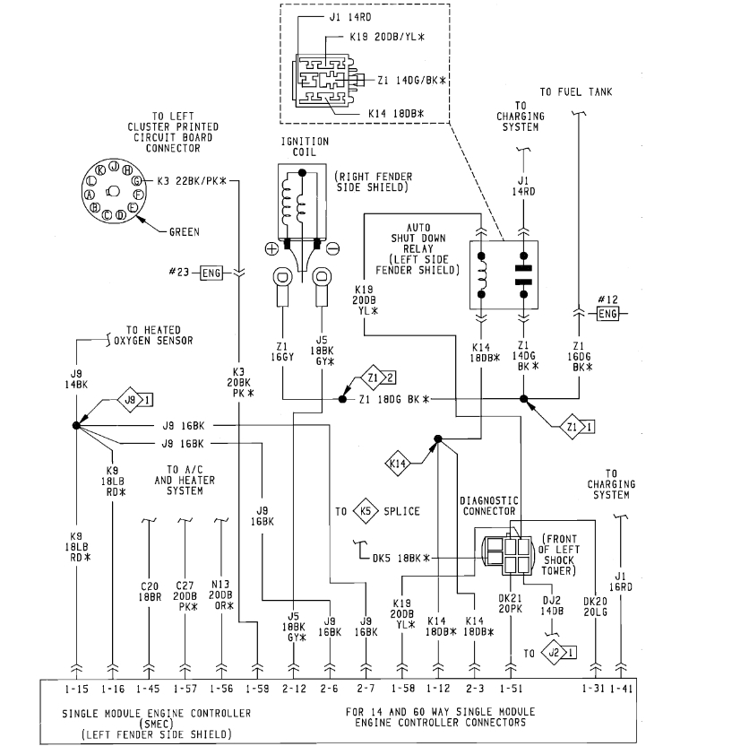
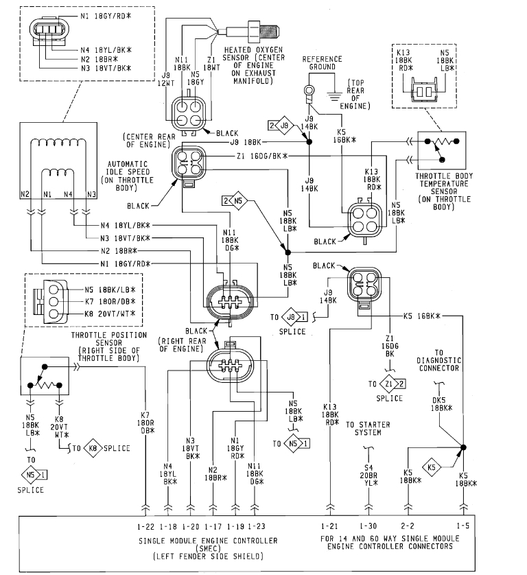
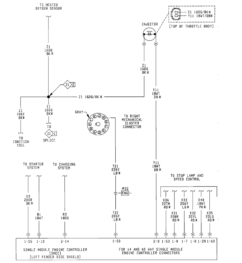
This car has been sitting for a long time and had a lot of its wiring chewed by rats. I have power to my coil (i verified that the hard way), but I have no spark to the distributor. I found some wiring diagrams but nothing for where the crank position sensor wires go (I think this is my problem). I replaced the pickup coil and found only a 12v wire going to the position sensor. The other wire was chewed I connected its possible mate which reads ground, but it is not an isolated wire meaning it branches off to other places. Any help you can give me will be greatly appreciated
Thank you
Thank you
Aug 1, 2022 at 11:57 AM




