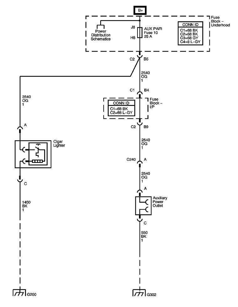
Can I run a small tv with Input Power: AC 100-240V 50/60Hz 30W off of a power inverter 1.74AMPS 200watts off of my cigarette lighter as my car is running??? Will do any damage to the battery or alternator? I just want to run it for a short period of time thank you
Sep 18, 2023 at 8:29 PM
