ASD Relay location?

2000 DODGE RAM
148,000 MILES • V8 • 4WD • AUTOMATIC
Avatar
KEITH MURRAY
  • MEMBER
  • 3 POSTS
As long as the ASD relay buzzes the truck will not start. I hace checked grounds electrical connections still nothing, I can get the ASD to stop buszzing by removing battery cable and waiting as long as over night. When the ignition is turned on and I don't hear the buzz, the truck will run. When I turn off the truck and try to restart the buss is back and no start. What would make the relay buzz and vibrate so bad? I have also tried another relay ( the one below is the same ) and it dosen't help. I am in desperate need of my truck as I am working at the Niagara Falls Airport construction site. Between the mud and ice my 4 wheeler is a must. So the truck won't start, and the ASD relay is vibrating,until I manage to stop the ASD relay from buzzing then I have ignition.
Dec 19, 2008 at 10:57 AM
Advertisement
Avatar
DOCFIXIT
  • CERTIFIED EXPERT
  • 18,828 POSTS
Hi
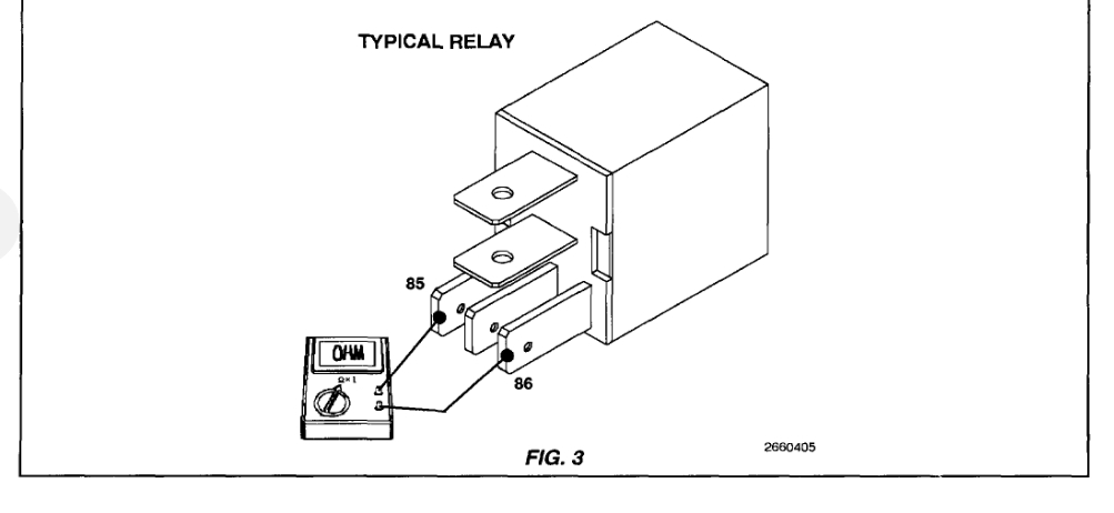
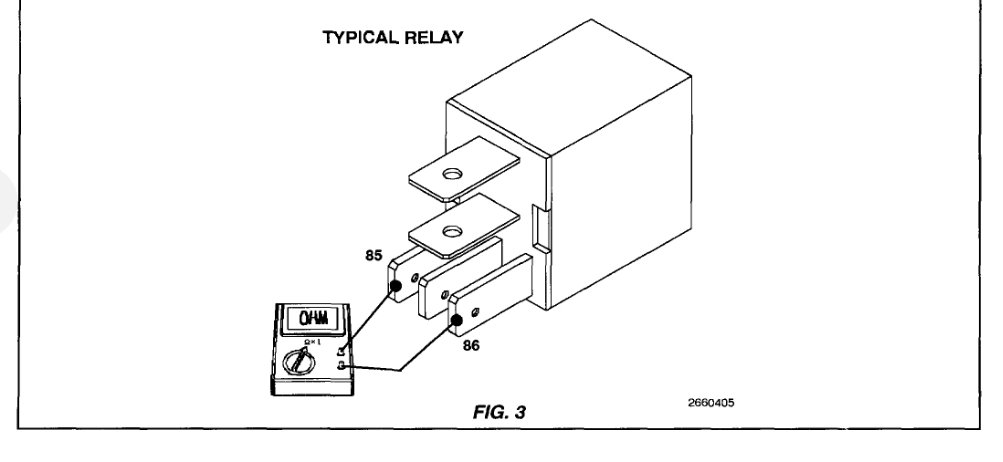
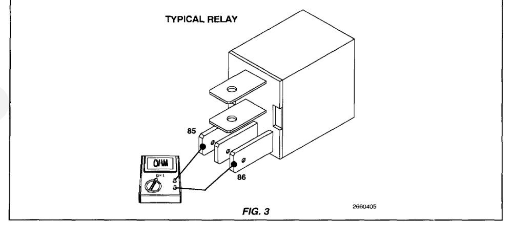
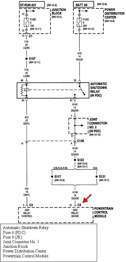
What I think is happening is the ground to relay is cycling on and off. What controls relay is Power Control Module right side fire wall. When it is buzzing pull relay hook volt meter to term # 85 Dark blue/yellow. Neg to term pos to power. If meter fluxuates the PCM faulty. here is a guide to help you test the ASD relay with the location in the diagrams below.

https://www.2carpros.com/articles/how-to-check-an-electrical-relay-and-wiring-control-circuit

Check out the diagrams (Below). Please let us know what happens.
Dec 19, 2008 at 12:00 PM
Avatar
KEITH MURRAY
  • MEMBER
  • 3 POSTS
You were right, it seems as though the PCM is at fault. I went on line to find out how much a new one will cost, they say $400.00. This seems a little steep to be guessing, is there a sure way to double check and can the PCM be repaired if the test fails? One more thing , what cauced the PCM to fail? If I install a new one will this fail as I haven't fixed the cause?
Dec 20, 2008 at 10:13 AM
Advertisement
Avatar
DOCFIXIT
  • CERTIFIED EXPERT
  • 18,828 POSTS
You would need it hooked up to a diagnostic scanner to check all sensor inputs and out put to determine if PCM is the fault entirely. But it is a microprocessor and they just go out like TV, computer ect. If you want to by pass PCM need to remove that wire tape up and run ground wire.
Dec 20, 2008 at 10:24 AM
Avatar
KEITH MURRAY
  • MEMBER
  • 3 POSTS
What wire, and ground from where to where
Dec 20, 2008 at 11:07 AM
Avatar
DOCFIXIT
  • CERTIFIED EXPERT
  • 18,828 POSTS
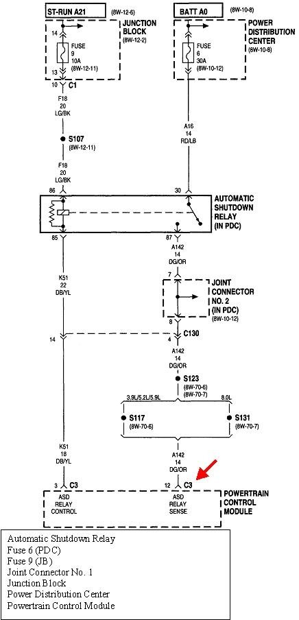
The wire you checked term 85 on ASD Drk blue/yellow. Remove that wire replace with a wire you run to ground ie. body, block ect.
Dec 20, 2008 at 11:11 AM
Avatar
  • MEMBER
  • 1 POST
Started with a bad fuel relay board, so i ran the relay wires to the fuse with extended wiring. then i burned up pump, change fuel pump, then lost spark. put in new crank sensor, cam sensor, distributor cap, plugs and wires relays, fuses redid grounds. changed ECM, inspected the wiring harness. i have lots of fuel pressure from pump to fuel rail. also changed coil to new with diagnostic code po 1389 comes up. what is the fix to get this truck running? help!
Jun 23, 2021 at 7:08 PM (Merged)
Avatar
SCGRANTURISMO
  • CERTIFIED EXPERT
  • 4,897 POSTS
Hello,

This Direct Trouble Code[DTC] is for No ASD Relay Output Voltage at PCM. In the diagrams down below I have included the diagnostic troubleshooting flowchart for DTC P1389 in the diagrams down below. It will require the use of a code reader and a Digital Multi-meter [DMM], so here is a link below explaining how to use one, if needed:

https://www.2carpros.com/articles/how-to-use-a-voltmeter
,
Please go through these guides and get back to us with how everything turns out.

Thanks,
Alex
2CarPros
Jun 23, 2021 at 7:08 PM (Merged)
Avatar
CARADIODOC
  • CERTIFIED EXPERT
  • 34,306 POSTS
P1389 - No ASD Relay Output Voltage At PCM

The sensors account for about 95 percent of crank / no-start problems. If the ASD relay is turning on during cranking, the two sensors are working, then we have strictly a fuel supply problem or an ignition system problem.

Let me know what you find up to this point.
Jun 23, 2021 at 7:08 PM (Merged)