Cooling fans not working

1999 DODGE CARAVAN
118,000 MILES • 6 CYL • FWD • AUTOMATIC
Avatar
MARK4613
  • MEMBER
  • 6 POSTS
Neither of my cooling fans are working. I have replaced radiator cap, and fan relay. Fans work, I have wired them directly to the battery, and I control them from a toggle switch, although I don't want the fans to burn out so I am driving it sparingly until I can remedy the problem.
Jun 23, 2009 at 11:51 PM
Advertisement
Avatar
SQM
  • CERTIFIED EXPERT
  • 6,383 POSTS
Hello,

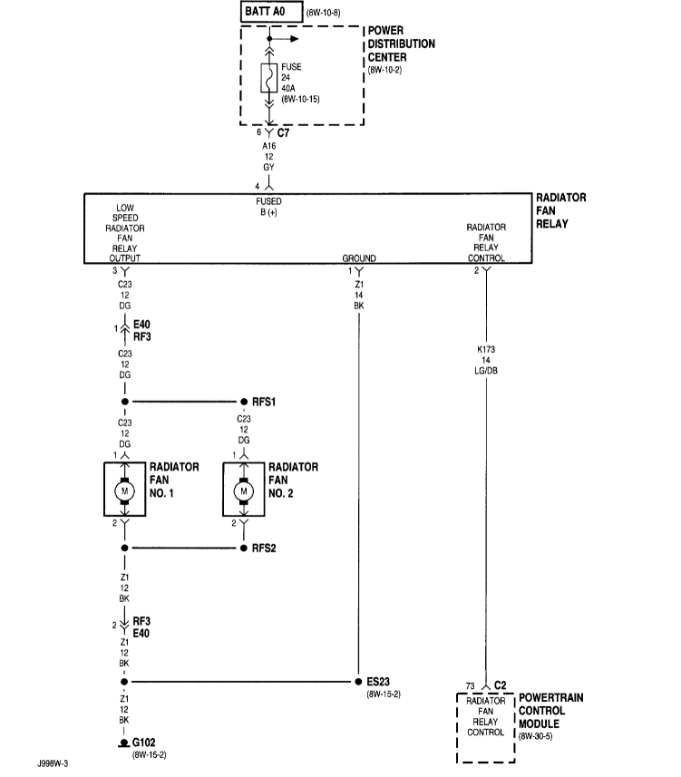
Since you have already verified that you have a good fan motor and good relay.
It sounds like you have a wiring issue with the cooling fan system.
You will have to use a multimeter to trace the wiring for the fan and relay and see where you might have a open or short.

Here is couple of helpful articles on how to check wiring:

https://www.2carpros.com/articles/how-to-use-a-voltmeter
https://www.2carpros.com/articles/how-to-check-wiring

I have attached the wiring diagrams for your reference.

Please let me know of any questions.

Thank you.
Aug 2, 2021 at 8:24 PM