Digital dash wiring diagram and or pinout diagram

1989 CHEVROLET CAPRICE
68,000 MILES • 5.7L • V8 • 2WD • AUTOMATIC
Avatar
CHEVYCHI
  • MEMBER
  • 5 POSTS
I recently acquired a intellitronix digital dash for my car listed above Brougham and I can't find the pinout diagram so I can properly wire the dash. so my question is, does anyone have a wiring diagram and or pinout diagram for my car?
Jul 13, 2020 at 8:00 PM
Advertisement
Avatar
STEVE W.
  • CERTIFIED EXPERT
  • 15,113 POSTS
Most of their units for the early vehicles don't use the OEM sensors or hardware, they include universal style sending units and adapters that you replace the factory parts with. The only OEM wires they use would be for power and grounds, turn indicators and high beam and illumination. If you give them a call they would likely give you a list of the parts and the install guide for the unit.
Jul 13, 2020 at 8:15 PM
Avatar
CHEVYCHI
  • MEMBER
  • 5 POSTS
I have the instructions from them just not the wires diagram for my car for the cluster.
Jul 13, 2020 at 8:17 PM
Advertisement
Avatar
JACOBANDNICKOLAS
  • CERTIFIED EXPERT
  • 110,175 POSTS
Hi,

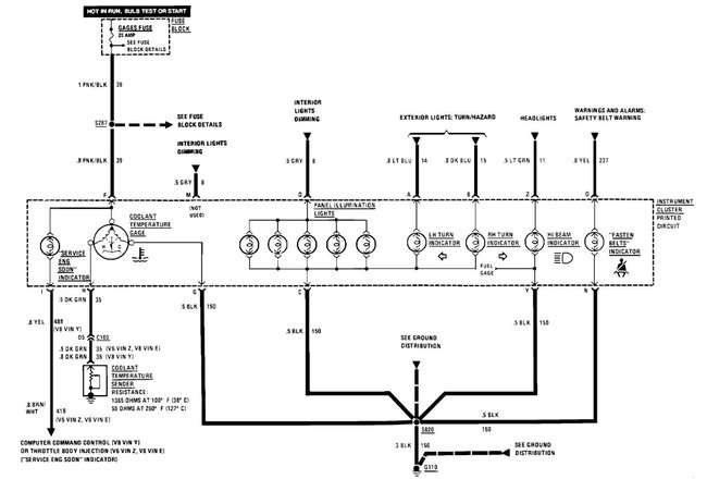
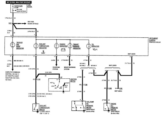
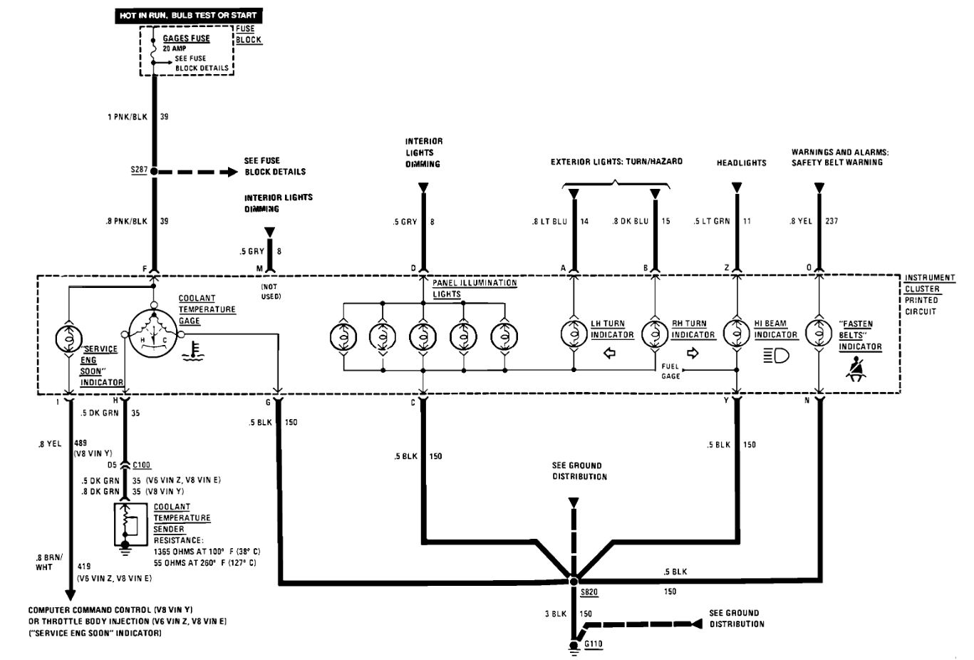
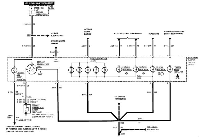
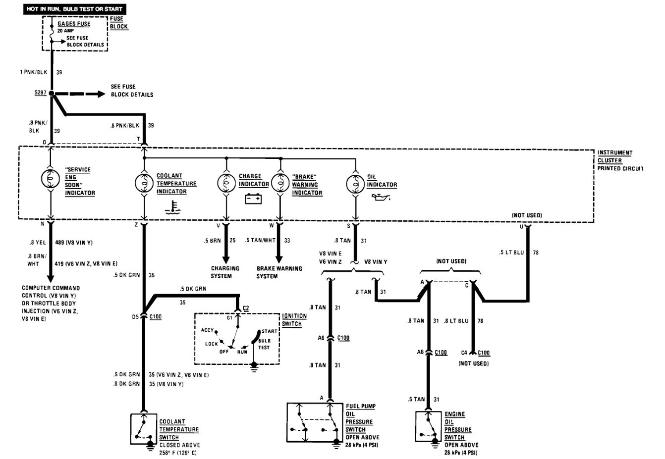
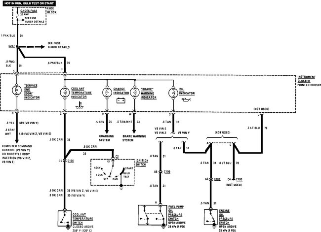
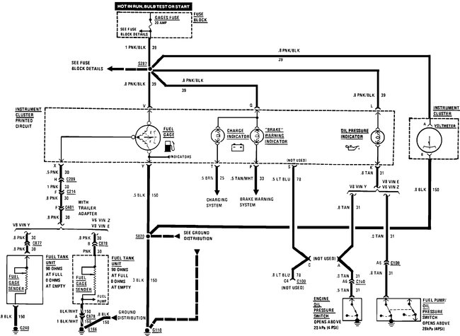
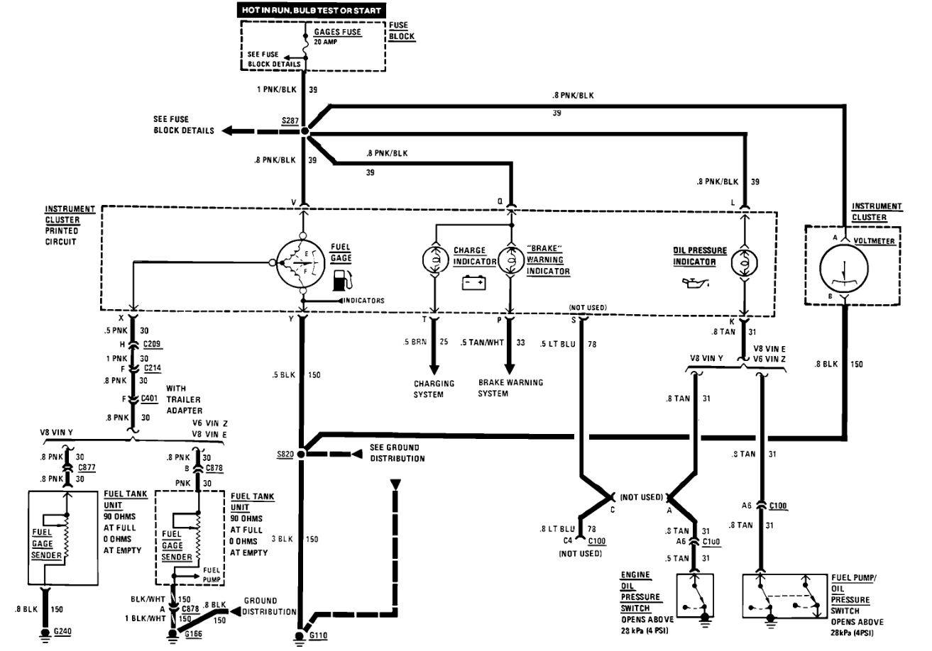
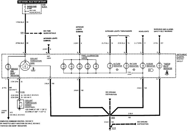
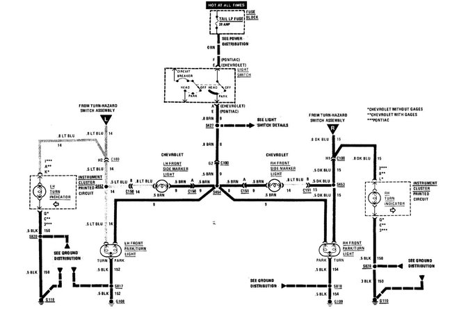
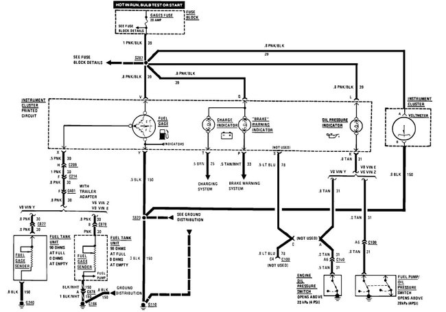
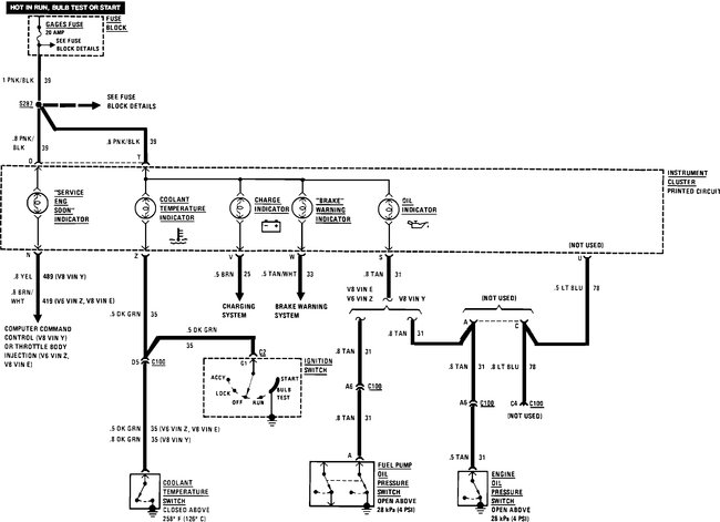
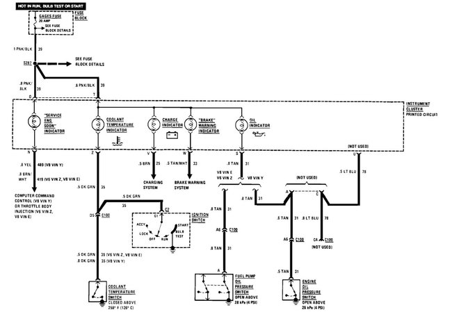
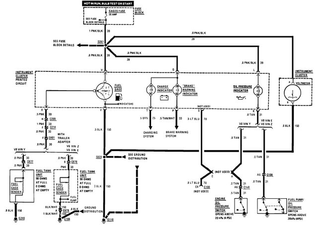
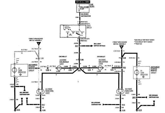
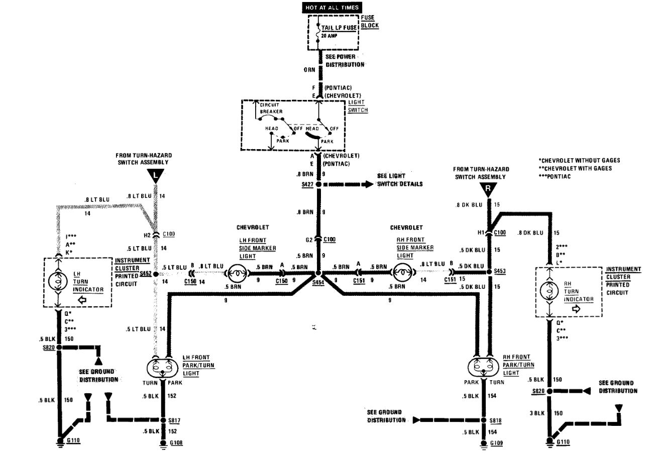
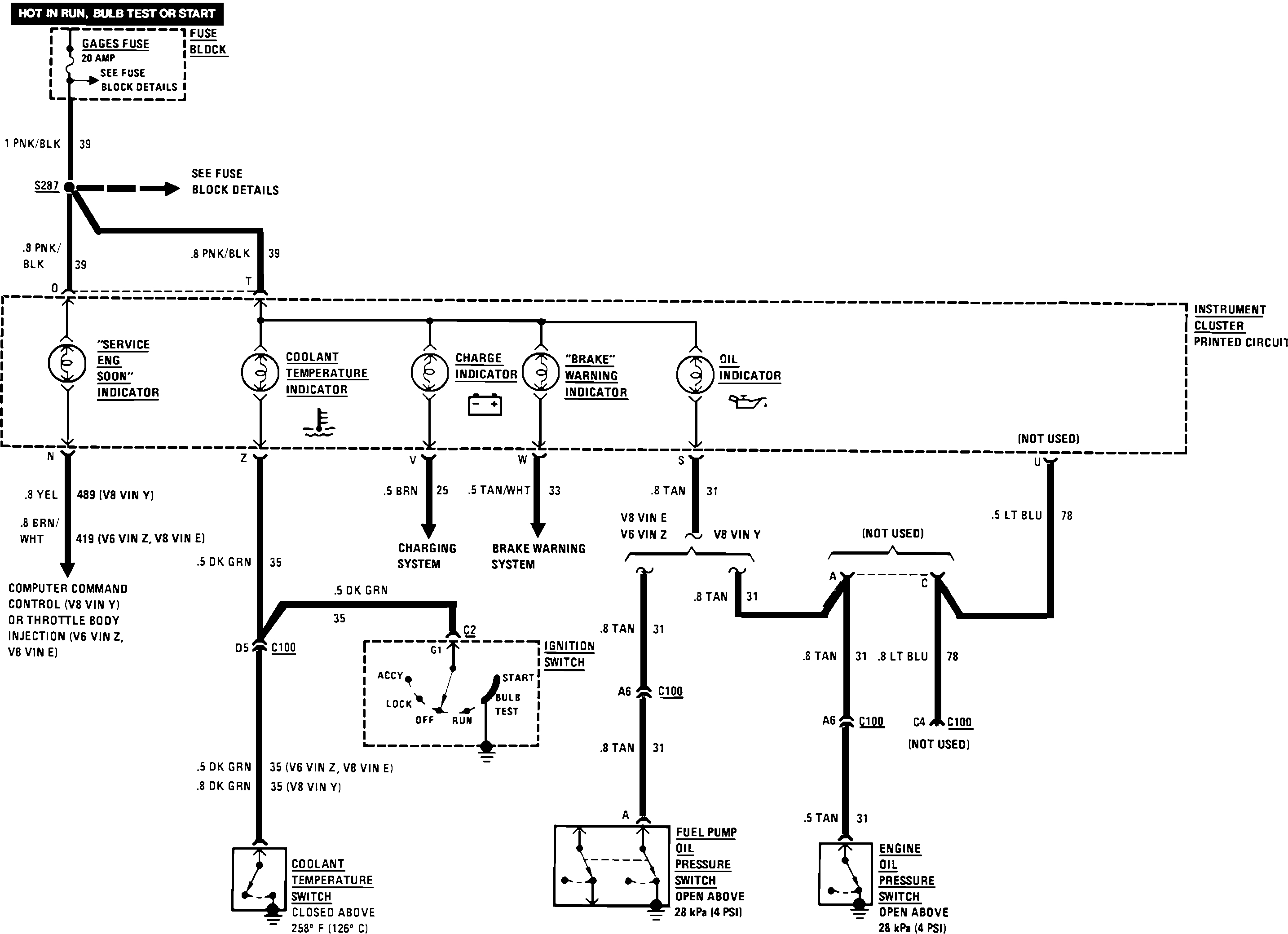
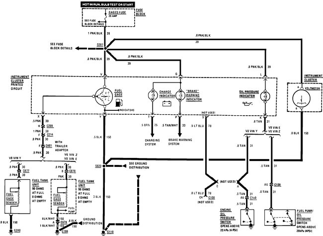
I have attached a few schematics below. The first is specific to alarms and warnings. Pic 2 is for the fuel and voltmeter. Pic 3 is the tailgate ajar schematic. Pic 4 is for the temperature gauge. Pic 5 is engine. Pic 6 is the fuel gauge.

I hope this helps. Because of the model year, my schematics are somewhat limited.

Take care,
Joe
Jul 13, 2020 at 8:22 PM
Avatar
CHEVYCHI
  • MEMBER
  • 5 POSTS
Where can I find it?
Jul 13, 2020 at 8:27 PM
Avatar
CHEVYCHI
  • MEMBER
  • 5 POSTS
Thanks Jacobandnikolas.
Jul 13, 2020 at 8:27 PM
Avatar
STEVE W.
  • CERTIFIED EXPERT
  • 15,113 POSTS
Okay, they normally include a diagram of what connects where. GM wiring in those years can be interesting. Is your car a fuel injected version or carburetor? Different engine wiring for those.
Jul 13, 2020 at 8:33 PM
Avatar
CHEVYCHI
  • MEMBER
  • 5 POSTS
Carburetor now but still has original wiring plus I have an alarm and a CD player.
Jul 13, 2020 at 8:35 PM