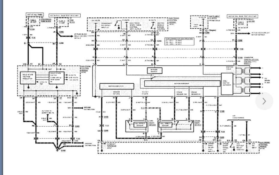
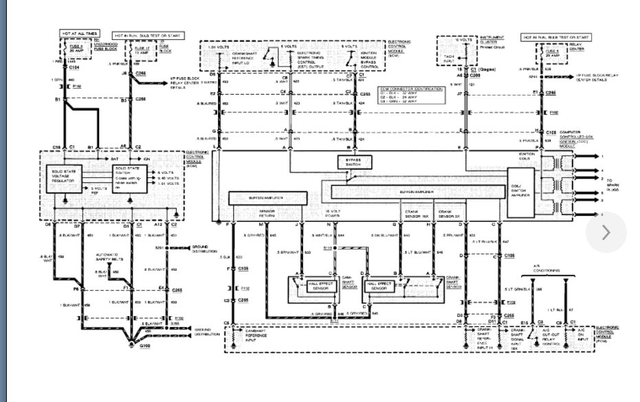
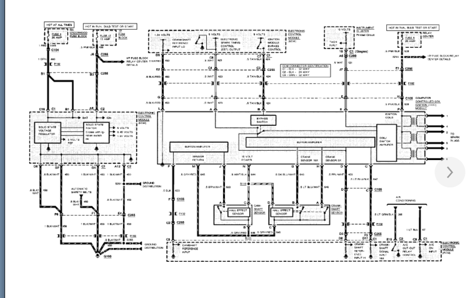
Crank sensor plug diagram

1991 BUICK LESABRE
114,000 MILES • 3.8L • 6 CYL • 2WD • AUTOMATIC
Avatar
LARRY NASON
  • MEMBER
  • 48 POSTS
I've the car listed above that has the plug for the crank sensor ripped out. i have replaced the sensor and have a new plug but I don't know what wire goes to which pin on the plug. can any body help me out with this?
Nov 28, 2020 at 2:56 PM
Advertisement
Avatar
KASEKENNY
  • CERTIFIED EXPERT
  • 18,907 POSTS
Unfortunately the manual does not give us specific pin locations but here is the connector info from the wiring diagram.

Let us know if you need more info and we can dig deeper. Thanks
Nov 28, 2020 at 4:47 PM