☰
Login
Join
×
Home
Answered Questions
Repair Topics
Repair & Service Guides
Popular Questions
Warning Lights
Trouble Codes
How It Works
Testing / Diagnostics
Symptoms
Videos
Login
Become a Member
Home
Cadillac
Deville
Engine Cooling
Cooling Fan
Not Working
Cooling fans will not come on
1986 CADILLAC DEVILLE
155,000 MILES • 4.1L • V8 • 2WD
WARREN DUNCAN
MEMBER
1 POST
FOLLOW
Right cooling fan does not come on and car cuts off when it gets warm while driving.
Jan 7, 2020 at 10:25 AM
Advertisement
ASEMASTER6371
CERTIFIED EXPERT
52,796 POSTS
Good afternoon,
Did you check the voltage at the one that does not work?
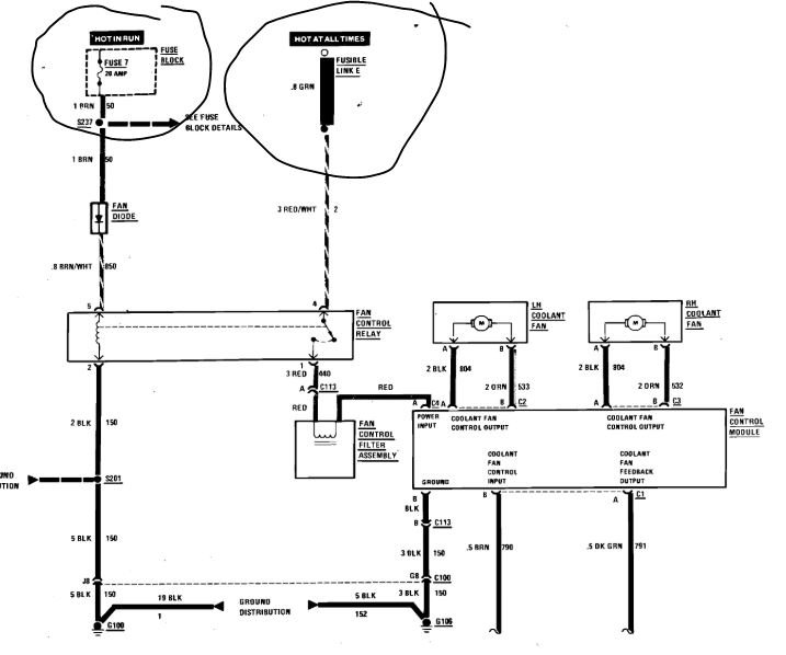
I attached diagrams for you to view. Check the fuse and the fusible link.
If there is no voltage to the motor, the cooling fan module may be the failure as it controls both motors.
Roy
Images (Click to enlarge)
Jan 7, 2020 at 11:53 AM