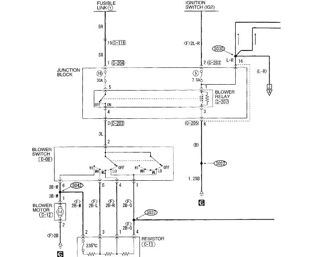
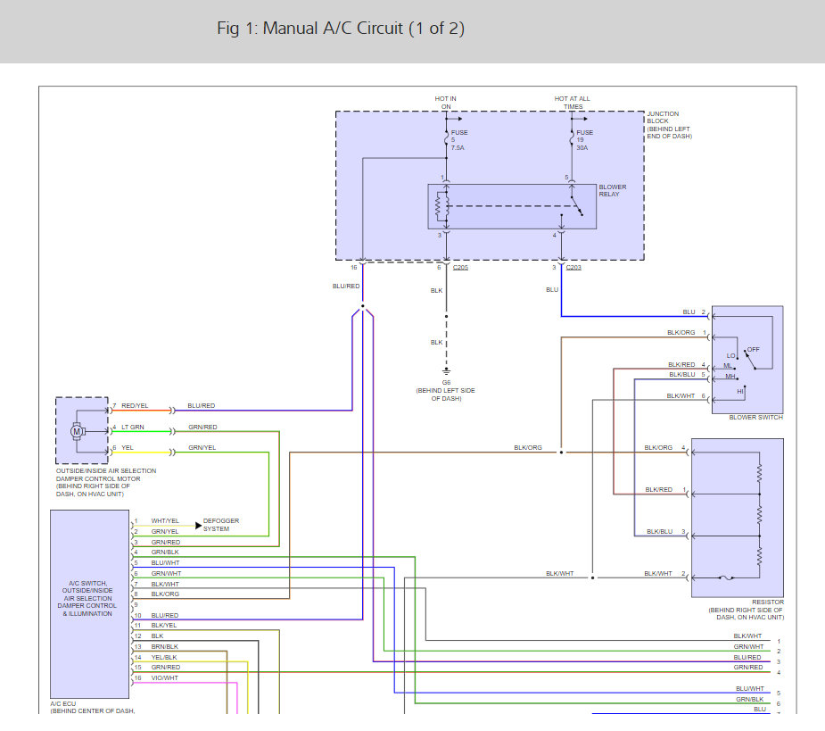
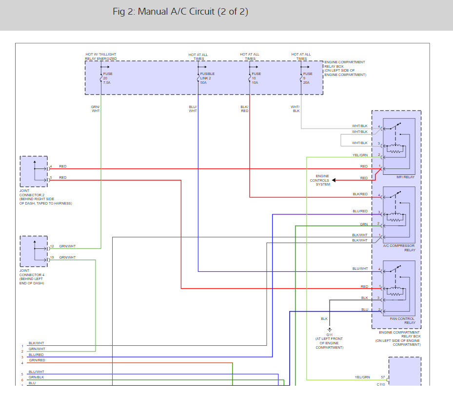
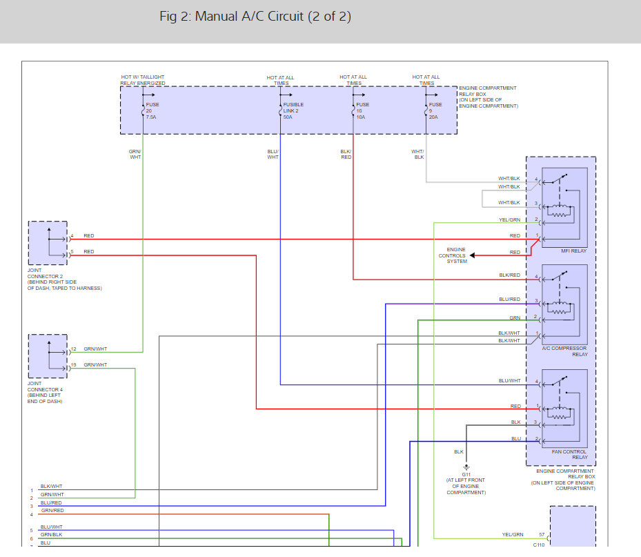
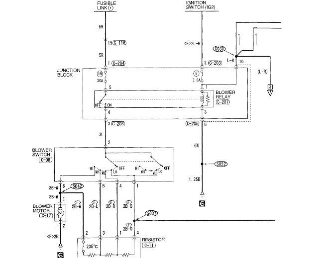
My husband replaced my faulty radio with an after market radio and when he was putting my dash back together we slightly bumped the stereo on the climate control area and the heater fan stopped blowing and none of the knobs or buttons work now. It appeared no power was getting to the area so we took it back apart checked the fuses and relays, but while there is no lights working on the AC/defrost buttons there are two small blue lights working on the inside of this control panel (these can't be seen unless dash is disassembled). There are also two wiring harnesses coming out of the back of the panel with many wires coming out of each so we were not sure which ones were relevant to the issue (if any). I just spent my savings on this car and now there's no heat and I cant afford to take it to a shop. My husband has some mechanical skills and can probably fix it if we can just find the source of problem. any help would be greatly appreciated!
Feb 23, 2019 at 11:52 AM




