I understand it stays engaged all the time but to determine what is causing it to stay on, we need to check voltage at the compressor. Basically this will tell us if it is being commanded on all the time and if not, then the clutch is seized.
More then likely this is the clutch being seized. However, if the compressor doesn't cool at all then we need to check pressures to determine if the compressor has failed or if the clutch is just not disengaging.
I suspect the compressor has failed and not just the clutch because if the compressor doesn't disengage, I would expect there to be cold air coming out until the system built up too much pressure. The fact that the compressor stays on and there is no cold air, I suspect the compressor is not building any pressure and checking the high and low side pressures will tell us that.
https://www.2carpros.com/articles/car-air-conditioner-not-working-or-is-weak
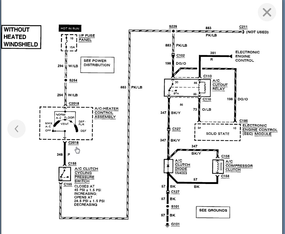
Images (Click to enlarge)
Jun 7, 2020 at 2:29 PM