adjustable brake pedal

2003 FORD F-350
175,000 MILES • 7.3L • V8 • TURBO • 4WD • AUTOMATIC
Avatar
AK2STEPIN
  • MEMBER
  • 2 POSTS
where can I find a power adjustable brake pedal? truck listed above is a diesel, Lariat model
Oct 25, 2017 at 3:21 PM
Advertisement
Avatar
STEVE W.
  • CERTIFIED EXPERT
  • 15,113 POSTS
Ford might have them but they are expensive. Better option would be a salvage yard. There are different ones based on if the vehicle has the memory option or not. I take it the ones you have will not adjust?

Oct 26, 2017 at 4:49 AM
Avatar
AK2STEPIN
  • MEMBER
  • 2 POSTS
That is correct. There are new ones available for the accelerator.
The dealer hear in Soldotna AK. said they do not make them any more.
I would take a chance on a junk yard/used but at $400.00 for a thirty day
guarantee, seems like a suckers bet. Plus, I can only find them in a set
with the accelerator pedal. I do not recall anything about memory.
Are you familiar with what years are compatible? I sure appreciate the
schematic.
ak2stepin.
Oct 26, 2017 at 11:35 AM
Advertisement
Avatar
STRAILER
  • CERTIFIED EXPERT
  • 53,854 POSTS
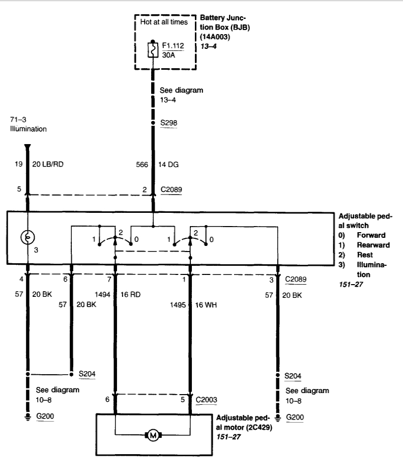
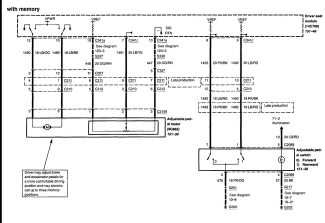
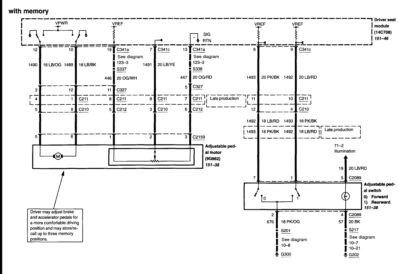
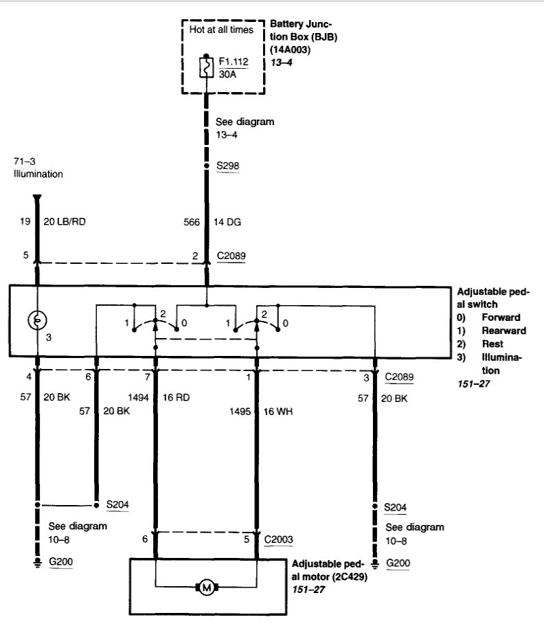
I have found some diagrams to help you see whats going on and hopefully replace the unit. (below)

Please let us know what happens.

Cheers, Ken
Oct 27, 2017 at 1:38 PM