ABS lights on, codes c1043, U1417, and u140b

2006 DODGE CHARGER
120,000 MILES • 5.7L • V8 • 2WD • AUTOMATIC
Avatar
STARLORD1976
  • MEMBER
  • 173 POSTS
Changed all speed sensors but still light turns on ABS code c1043. Dodge Orem enhanced codes. U1417, u140b.
Nov 1, 2021 at 4:13 PM
Advertisement
Avatar
KASEKENNY
  • CERTIFIED EXPERT
  • 18,907 POSTS
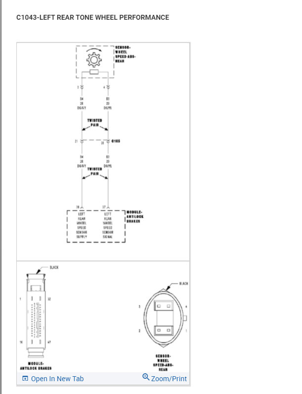
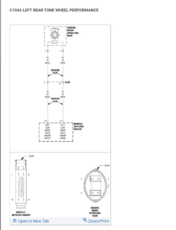
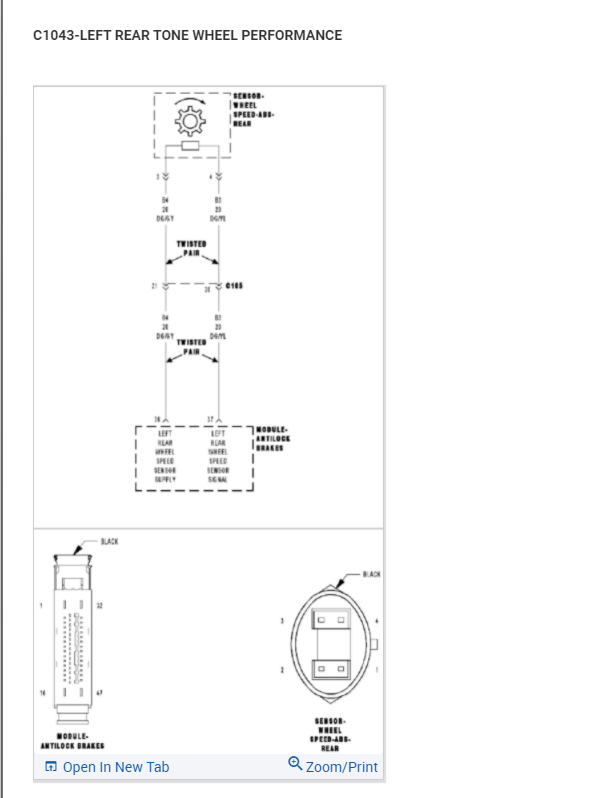
This code is specific to the tone wheel and not the sensor. So, this means we need to go to the left rear tone wheel and inspect it for cracks or broken teeth.

https://www.2carpros.com/articles/abs-wheel-speed-sensor-test

More than likely the axle will need to be removed in order to replace the tone wheel or just the axle all together. I attached the testing and the process for the rear axle below.

Please run through this and let us know what questions you have. Thanks
Nov 2, 2021 at 4:56 PM
Avatar
STARLORD1976
  • MEMBER
  • 173 POSTS
Okay. I looked through sensor hold but I don’t see any teeth on wheel is this normal. And do I have to buy the whole axle or can I just buy the tone wheel for my car?
Nov 3, 2021 at 9:45 AM
Advertisement
Avatar
STARLORD1976
  • MEMBER
  • 173 POSTS
I don’t think mine have teeth on them and I don't see any cracks. The ABS, EPS, BAS and traction light come on and off. So, what should I do now?
Nov 3, 2021 at 6:09 PM
Avatar
KASEKENNY
  • CERTIFIED EXPERT
  • 18,907 POSTS
Sorry. I forgot that this was a year that they started using a relutor ring with a magnetic encoding ring.

Take a look below at these pictures. However, you do not need to replace the entire axle. There are many options out there for repair kits.

However, I am also attaching a case as well for this issue. If the axle nut is loose then it will cause this code. So, I would suggest checking this and making sure this is not the issue.

Please let us know what happens. Thanks
Nov 3, 2021 at 6:46 PM
Avatar
STARLORD1976
  • MEMBER
  • 173 POSTS
I already checked the axle nut it’s on tight, what should I do now. The lights come on for a while then back off for a while constantly.
Nov 3, 2021 at 7:09 PM
Avatar
KASEKENNY
  • CERTIFIED EXPERT
  • 18,907 POSTS
This code is pretty specific in the fact that the ABS does not like the signal it is getting from the speed sensor. It is able to tell that the signal from the tone wheel is not correct so more than likely it is just worn out or the air gap is not correct.

Based on what you have done, I would replace the ring and see what happens. Normally you can see something wrong with it, but you may have to remove it and if you are going that far, I would just replace it.
Nov 3, 2021 at 7:21 PM
Avatar
STARLORD1976
  • MEMBER
  • 173 POSTS
How do I replace this without having to replace the whole axle?
Nov 3, 2021 at 7:24 PM
Avatar
KASEKENNY
  • CERTIFIED EXPERT
  • 18,907 POSTS
We don't have a process for this on the manual because they say to just replace the axle assembly.

You need to remove the axle or at least get it loose and out of the knuckle so that you can pull the old one off. Then you need to press the new one onto the axle so it would be easiest if it were out of the vehicle.

Here is a video from a parts company that shows how to remove the axle on your vehicle:

https://youtu.be/JliFs_XLjt4

You can search this vehicle and how to replace the tone wheel and there are a few videos of people doing this in the vehicle, but I would remove it.

You are going to have to find something like a bearing race that will press the tone wheel on evenly. Don't use a hammer and tap it on because you will damage it.
Nov 4, 2021 at 8:12 AM
Avatar
STARLORD1976
  • MEMBER
  • 173 POSTS
Can you find me one online that fits my car? I’m having trouble finding it.
Nov 4, 2021 at 10:20 AM
Avatar
KASEKENNY
  • CERTIFIED EXPERT
  • 18,907 POSTS
Just Google 2006 Charger Tone ring. I found this site below that appears to be a good deal.

https://www.ebay.com/itm/183359445819?chn=ps&norover=1&mkevt=1&mkrid=711-213727-13078-0&mkcid=2&itemid=183359445819&targetid=4580496732614416&device=c&mktype=&googleloc=&poi=&campaignid=418233788&mkgroupid=1230353745471221&rlsatarget=pla-4580496732614416&abcId=9300542&merchantid=51291&msclkid=91de49ee0e801512032e286a6b51926d

We don't like to recommend parts because I may have missed something so, please check the specifics and make sure this fits your vehicle, but it appears it does.
Nov 4, 2021 at 4:05 PM
Avatar
STARLORD1976
  • MEMBER
  • 173 POSTS
I just noticed this morning when I was backing car out of driveway, when hitting brakes my brake pedal was shaking and making noise. Would this be because of the reluctor wheel or do I have something else going on?
Nov 5, 2021 at 4:04 AM
Avatar
KASEKENNY
  • CERTIFIED EXPERT
  • 18,907 POSTS
The ring itself would not cause this. How fast were you going, and did you feel the shaking in the pedal like it was pulsating? If it was making noise as well, then this could just be rust build up on the rear rotors.

The only way this would be related to the code is if the axle is moving around so the sensor is not picking up a clean signal. However, that is what that case that I attached earlier was talking about where you had to check the torque on the axle nut.
Nov 5, 2021 at 11:31 AM
Avatar
STARLORD1976
  • MEMBER
  • 173 POSTS
Just backing out of driveway, the brake pedal was moving a lot and I heard thumping noise. And which rotor would I need to check for this? All of them?
Nov 6, 2021 at 9:16 AM
Avatar
KASEKENNY
  • CERTIFIED EXPERT
  • 18,907 POSTS
If the thumping noise was only heard when pressing the brakes in reverse, then I would think it is in the rear, but this would require a little more investigation. I would suggest driving the vehicle a little bit more and see if it stops as this could be rust build up if the vehicle has not been driven in a while.

Also, if this turns out to be on the same wheel as the code then that is most likely something loose and most likely it is the hub bearing.
Nov 6, 2021 at 10:07 AM
Avatar
STARLORD1976
  • MEMBER
  • 173 POSTS
The brake pedal only thumps around sometimes in forward and reverse. The wheel bearings are good and the rotors look good.
Nov 6, 2021 at 11:31 AM
Avatar
KASEKENNY
  • CERTIFIED EXPERT
  • 18,907 POSTS
Okay. That is not going to be related to this issue then of the tone wheel so we are at the point where I think we need a new post started just so that others that have a thump like this will find the solution when you reach it.

If you want to progress through this tone wheel issue and it happens to fix that as well then clearly post all that on this one. If it doesn't and then get a new post started, that is fine or just jump on starting a new one, it is up to you.

https://www.2carpros.com/questions/new

Thanks
Nov 6, 2021 at 2:04 PM
Avatar
STARLORD1976
  • MEMBER
  • 173 POSTS
Back to the tone wheel I had it tested today and there is also another code c121a. so, not sure what’s wrong now.
Nov 7, 2021 at 11:50 AM
Avatar
KASEKENNY
  • CERTIFIED EXPERT
  • 18,907 POSTS
That is not going to be related at all to the tone wheel. This is a steering angle sensor issue, so I am not sure why that didn't show up earlier but again, we need to get a different post started for that. However, if the code was not active then more than likely it set after a battery disconnect if that was done anytime recent and once you steer the wheel back and forth, it was re-initialized as this is telling you the sensor is not initialized.
Nov 7, 2021 at 11:55 AM