fuse box location can you help?

2005 CHRYSLER TOWN AND COUNTRY
Avatar
NANA
  • MEMBER
  • 1 POST
where is the fuse box on a 2005 Chrysler Town & Country I got to have it to fix my car.
Dec 7, 2010 at 8:48 PM
Advertisement
Avatar
STRAILER
  • CERTIFIED EXPERT
  • 53,855 POSTS
Hello,

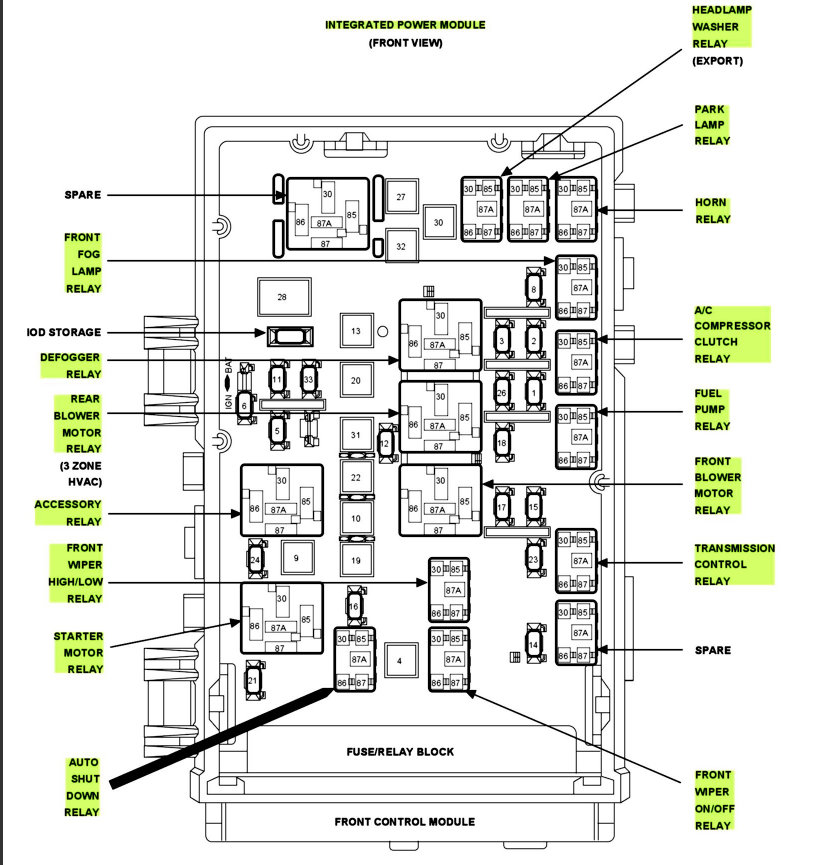
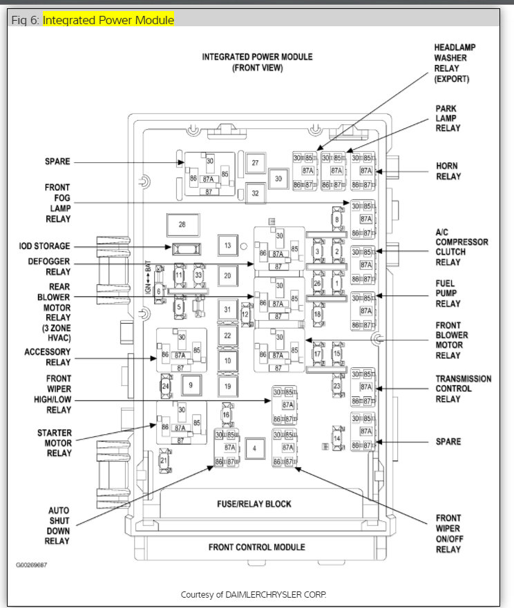
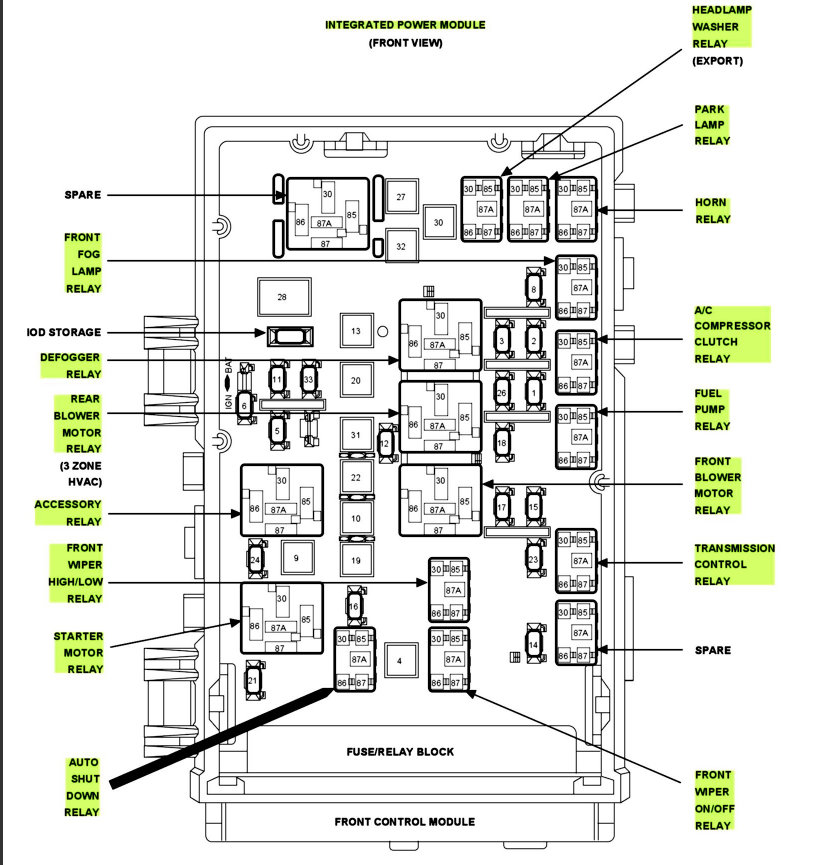
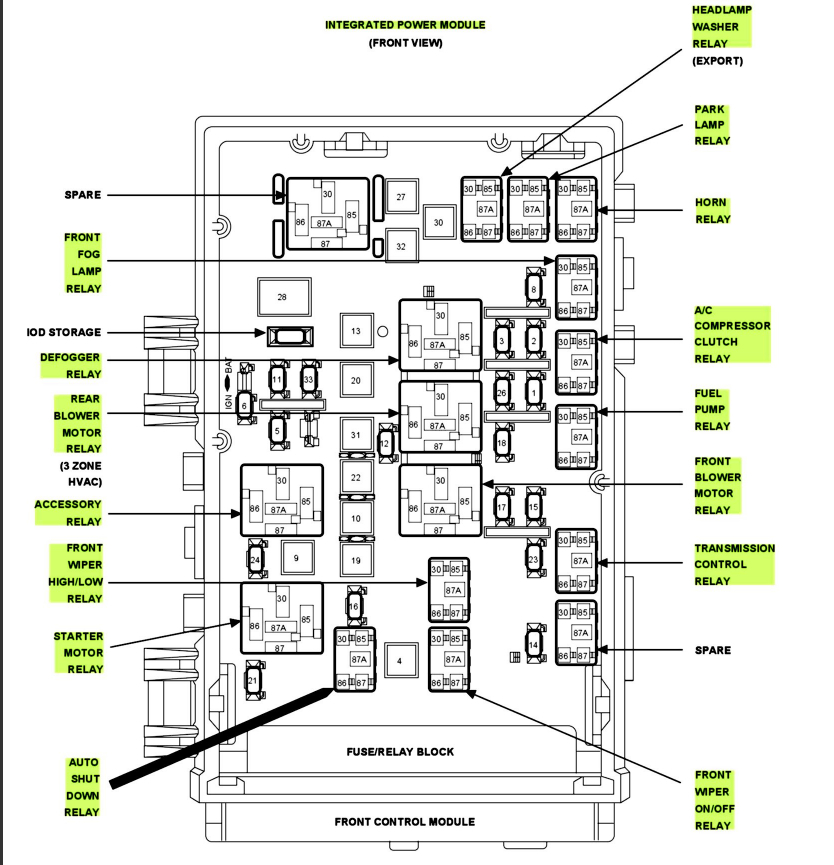
Here are the fuse panel locations and and diagrams (below) of the relays and fuses. Here is also two guides to help you do some testing.

https://www.2carpros.com/articles/how-to-check-a-car-fuse

and

https://www.2carpros.com/articles/how-to-check-an-electrical-relay-and-wiring-control-circuit

Here are the fuse box diagrams (below) Please let us know if you need anything else to get the problem fixed.
Nov 3, 2017 at 6:35 PM
Avatar
CMATT989
  • MEMBER
  • 1 POST
My radio just quit working. there was no problem with the vehicle prior to radio quitting. i have tried to find the fuse so i could replace it, but the is no fuse marked radio under the hood. i have looked for a nothing fuse box but there is one. could you please tell me where the fuse is located so i can replace it. thank you
Apr 4, 2019 at 12:14 PM (Merged)
Advertisement
Avatar
STRAILER
  • CERTIFIED EXPERT
  • 53,855 POSTS
Hey Cmatt989,

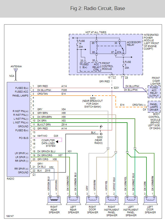
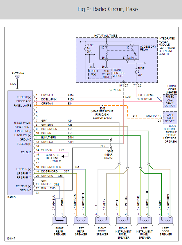
There is a speaker relay that also might be out, here is a diagram for you. To check the fuse it's under the hood, inside integrated power module (left front of engine compartment), check fuses #5, #20 and #14.

This guide will help as well and there is fuse panel and radio wiring diagrams to help see how the system works BELOW.

https://www.2carpros.com/articles/how-to-check-a-car-fuse

Check out the diagrams (Below). Please let us know if you need anything else to get the problem fixed.
Apr 4, 2019 at 12:14 PM (Merged)