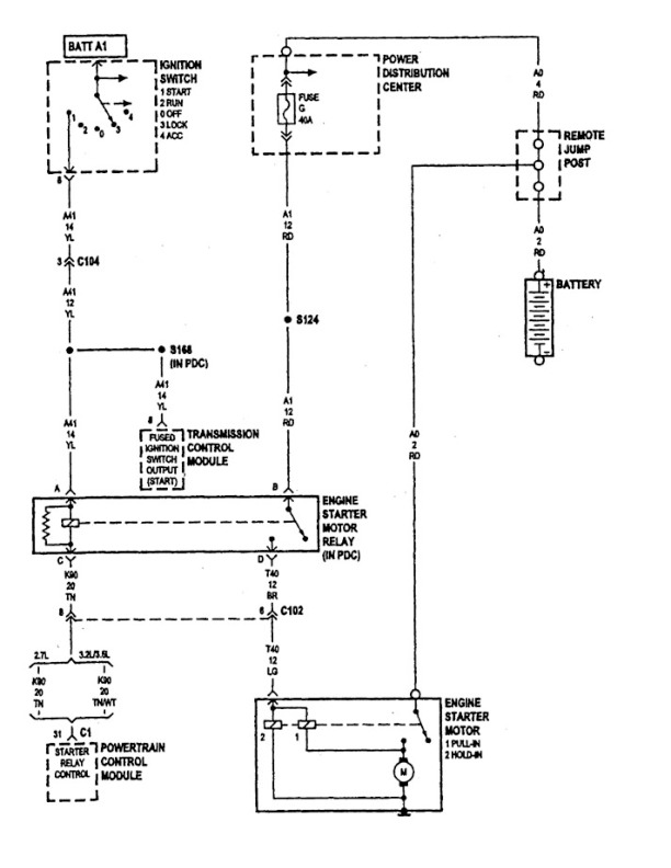
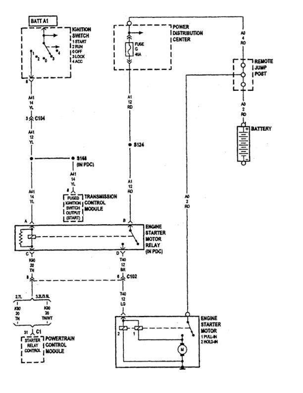
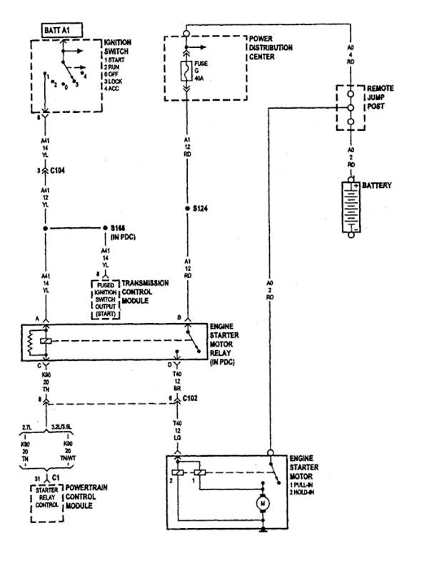
Customer broke timing belt shop took front cover off to verify complaint , damaged valves shop wanted to charge him over 2000. Customer declined work , customer sends car to me. I send heads out replaced all valves on passenger side and 3 valves on driver side, one timing marks up cams between the two marks and crank at tdc. Replaced pulley, water pump and tensioner. Put back together go to start it runs for two sec and shuts off. start again runs two sec shuts off, try again nothing no crank no start, not getting 12v to starter , I'm getting 12v at to stater relay A ,B and C but not D green wire to starter the PCM and TCM are in line. It does have factory alarm , I tried locking and unlocking door locks both with the key and by power door locks. I can put 12v to green wire and it turns over. I here fuel pump prime . Is there something else i can try to reset alarm
Aug 21, 2015 at 6:17 AM
