1986 silverado

1986 CHEVROLET SILVERADO
41,000 MILES • V8 • 2WD • MANUAL
Avatar
BRAD DAVIS
  • MEMBER
  • 1 POST
1986 chevy silverado windshield wipers stay on all the time. what causes that?
Feb 20, 2011 at 7:15 PM
Advertisement
Avatar
JDL
  • CERTIFIED EXPERT
  • 16,098 POSTS
Even with the key off?

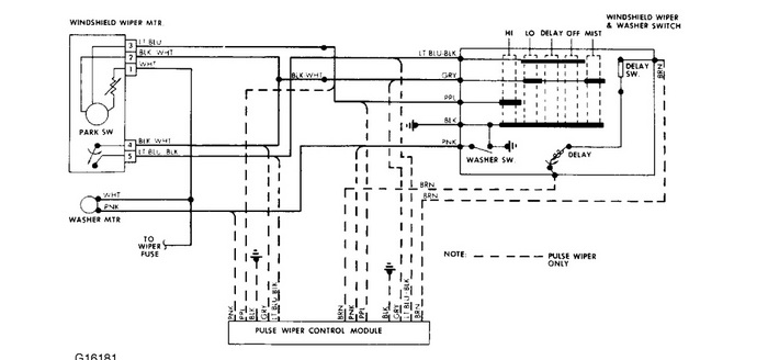
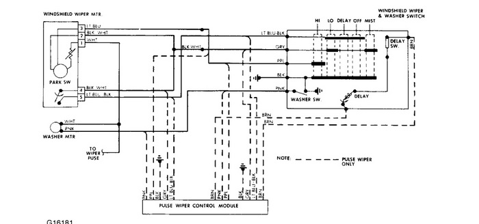
Disconnect wiring from termin als 4 and 5, replace park switch assembly is motor stops. If motor still runs, remove wires from terminals 1--2-- and 3, connect volt to terminal 1 only, if motor does not run, it indicates a ground in wires from wiper motor to terminal 2 or 3 at dash switch. If it runs, check for internal ground at high or low brushes.
Mar 22, 2011 at 7:39 PM
Avatar
JDL
  • CERTIFIED EXPERT
  • 16,098 POSTS
I'll try it again.
Mar 22, 2011 at 7:42 PM
Advertisement